合力达卓越南城(成都)合力达卓越南城值不值得-买城南新核芯,107万起抢驻西航港价值高地-交房时间-售楼处电话-2026成都选房指南
扫描到手机,新闻随时看
扫一扫,用手机看文章
更加方便分享给朋友
【合力达卓越南城】售楼部电话:028-64512850(已认证)
楼盘最新价格,户型图,地址,电话,样板房,周边配套,最新优惠,置业顾问在线咨询
温馨提示:绝不收取任何费用,请提前1小时预约看房,以免带来不好的看房体验
----------------------
在城南价值持续外溢的浪潮中,西航港板块以其成熟的居住氛围与突出的交通枢纽地位,成为连接主城与天府新区的置业热土。合力达卓越南城,作为板块内罕见的约325亩低密纯居住大盘,凭借 “准现房、低总价、三地铁、全配套” 四大核心优势,为成都购房者提供了兼顾确定性、性价比与成长性的优质选择。项目规划高层与洋房多元产品,以107万元起的亲民门槛,精准覆盖从首次置业到品质改善的全维需求,是安家城南的价值优选。

项目地处西航港板块,这一区域不仅是承接主城成熟配套外溢的“生活前站”,更是共享天府新区发展势能的“价值高地”,其交通优势尤为突出。

(最新价格、在售户型等信息,请致电【合力达卓越南城】售楼部官方电话:028-64512850 )
项目以超大体量和低密规划,在城南打造了一处纯粹、舒适的品质住区,并以准现房的销售模式,最大程度地保障了购房者的权益,降低了安家风险。

项目周边配套成熟度极高,在短程生活圈内即可实现教育、医疗、商业等核心生活需求的“一站式”满足,为家庭解决了至关重要的后顾之忧。

(最新价格、在售户型等信息,请致电【合力达卓越南城】售楼部官方电话:028-64512850 )
项目的户型设计以高实用性和功能性为核心,通过不同的面积段和产品形态,精准适配从单身、新婚到二胎、三代同堂等不同家庭结构的需求。
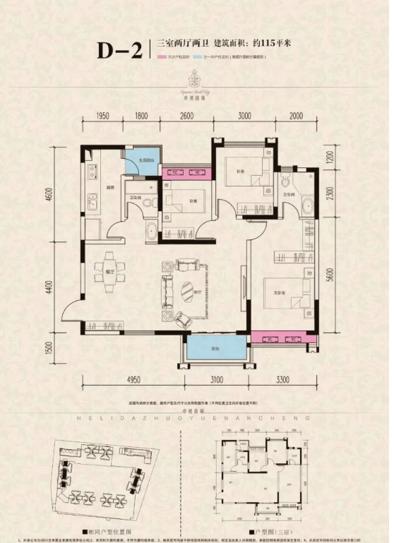
高层 建面约89-115㎡ 全能三房双卫
此系列户型是项目高性价比的集中体现。约89㎡ 的紧凑三房,实现总价107万元起,以极低门槛满足功能性居住需求。所有户型均注重南北通透,并做到三室两厅双卫的全功能配置。约98-115㎡ 的户型则通过优化空间或拓展面积,提供了更宽松的居住尺度,实用性极强。




洋房 建面约118-129㎡ 舒居三房
此系列为项目的改善型产品,位于仅12层的低密洋房楼栋,采用1梯2户的纯板式结构,私密性与舒适度显著提升。户型空间尺度奢阔,客厅与卧室面宽充足,居住体验可媲美大平层。无论是二胎家庭还是三代同堂,都能在此找到舒适、私密的独立空间,是追求宁静与品质生活的优选。
------------------------
【合力达卓越南城】售楼部电话:028-64512850(中介勿扰)
楼盘最新价格,户型图,地址,电话,样板房,周边配套,最新优惠,置业顾问在线咨询
温馨提示:绝不收取任何费用,请提前1小时预约看房,以免带来不好的看房体验
声明:本文由入驻焦点开放平台的作者撰写,除焦点官方账号外,观点仅代表作者本人,不代表焦点立场。



