【中信信悦府】户型图_户型建面207㎡-296㎡_最新户型图一览→致电售楼处电话为您解析优缺点!
扫描到手机,新闻随时看
扫一扫,用手机看文章
更加方便分享给朋友
【中信信悦府】售楼部电话:028-87788752(中介勿扰)
楼盘最新价格,户型图,地址,电话,样板房,周边配套,置业顾问在线咨询
温馨提示:绝不收取任何费用,请提前1小时预约看房,以免带来不好的看房体验
———————
成都信悦府是由中信集团开发的高端叠拼别墅项目,位于成华区中环板块,总占地约100亩,容积率控制在1.5的优质水平。户型建面207-296㎡,总价区间410-630万元/套,定位主城稀缺低密改善社区。
项目整体规划为叠院产品,由27栋三叠拼和4栋上下叠组成,总计422户。
项目采用阵列式布局,打造出纯粹的叠院社区,每户均保证南向采光,并实现一户一花园的私密入户体验,展现出非凡的空间格局与居住品质。

信悦府精心规划建面约207-296㎡的多种户型,涵盖两叠与三叠产品。所有户型均配备私家花园、独立电梯入户及私密归家动线,通过叠院产品形态实现真正的墅级居住体验。
在户型设计方面,项目注重采光与空间感的最大化。南向采光面最小达到10.5米,配合超大双面采光设计,部分户型更拥有270°全景景观视野。地下空间采用约6米挑高设计,大幅提升实际使用面积,部分房源还配置双下沉式庭院,有效改善地下空间的采光与通风条件,真正实现"有天、有地、有院、有景"的理想墅居生活。
【三叠】上叠 四室两厅三卫 | 约226-242㎡

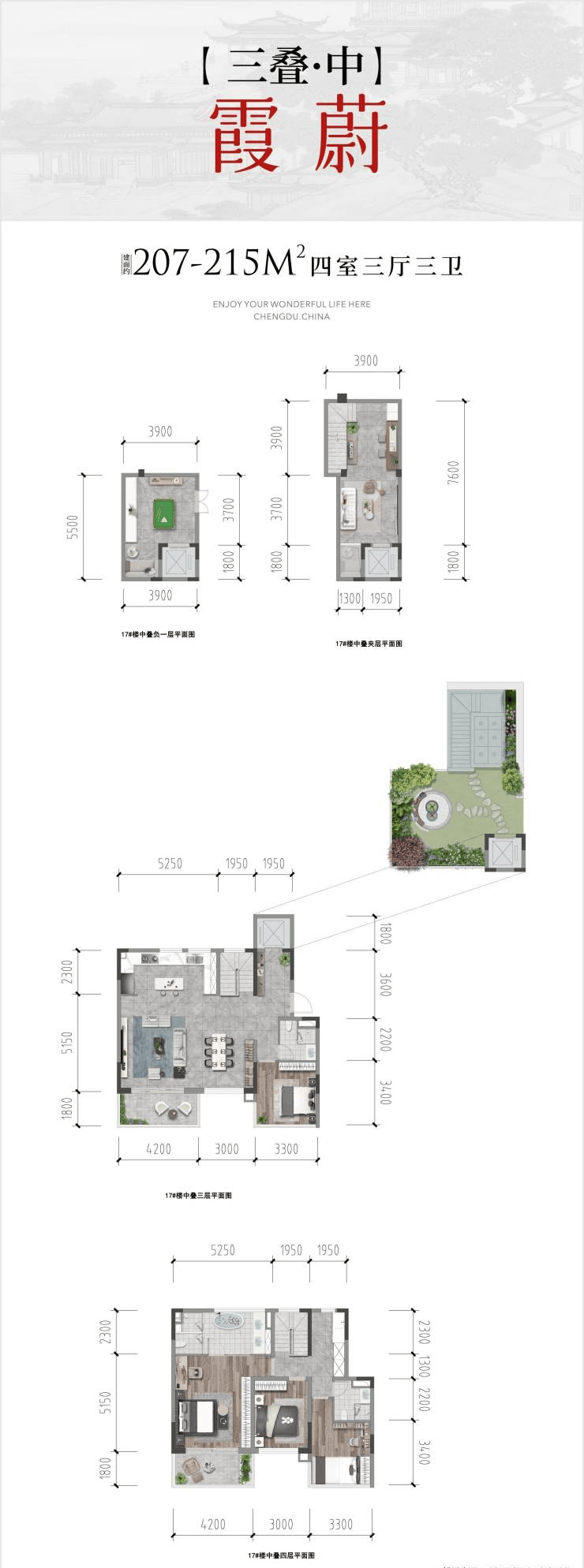
【三叠】中叠 四室两厅三卫 | 约207-215㎡

【三叠】下叠 四室三厅四卫 | 约259-270㎡

【两叠】上叠 四室三厅五卫 | 约249-265㎡

【两叠】下叠 四室三厅六卫 | 约288-298㎡

【中信信悦府】售楼部电话:028-87788752(中介勿扰)
楼盘最新价格,户型图,地址,电话,样板房,周边配套,置业顾问在线咨询
温馨提示:绝不收取任何费用,请提前1小时预约看房,以免带来不好的看房体验
声明:本文由入驻焦点开放平台的作者撰写,除焦点官方账号外,观点仅代表作者本人,不代表焦点立场。



