成都中绿园领秀金沙最新房价_在售户型(优缺点分析)_房源动态_售楼处电话_楼盘详情_项目分析
扫描到手机,新闻随时看
扫一扫,用手机看文章
更加方便分享给朋友
【中绿园领秀金沙】售楼处电话:028-87788752【营销中心】
楼盘实时价格丨户型赏析丨配套规划丨置业顾问在线咨询
获取最新房源动态及专属优惠,敬请致电售楼处
【项目参数】
开发商:成都中绿园置业有限公司(中国绿发成都公司)
物业类别:住宅
建筑类型:小高层
环线位置:三环-绕城
项目占地:47196.66㎡
规划总建筑面积:124189.53㎡
计容总建筑面积:84953.98㎡
容积率:1.8
绿化率:35.01%
建筑密度:18.77%
总户数:570户
楼栋总数:21栋
装修标准:精装(最终以开发商信息为准)
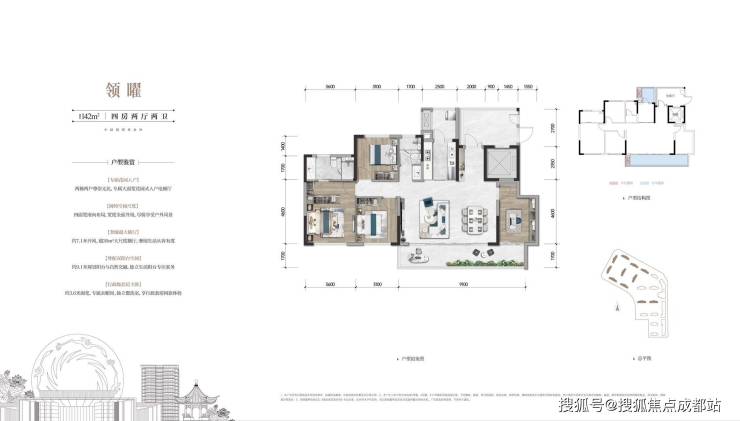
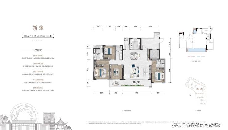
在售面积:127/143/167㎡
梯户比:两梯两户
物业费:4元/平方米.月
物业:重庆鲁能物业服务有限公司
地下机动车位:1015
住宅户数车位比:1:1.7
交房时间:2025年6月

区域唯一绿建二星认证的绿色科技建筑
2024城西置业必看 央企西贵高端改善盘
正金沙千亩生态资源环绕 城西唯一!
1.8超低容积率 城西唯一!
户户皆端户 2T2独立入户 城西唯一!
三卧室朝南 绝版户型 城西唯一!
豪配5000万级双会所 城西唯一!
国际大牌臻装 远超同级 城西唯一!
六恒健康住宅 城西唯一!
品牌
千亿央企 中国绿发
低碳城市引领者,健康生活创造者
接受国务院国资委直接管理
30年地产开发经验,布局27城
开发面积超过3500万㎡
绿色建筑100%认证
住宅项目100%健康认证
区域
金沙贵脉 领秀城西
地处西门价值高地金沙板块
聚合鼎级城市配套
坐拥成都大部分文博资源
距金沙遗址仅5分钟车程
距杜甫草堂、浣花溪仅10分钟车程
配套:醇熟万象 领秀繁华
生态 | 一带、一河、六公园
一带:百公里锦城环城生态带与千亩百仁公园(规划中)连成一体
一河:千年清水河,源起都江堰,见证成都三千年城市生长史
六公园:百仁公园(规划中)、清波公园、苏坡公园、黄忠公园、金沙滨河公园、清源公园
教育 | 5幼、6小、4中学
5幼:泡桐树幼儿园(清源分园)、成都市机关六幼成都市第五幼儿园(清波园区)、蒙田森蒙特梭利幼儿园、弋果幼儿园(全成都私立幼儿园排名第二)
6小:成都花园国际小学清波校区、金沙小学(清波分校)、草堂小学西区分校成都市实验小学(尚雅校区)、石室外语学校附属小学金沙小学
4中学:成都树德实验中学(清波校区)、石室联合中学、泡桐树中学、成都石室外语学校
交通 | 一环、两枢纽、三地铁
一环:紧邻三环路
两枢纽:成都西站、金沙公交枢纽站
三地铁:地铁4号线、地铁9号线、地铁27号线(二期规划中)
商业 | 四大商圈环伺
青羊万达广场约2KM、鹏瑞利青羊广场约3KM、城西优品道约4.7KM、仁和春天约5.6KM、自建4300㎡全业态独栋商业
医疗 | 三甲医院护航
成都第一骨科医院金沙医院约1.5KM、成飞医院约4.3KM、成都市妇女儿童中心医院约5K
产品核心亮点-奢享5000万级高阶双会所|约1600㎡下沉式会所|
精工立面 建筑美学
外墙局部采用金属铝板立面装饰;形成流畅的线条和丰富的肌理;超大面落地采光玻璃,让阳光登堂入室
户型鉴赏
【中绿园领秀金沙】售楼处电话:028-87788752【营销中心】
楼盘实时价格丨户型赏析丨配套规划丨置业顾问在线咨询
获取最新房源动态及专属优惠,敬请致电售楼处
声明:本文由入驻焦点开放平台的作者撰写,除焦点官方账号外,观点仅代表作者本人,不代表焦点立场。



