成都新房【上璟润府·云溪院】楼盘全面解析_东三环上璟润府2期楼盘最新消息|户型图参考|年底特惠房源|联系电话
扫描到手机,新闻随时看
扫一扫,用手机看文章
更加方便分享给朋友
成都【上璟润府·云溪院】销售中心电话:028-87788752(中介勿扰)
售楼处价格,户型图,地址,电话,样板房,周边配套,项目介绍
温馨提示:绝不收取任何费用,请提前1小时预约看房,以免带来不好的看房体验。
【有免费看房车接送服务,如需预约,请致电售楼处】
———
【上璟润府·云溪院】东三环惟此 | 超越新规改善墅作|华润置地主城改善公园大盘


当下成都主城超过100亩的大盘已屈指可数.
位于东三环由华润置地革新筑造的上璟润府,总体量达约400亩,是融合住宅、公园、河道、慢行系统、社区空间为一体,“自成一城”,由一条华润置地业主专享的社区专线——1站学校、2站地铁、3站万象城,链接主城生活圈,串联起交通、教育、商业、生态、生活5大中心配套。

ITC交通中心——东三环枢纽+地铁4号线+华润置地业主专享社区专线,主城通勤“不堵心”
CBD商业中心——时代润街、片区商业(规划中)、万象城,日常消费全场景覆盖
CED教育中心——临近华川幼儿园、川师临枫小学、树德中学领办华川中学、成都大学
POD生态中心——约3万亩青龙湖公园、约10万㎡上璟公园,把“森林”搬回家
CDL生活中心——华润置地片区开发6大社区,6000+业主构成生活中心,成熟生活“有温度”

约160亩上璟公园,定位“城东首个儿童成长主题公园”,以1条约1.5km溪谷河道+1条约1km蓝花楹大道+3大归家公园绿道+6大公园直连社区,构成大盘生活的物理场域。

以自然科普(溪谷十二景)、体适体能(青少年体适能训练所)、趣味运动(儿童足球/羽毛球+乒乓球/滑板运动场)、宠物友好、邻里关系(社区礼堂——恒温泳池/健身房/书吧/咖啡吧),构成人文生活的主题场景。
在这里,公园已经不是普通的自然绿化,而是围绕孩子成长量身定制的“自然课堂+运动乐园+亲子空间”。

华润置地作为【领先的城市投资开发运营商】,从2002年第一次踏入成都城东,就把自己当成了“东门人”,二十三年与城市同频发展,华润置地干的每一件事,都是在“帮东门变好”——2002年造东湖“湖居封面”、2006年造万年“中心商圈”、2019年造东安“城市地标”、2025年强化“东门战略”。
华润置地全成都打造40+项目,其中东门就占一半,服务20万+业主,从公园到商圈,从地标到社区,每一个项目都在升级东门生活方式。
进入东三环6年,已打造时代之城、时代嘉玺、时代风景、玺宸上院、玺宸和著、上璟润府6个项目。形成了东三环千亩城市群落,“由一座座城,改变一座城”——其中的战略钜作上璟润府,则是先做“生态底盘”、再做“配套闭环”、最后做“生活运营”,别的开发商可能只关心卖房子,但华润置地关心的是“您住在这里10 年、20 年的生活”——千亩群落不是噱头,是华润置地造城能力的体现:从拿地到规划,从配套到运营,都是这个品牌所坚持的“长期主义”。

【上璟润府·云溪院】作为上璟润府2期的全新新规产品,以“超新规”产品理念,重新定义主城改善生活。地块容积率1.88,主要业态为叠拼+小高层,正南面对约5.7万㎡上璟公园及溪谷河道。


打造建面约114㎡新规四房、建面约135/139㎡新规可变五房、建面约200㎡公园院墅,分别覆盖精英家庭、多代共居与层峯生活的不同需求。以高实际使用空间、多功能场景空间与自然融合设计,实现从“住得宽敞”到“活得丰富”的全面超越。
•超越预期的实际空间尺度,主打“双园景视野”,引公园入室,模糊自然与生活的边界;
•四房布局兼顾成长与实用性,适合首改及青年家庭,涵盖主卧套房、儿童房、多功能房及灵活空间;
•颜值与功能并重的精装体系,强调收纳与人性细节,实现小而精、精而美的生活体验。

•成都主城惟此140㎡以下五房格局,直面多代家庭全生命周期需求;
•三面采光、双套房设计,保障私密与舒适,灵活空间可随家庭阶段自由变换;
•既满足二人世界的超级主卧套、也满足三口之家的亲子成长、还能满足多孩家庭的双儿童房需求、以及多代同住的双套房场景。


•融合叠拼大平层化与第四代建筑理念,明星爆款下叠实际使用空间约660㎡(含院子);
•下叠享全采光地下室与临溪庭院,中叠拥南北双露台及多个花园,上叠设星空屋顶;
•真正实现“公园0距离”,推窗即景、出门即园,重塑主城低密生活范式;
•空间层次丰富,功能极致划分,兼顾大家庭共居与圈层社交需求,为终极改善客群量身定制。

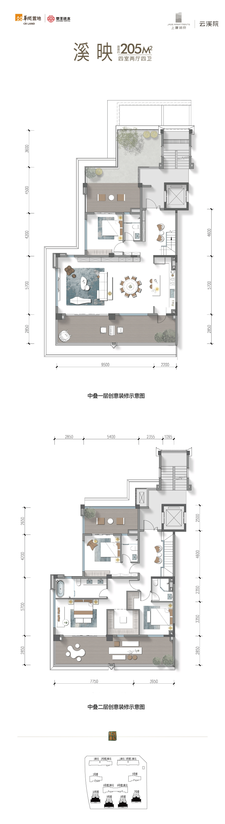
【中叠】创意户型平面鉴赏:

【上叠】创意户型平面鉴赏:


上璟润府打造八大“润式”生活空间——无人花店/无人咖啡店/无人超市/书吧/健身会所/儿童空间/休闲会客/社区共享,为业主的生活提供多样美好场景,“把人的需求,装在家楼下”——不用跑远路,不用等时间,下楼就能享受到带娃、健身、社交、休闲的便利。住上璟润府,不只是买一套房子,更是买一种“省心、舒心、有格调”的日常。(以下为部分效果示意图)

超级公园生活体是华润置地结合成都地域特征提出的全新居住理念,并在上璟润府项目中探索1.0模式——PSO(Park Space Operations),通过城市空间重塑、公园场景创新与社群生活共创,打破传统公园与社区的隔离状态,将物理居住空间升维为“自然场域-空间运营-生活内容”三位一体的新生活方式,呼应成都 “雪山下的公园城市,烟火里的幸福成都” 发展理念。
在超级公园生活体的理念下,上璟润府润比邻社群通过「内容招商、IP 驱动、稳定输出、肉身参与」四大机制,让业主真正成为生活的主理人,围绕“自然、运动、艺术、人文、科幻”5大主题,组织片区华润业主共同在公园空间里举办社群活动,截止目前已有40+主理人、已举办70+社群活动、2000+人参与进来,上璟润府的社群正在从「活动组织」进化为「生活方式孵化器」,未来还会有更多人参与进来,让生活发生在自然里。
一座理想的建筑满足居住需求只是基本使命,能够承载居住者对美好生活的想象和期待,才是让人安放心灵的家。
——贝聿铭,建筑界的“华人之光”
【上璟润府·云溪院】 诚邀您入园
共享未来“润”生活世界
自然奢境示范区即将开放,欢迎莅临品鉴
成都【上璟润府·云溪院】销售中心电话:028-87788752(中介勿扰)
售楼处价格,户型图,地址,电话,样板房,周边配套,项目介绍
温馨提示:绝不收取任何费用,请提前1小时预约看房,以免带来不好的看房体验。
【有免费看房车接送服务,如需预约,请致电售楼处】
声明:本文由入驻焦点开放平台的作者撰写,除焦点官方账号外,观点仅代表作者本人,不代表焦点立场。



