天投中海天府合印-成都天府合印最新动态-销售进度实时更新-优惠信息实时更新-售楼处电话-营销中心电话
扫描到手机,新闻随时看
扫一扫,用手机看文章
更加方便分享给朋友
【天投中海天府合印】售楼处电话:028-64512850 【已认证】
楼盘实时价格丨户型赏析丨配套规划丨置业顾问在线咨询
获取最新房源动态及专属优惠,敬请致电售楼处
————
天府新区核心红盘:优惠房稀缺名额,性价比碾压常规房源,客户抢房意愿爆棚!
(1)黄金配套环绕:临近地铁沈阳路站 ,通勤出行便捷无忧;
(2)门口即3000多亩天府森林公园,直通麓湖,鲜氧生活触手可及~
(3)优惠房抄底捡漏价:
!! 97㎡特价168万!!
!!101㎡特价178万!!
!!113㎡特价205万!!
致电售楼部电话锁定咨询锁定:028-64512850
——天府新区 “黄金中轴”,串联 “商务 + 生态” 双核心。
天投中海·天府合印坐落于天府新区核心天府前湾板块,毗邻成熟的天府商务区,北接麓山、西临麓湖等高端住区,占据城市发展黄金区位。作为天府新区核心区收官力作,项目汲取上海前滩、杭州前湾规划精髓,打造"天府森林新绿窗"、"政法服务新高地"、"公园生活新社区"三大功能板块。
区域内规划五大主题公园群落、生态景观廊道及双TOD交通枢纽,以公园城市理念为内核,与CBD商业配套相得益彰,彰显高端居住价值。
——“成熟 + 规划” 双轮驱动,生活需求 “一步到位”。
作为 “低密纯居社区”,天府合印周边配套以 “便利性 + 品质感” 为核心,覆盖 “教育、商业、医疗、生态” 四大场景:
教育配套:全龄段覆盖,名校环伺
幼儿园:项目自带 9 班制幼儿园(规划中,引进品牌待定),满足 3-6 岁学前教育需求;
小学 / 初中:2 公里内有天府新区元音小学(区重点,“五朵私花” 之一金苹果教育集团托管)、天府新区第三中学(省二级示范校,天府新区 “教育强校”),教育资源 “优质均衡”;
国际教育:3 公里内有麓湖 A4 学校(K12 一贯制,IB 课程认证)、美视国际学校(成都老牌国际学校),满足 “国际化教育” 需求。
商业配套:“社区商业 + 区域商圈” 双满足
社区商业:项目自带约 2000㎡社区商业(规划便利店、生鲜超市、社区餐饮),满足日常 “下楼即买” 需求;
区域商圈:3 公里内覆盖麓湖水城商业(含麓湖天府美食岛、麓湖水上剧场,主打 “生态休闲消费”)、天府和悦广场(12 万㎡商业综合体,含永辉超市、星轶影院),周末购物、聚餐、娱乐 “无需跨区”。
医疗配套:三甲医院 + 社区诊所,健康保障无忧
基础医疗:项目 2 公里内有天府新区人民医院(麓湖分院)(二级综合医院,覆盖内科、儿科等基础科室);
高端医疗:5 公里内有华西天府医院(三甲,西南地区 “疑难重症救治中心”)、四川省第二中医医院(天府院区)(三甲,以中医特色治疗为优势),满足 “大病急病” 需求。
生态配套:“公园城市” 的 “天然氧吧”
项目 3 公里内拥有麓湖红石公园(300 亩生态公园,含环湖步道、儿童乐园)、鹿溪河生态湿地(1200 亩城市绿肺,负氧离子浓度超市区 3 倍),业主可实现 “下楼散步、周末露营” 的生态生活。
(更多信息请致电售楼部官方电话:028-64512850)

精选三至四房臻品户型
92㎡三房:三面朝阳,南向面宽达9.8米

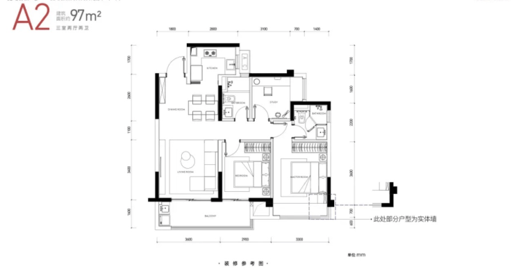
A2户型:97㎡三房两厅双卫
作为项目唯一采用南向阳台封窗设计的户型,在保持公建化外立面统一性的同时,首批次推出专属价格优惠,主力总价约200-210万。
户型设计亮点突出:97㎡实现三房两厅双卫全能布局;9.8米南向面宽,三面采光确保通透性;3.6米客厅与3.3米主卧尺度考究;主卧及书房配备0.7米进深飘窗,拓展实用空间。

D户型:113㎡三房两厅双卫
项目北向主力户型,12.1米超宽面宽实现双面采光。巧妙将次卫及书房置于次要位置,重点打造朝北一体化餐客厅与厨房,通过空间重组营造出130-140㎡的阔绰尺度感。

E户型:133㎡四房两厅双卫

【天投中海天府合印】售楼处电话:028-64512850 【已认证】
楼盘实时价格丨户型赏析丨配套规划丨置业顾问在线咨询
获取最新房源动态及专属优惠,敬请致电售楼处
温馨提示:绝不收取任何费用,请提前1小时预约看房,以免带来不好的看房体验
声明:本文由入驻焦点开放平台的作者撰写,除焦点官方账号外,观点仅代表作者本人,不代表焦点立场。



