武汉_电建汤湖观筑_销售中心电话_电建汤湖观筑_楼盘详情_价格_户型_配套

搜狐焦点兰州站 2025-06-08 14:55:49
用手机看
扫描到手机,新闻随时看

扫一扫,用手机看文章
更加方便分享给朋友

武汉【武地·电建·汤湖观筑】售楼处电话 027-85536080 【营销中心】____欢迎来电咨询〢尊享内部优惠服务〢免费看房车接送〢 户型图-最新在售价格-剩余房源-周边配套-项目答疑-楼盘情况

武汉【武地·电建·汤湖观筑】售楼处电话 027-85536080 【营销中心】

____欢迎来电咨询〢尊享内部优惠服务〢免费看房车接送〢

户型图-最新在售价格-剩余房源-周边配套-项目答疑-楼盘情况

双国企精工|规划地铁口|3.1米层高|2梯3户|一线湖景|毛坯现房

汤湖观筑项目卖点:

1、央企+国企双匠开发商,有三峡大坝、雷神山医院、江汉大学大项目建筑经验,房屋质量有保障!

2、高层+洋房别墅围合式建筑,超100米楼间距,超长日照时间,为你的健康保驾护航。

3、2梯3户,相对2梯4户少百人使用电梯,出行不再等待!

4、汤湖公园,近在咫尺,天然氧吧,更能最大限度扩大生活空间,休闲晨练理想去处!

5、3.1m超高层高,高出市面20到30公分,居住不再压抑!

6、现房,2021年底一期交房!

目前在售-项目信息:贷款:建设银行、招商银行、中国银行、光大银行、交通银行、汉口银行、兴业银行(利率:以LPR为准)可公积金,可组合贷款

总层高:5#楼28层,1#6#7#楼31层层高:3.1米

梯户比:2梯3户

在售楼栋:1号楼,5号楼,6号楼

在售面积:112、122、136㎡

合同公摊:24%—26%

绿化率:30%

容积率:2.3

开发商:武汉统建城市开发有限责任公司

物业公司:武汉东方物业

物业费用:2.8元/平

产权年限:70年交房时间:2021年12月(现房)车位配比率:1:1.9(1413个)

整个一期有8栋住宅,约4400方商业,711户,约1413个地下的停车位

楼栋分布图:

通过酒店式大堂进入小区,映入眼帘的是约6300余平的园林示范区,其展示规模在经开项目罕见。汤湖观筑的园林绝对是其与众不同的亮点,项目整体容积率约2.3,放弃了传统的“排排坐”铺排,而是选择围合式布局,最小楼间距60米最大达到了110米,为业主提供更为舒适的居住环境。并且所有楼栋均为一个单元两梯三户,留出更多地面空间在社区中央造一座“公园”。园林展示实景:

迈入大堂,五星级酒店的即视感扑面而来,挑高约6米的空高给业主满满的归家仪式感,整体风格融合了古典华丽与现代简约,厚重的色彩和出众的质感都显示出对待细节的打磨用心。毛坯交付,超高性价比入户大堂实景图:

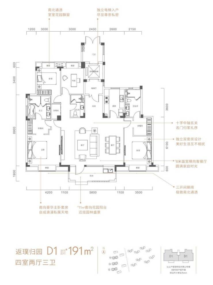
在售户型:

头排观湖洋房

合计6层,2梯2户面积:191-196平一楼赠送60-90平花园!!单价:1.2W

约3.1米层高,毫无压抑感的大尺度空间感受!进入样板间后,罕见的约3.1米层高让人豁然开朗,毫无压抑之感。汤湖观筑在总高度不变的情况下将33层住宅降至31层,让每户多出20公分,拥有了约3.1米的层高。每栋楼减少2层,这样的“取舍之道”,绝不止是利益的退让,更体现了开发商的豁达与气度。

坐拥汤湖公园生态绿化成熟宜居经开各大配套均能满足汤湖公园实景图:

除了拥有较好的品质和楼盘规划外,项目外部交通、配套也是非常不错的。交通、道路方面,经开区作为国家开发区,区域内部道路修建的非常不错,宽敞便捷,加上国际赛事的加持,区域道路更是进行了一次翻新。武地·电建·汤湖观筑项目周边路网通达,可通过项目附近的沌口路、江城大道、东风大道等南北向道路,快速前往经开核心和汉阳、武昌、汉口等区域。

商业配套方面,项目自身也带有约4400方商业,同时附近成熟社区较多,各种社区底商和菜场都在步行范围内可以到达。距离项目最近的大型商业体是经开永旺和万达,开车从项目过去比较方便,根据百度测距显示,从项目到这两大商业体的距离约4-5km。

武汉【武地·电建·汤湖观筑】售楼处电话 027-85536080 【营销中心】

____欢迎来电咨询〢尊享内部优惠服务〢免费看房车接送〢

户型图-最新在售价格-剩余房源-周边配套-项目答疑-楼盘情况

声明:本文由入驻焦点开放平台的作者撰写,除焦点官方账号外,观点仅代表作者本人,不代表焦点立场。