成都【新希望天屹】新房在售【新希望天屹】销售中心_电话_房价_户型_楼盘详情
扫描到手机,新闻随时看
扫一扫,用手机看文章
更加方便分享给朋友
成都【新希望天屹】销售中心电话:028-87788752(中介勿扰)
售楼处价格,户型图,地址,电话,样板房,周边配套,项目介绍
温馨提示:绝不收取任何费用,请提前1小时预约看房,以免带来不好的看房体验
--------------------------------------------------------------------------------------------------------------
成都【新希望天屹】【项目基础信息】
开发商:成都驿都悦湖文旅科技有限公司(千亿国企经开发展先锋民企新希望地产)
总占地:44亩
容积率:2.0
物业形态:10栋纯洋房
产品面积:建面约116㎡/143㎡
单价::1.8-1.9万左右
总层高:10-16F洋房
梯户比:1T2/2T2
绿化率:约35%(不含东干水渠)
交付标准:精装交付
装标:2650
交房时间:2026.9
【项目十大核心亮点】
经开发展/新希望地再联手,第四个作品,交付和品质绝对保障
东安湖中央居住区,核心首熟区,15分钟生活圈
区域唯一在售2.0低密,纯住宅,纯洋房小区
区域唯一下沉式真会所,宝格丽主题
东干水渠滨河绿道穿过小区,双超大中庭园林景观,内外双园
区域唯一独立光厅带梯控入户,比肩新希望D10配置
区域稀缺116㎡1T2户三室两厅两卫户型
区域最大面宽143㎡户型,带入户光厅,超高得房率
区域最高装标,日立中央空调、落地式一体马桶、12套洗碗机
新希望豪宅物业服务一脉相承,保驾护航
为什么买天屹:
做别人没有的围合式大中庭花园:
项目分立河流两侧,景观生态资源优质,低建筑密度,突破传统的阵列式布局,打造片区独有的超大中庭花园。内外双园出门皆是绿意。
做别人的没有的会所:
不做架空层会所,而是真正的星级下沉式会所,涵盖健身房、书吧。。。
品牌介绍
【经开发展】一部经开史,半座龙泉城
千亿国企 立足龙泉 服务民生
成都经开发展集团注册资本200亿,资产总规模达2500亿元,全资控股经开国投、经开产投、经开资本、经开置业、经开建工5家二级企业,31家三级企业,深耕龙泉驿、匠心筑大城,为龙泉驿城市发展贡献了重要力量。

【新希望地产】精致绿色,让生活更美好
世界500强品质,城东品质舒居缔造者
新希望集团,2021年荣登世界500强榜单,2023年排名363位。新希望地产为百强房企TOP30,聚焦城市“中高端”住宅产品开发,以天系、锦系享誉全国。于成都龙泉,皇冠湖壹号、锦粼府、锦粼云境、长粼府,以高阶产品力赢得市场的高度认可。

【核心首熟区】东安湖中央居住区,核心首熟区,15分钟生活圈

东安新城,为什么选择经开新希望天屹?
看位置:东安新城是整个龙泉最新、规划最科学、发展最迅速、城市界面最好的核心地段
看配套:15分钟范围内,商场、学校、地铁口、医院、文化、体育、娱乐配套齐全
【商业】约500米龙湖东安天街,约600米新城吾悦广场,约2.5公里万达广场,尽享湖芯醇熟生活圈
【交通】依靠蜀都大道/驿都大道/桃都大道等四横三纵道路网,通达全城;距地铁2号线书房站约800米,远期规划有11、22、25号线
【教育】比邻向阳桥幼儿园/小学/中学、经开区实验中学(教科院领办)、成都市实验小学(和雅校区)、成都市实验小学(和雅校区、乐雅校区)等全龄优质教育资源,板块内更有四川师范大学成龙校区、四川财经职业学院等高等学府
【医疗】半径为4公里范围内,汇集有四川大学华西医院龙泉医院(距项目约1.6km)、成都中医药大学附属医院龙泉医院(距项目约3.5km)、龙泉驿妇幼保健院(距项目约2km)、四川省第三人民医院(距项目约3.9km)等三甲医院
【公园】近邻东安湖公园、驿马河公园、龙泉山城市森林公园,构建优质生活圈
【极质116㎡】横厅三房两厅双卫
目前片区唯一在售120㎡以下洋房产品,超高使用率,婚房最佳选择,全盘仅198套,首开仅39套
A户型 |116 ㎡三房两厅两卫亮点:
1.约12.6m大面宽,全南北朝向。2.约44㎡LDKG一体化横厅。3.约6.85m南向景观阳台。4.约3.8m主卧开间,步入式衣帽间。

样板间
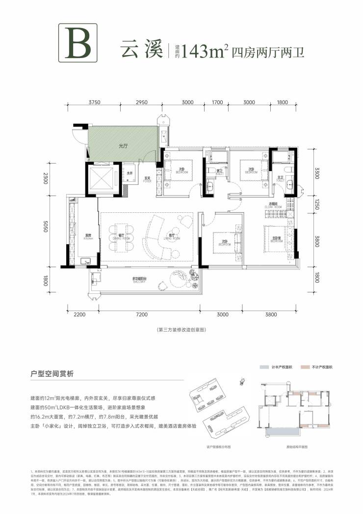
【越级143㎡】四房两厅双卫
区域最大面宽143㎡产品,光厅入户带梯控,比肩一线豪宅,邻一线河景(部分房源),区域改善首选
B户型 |143㎡四房两厅两卫亮点:
1.全明入户光厅带梯控,比肩一线豪宅。2.约16.2m大面宽,四开间朝南。3.约7.2m超大横厅+阳台。4.约27㎡豪华套房主卧,步入式衣帽间。
样板间
成都【新希望天屹】销售中心电话:028-87788752(中介勿扰)
售楼处价格,户型图,地址,电话,样板房,周边配套,项目介绍
温馨提示:绝不收取任何费用,请提前1小时预约看房,以免带来不好的看房体验
声明:本文由入驻焦点开放平台的作者撰写,除焦点官方账号外,观点仅代表作者本人,不代表焦点立场。



