成都【人居智荟城】值得买吗?_【人居智荟城】10月最新房价更新|楼层户型分析|区位规划配套详解|售楼部电话

搜狐焦点兰州站 2025-10-10 14:40:00
用手机看
扫描到手机,新闻随时看

扫一扫,用手机看文章
更加方便分享给朋友

兴城人居蜀兴置业推出高端人才住宅,70年产权,低密舒适,配套齐全,价格合理,位于郫都区黄金地段,发展潜力大。

【兴城人居智荟城】售楼处电话:028-87788752 【营销中心】

楼盘实时价格丨户型赏析丨配套规划丨置业顾问在线咨询

获取最新房源动态及专属优惠,敬请致电售楼处

【项目概况】

开发企业:成都人居蜀兴置业有限公司

物业类型:纯住宅社区

项目定位:郫都区首个高端人才住宅(70年产权)

占地规模:约7.1万平方米

容积率:1.5(低密舒适住区)

绿化率:规划30%(实际达50%)

建筑布局:22栋臻品楼宇

总户数:541席

车位配置:1:2.3(充足停车位)

电梯配置:1梯1户/1梯2户

建筑形态:

花园洋房:7-15层

叠拼别墅:上叠3层/下叠2层

【在售产品】

洋房产品:

187-201㎡四房两厅三卫(主力户型)

叠拼产品:

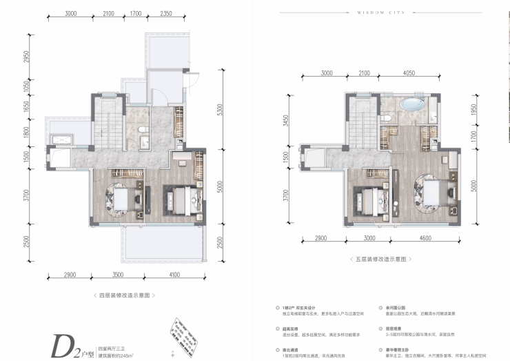
上叠245㎡四房两厅三卫(含屋顶花园)

下叠247㎡五房两厅六卫(赠送90-130㎡庭院)

【价格体系】

187㎡:单价8000-8600元/㎡,总价150-160万

191㎡:单价8400-9500元/㎡,总价160-180万

245㎡(上叠):总价250-300万

247㎡(下叠):总价350-400万

【交付标准】

物业公司:成都润锦城实业有限公司(2.6元/㎡/月)

交付时间:2022年3月(现房销售)

交付标准:毛坯交付

空间利用率:得房率超90%,公摊仅14-18%

当前库存:90套珍藏房源

【项目十大价值亮点】

1、【实力背书】兴城人居作为成都国企领军企业,连续多年位列中国房地产百强,2020年销售额突破200亿,成功打造多个标杆项目。

2、【黄金区位】坐享蜀都新城CLD与菁蓉湖CBD双重红利,区域发展潜力巨大,当前仍处价值洼地。

3、【产城融合】紧邻国际创新研发中心,汇聚全球智慧产业精英,配套建设TOD综合开发区。菁蓉湖CBD作为成都电子信息产业功能区核心,规划有喜来登酒店、粤港澳会展中心等高端配套,未来将服务3-5万高端商务人群。

4、【生态宜居】毗邻清水河艺术公园,坐拥"一河一湖三公园"生态格局,实现真正的公园生活。

5、【稀缺属性】临河临公园的稀缺地块,周边规划均为高端改善项目,升值潜力可观。

6、【低密社区】107亩纯改善大盘,容积率仅1.5,实际绿化率达50%,7-15层纯洋房+叠拼配置,保证居住舒适度。

7、【景观设计】打造"一轴四园两巷"立体景观体系,五重归家礼序,彰显尊贵体验。

8、【现房优势】即买即住的清水现房,满足个性化装修需求。

9、【户型设计】187㎡起步的阔绰空间,树立区域改善新标杆。

10、【精英圈层】高端人才专属社区,缔造优质邻里关系。

【臻品户型解析】

187㎡四房两厅三卫

191㎡四房两厅三卫

201㎡四房两厅三卫

【别墅产品展示】

下叠247㎡五房两厅六卫

上叠245㎡四房两厅三卫

【实景图鉴】

【兴城人居智荟城】售楼处电话:028-87788752 【营销中心】

楼盘实时价格丨户型赏析丨配套规划丨置业顾问在线咨询

获取最新房源动态及专属优惠,敬请致电售楼处

声明:本文由入驻焦点开放平台的作者撰写,除焦点官方账号外,观点仅代表作者本人,不代表焦点立场。