成都【中海云缦源境】值得买吗?_【中海云缦源境】10月最新成交价更新|项目优缺点|周边配套规划速览|售楼部电话
扫描到手机,新闻随时看
扫一扫,用手机看文章
更加方便分享给朋友
【中海云缦源境】售楼部电话:028-87788752(中介勿扰)
楼盘最新价格,户型图,地址,电话,样板房,周边配套,置业顾问在线咨询
温馨提示:绝不收取任何费用,请提前1小时预约看房,以免带来不好的看房体验
——————————————————
【中海云缦源境】楼盘信息
开发企业:中海地产成都天投
占地面积:约6.2万平方米(93亩)
总建筑面积:14.8万平方米(不含三期)
建筑总数:21栋(不含三期)
规划户数:871户(1、2号地块)
产品类型:7层洋房/15-17层小高层
当前推售:2号地块9#10#;1号地块3#4#7#8#9#
主力户型:
112㎡三房两卫(2梯2户/13-17F)总价270-280万含车位
103㎡三房两卫(1梯2户/7F洋房)总价250-260万含车位
100㎡三房两卫(2梯4户/15-17F)总价220-230万
132㎡四房两卫(2梯2户/17F)总价300-320万
均价范围:2.2-2.4万元/㎡
交付周期:1号地块2026年底;2号地块2026年中
精装标准:2950-2990元/㎡
容积率:2.0
绿地率:35%
得房率:79-84%
物业管理费:3.58元/㎡/月
物业服务:中海物业
合作金融机构:中国银行/兴业银行/农业银行
醇熟生活配套
立体交通网络:四横三纵路网体系(沈阳路/青岛路/武汉路/麓山大道+天府大道/梓州大道/益州大道),双TOD枢纽(昌公堰TOD建设中/青岛路TOD2025年建成),地铁6号线(青岛路站600米)+规划26号线
商业集群:10分钟生活圈涵盖天府大悦城、和悦广场,享麓湖水镇商业及在建伊藤旗舰店
医疗资源:3公里内聚集四川省第二人民医院、华西天府医院及在建天府新区人民医院
优质教育:香山K12教育体系、成都市实验外国语学校、天府三中、麓山国际光亚学校等名校环伺
生态景观:规划中的863亩法务岛生态绿廊,包含200亩樱花园、60亩海棠园、40亩银杏园、25亩枫林园及3公里滨水步道
匠心户型品鉴
A户型 约100㎡三房两卫
B1/B2户型 约100㎡三房两卫
C户型 约103㎡三房两卫(洋房)
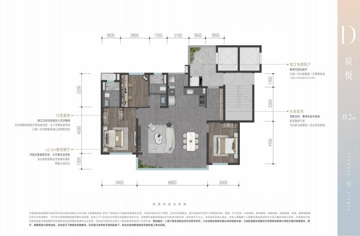
D户型 约112㎡三房两卫
E户型 约132㎡四房两卫
【中海云缦源境】售楼部电话:028-87788752(中介勿扰)
楼盘最新价格,户型图,地址,电话,样板房,周边配套,置业顾问在线咨询
温馨提示:绝不收取任何费用,请提前1小时预约看房,以免带来不好的看房体验
声明:本文由入驻焦点开放平台的作者撰写,除焦点官方账号外,观点仅代表作者本人,不代表焦点立场。



