成都【万盛TOD旭辉中心】新房在售【万盛TOD旭辉中心】销售中心_电话_房价_户型_楼盘详情
扫描到手机,新闻随时看
扫一扫,用手机看文章
更加方便分享给朋友
成都【万盛TOD旭辉中心】销售中心电话:028-87788752(中介勿扰)
售楼处价格,户型图,地址,电话,样板房,周边配套,项目介绍
温馨提示:绝不收取任何费用,请提前1小时预约看房,以免带来不好的看房体验
-----------------
成都万盛TOD旭辉中心位于温江区,是成都TOD战略布局下温江首个TOD全业态综合体项目。该项目位于大学城片区,周边拥有西南财经大学、成都师范学院、成都中医药大学等高校,以及成都师范学院附属实验学校、温江区实验学校等优质教育资源,人气旺盛,生活氛围浓厚。

首先,是交通大优。从项目案名——万盛TOD旭辉中心这几个字中就能读出来,项目肯定近地铁。具体来看,则是与地铁4号线万盛站直线距离约139米,万盛站是地铁4号线的起点站,2017年就已经开通了。

教育配套,项目周边1公里范围内就有温江区海科幼儿园、温江区实验幼儿园、西南财经大学附属幼儿园等多所幼儿园,项目本身配建1所幼儿园——成都市温江区天府第三幼儿园。

成都师范学院附属实验学校(小学)、西南财经大学附属实验小学在项目周边1公里范围内。四川教育学院附属实验学校(中学)、西南财经大学附属实验中学等两所中学与项目的直线距离都不到1公里。
项目周边3公里范围内还有成都中医药大学附属中学、温江区第二中学、成都市实验外国语学校(温江校区)等多所学校。

顺便一说,成都市第五人民医院就在项目周边3公里范围内,成都中医药大学附属第二医院与项目距离1.3公里,且项目附近有多个社区卫生站,有个头疼脑热不用发愁。
接下来,就说说项目的重磅大优势——商业。万盛TOD旭辉中心本身规划了超25万方的商业,其中包括10万方的商业mall和商业街。
10万方商业有多大呢?据悉,龙湖正在打造中的东安天街规划有12万方的商业综合体,所以这一东一西两大即将成型的大型商业称得上遥相呼应。
一般来说,项目内有大型商业,就够逛了,如果想换一换口味,万盛TOD旭辉中心周边1公里范围内还有新尚广场,两公里范围内有惠林购物广场,乘坐4号线出去,4站就到珠江新城国际购物中心。

万盛TOD旭辉中心项目总规划面积303亩,是成都首批次16个TOD项目中大城西唯一官宣全业态超配TOD,是TOD项目中配套更为齐全的一座“教科书级微缩城市”。
区域级商圈中心、公园风景区、教育配套、高品质国际社区……全部包含在项目规划之中,形成一个立足于城西新核心地带的TOD大盘。

不仅如此,为进一步提高居民生活体验,万盛TOD旭辉中心严格按照“137”模式规划打造,“1”代表对于项目的住宅部分来说,下楼“步行100米即可进入商场”,“3”代表“300米逛公园”,“7”则是“700米”到学校,最远700米的范围,实现生活配套全覆盖。

作为全系升维的全新代表作,本批次产品延续了旭辉产品体系C大调的浪漫,以旭辉CIFI-7升级力作标准,打破了市场对于传统住宅的想象。
以曼谷瑰丽酒店为灵感,项目衍生出一环两轴四花园的高奢度假式景观体系:
以十二星座运动环完成空间串联,以四大主题花园营造都市中的多重私密绿洲,以双景观轴线贯穿多重归家场景。

基于对水元素的充分理解运用,无边际水庭入户应运而生,从归家的第一步,即开始步入无边浪漫;

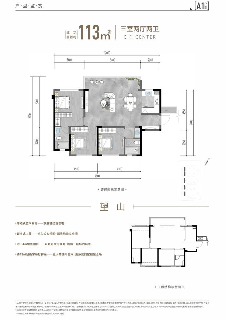
户型鉴赏;
建面100平套三双卫
建面113平套三双卫

建面125平套四双卫

建面114平洋房套三双卫

旭辉中心全新高端【心墅】,三大空间系统升级赋能生活升维
下叠——240㎡
城芯度假式花园庭院|约160㎡前后花园院落|约60㎡LDKG宽厅|主卧奢阔星级套房|L型厨房布局

上叠——169㎡
自定义多元空间进阶上叠|约43㎡X空间|约7.25㎡独立入户玄关|约32㎡星级尊崇主卧套房

3F大平层——187㎡
游艇级巨幕墅居大平层|约9.5米巨幕阳台,IMAX视野近赏大城繁华|LDKG宽境横厅|三套房居室系统,构筑每一位家人的尊崇舒适。

综上所述,成都万盛TOD旭辉中心以其优越的位置、成熟的配套、高质量的建筑和丰富的商业业态,成为了成都市乃至整个西部地区的一个亮点项目,值得考虑和关注。
成都【万盛TOD旭辉中心】销售中心电话:028-87788752(中介勿扰)
售楼处价格,户型图,地址,电话,样板房,周边配套,项目介绍
温馨提示:绝不收取任何费用,请提前1小时预约看房,以免带来不好的看房体验
声明:本文由入驻焦点开放平台的作者撰写,除焦点官方账号外,观点仅代表作者本人,不代表焦点立场。



