【兴唐新川雅境】售楼部电话_新川总部品质改善楼盘_【兴唐新川雅境】11月优惠活动锁定|最新特惠房源更新
扫描到手机,新闻随时看
扫一扫,用手机看文章
更加方便分享给朋友
【兴唐新川雅境】售楼处电话:028-87788752 【中介勿扰】
楼盘实时价格丨户型赏析丨配套规划丨置业顾问在线咨询
获取最新房源动态及专属优惠,敬请致电售楼处
------------------
兴唐地产2023年高新区标杆力作
城南高新·大师手笔 | 132-143㎡臻品小高层
核心价值亮点:
· 雄踞新川总部经济核心区,精英圈层聚集
· 主城区稀缺臻品地块,价值潜力显著
· 醇熟生活圈,全维配套触手可及
· 创新2T2纯板式布局,南北通透设计
· 双公园环抱,约24000㎡生态绿境,户均享30㎡绿地
· 全景落地窗+阔景阳台,极致采光面宽
· 优质教育资源举步可达
 
项目规划详情
【占地面积】约33亩
【建筑形态】8栋14-17层小高层
【容积率】2.5 | 【绿地率】35%
【层高标准】3.15米奢阔空间
【总户数】397席精装臻品
【梯户配置】2梯2户,独立入户玄关
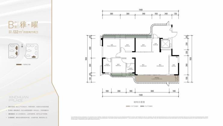
【户型区间】132㎡(四房双卫)-143㎡(四房三卫)
【价格区间】423-574万/套
【物业服务】龙湖智慧服务(3.8元/㎡/月)
【社区配套】高端会所、多功能厅、全龄健身区、儿童乐园
品牌实力
兴唐地产创立于2009年,秉持"诚信筑基,创新致远"的发展理念,坚持自有资金开发模式。作为集团首进高新区的战略作品,【新川雅境】彰显企业深耕成都的决心。
区位价值解析
新川创新科技园——国际产城融合示范区
规划面积10.34平方公里,以"创新中枢·生态新城"为定位,汇聚全球顶尖科技企业与高端人才,已成为成都对外开放的核心引擎。
立体交通网络
轨道交通:6号线新通大道站(200米)、规划20/22号线城市干道:四环路、天府大道、梓州大道等城市动脉
产业集群优势
已引进OPPO、美敦力等35家世界500强及上市公司区域总部,形成高端人才聚集效应。
生态宜居典范
区域绿地占比达17.5%,坐拥新川之心公园、湿地公园等生态资源,打造公园城市居住样板。
全龄教育体系
24所优质学校环绕,包括金苹果锦城一中(K12)等知名学府。项目毗邻行知小学、省教科院附小等重点院校。
 
商业配套
3号邻里中心(新加坡第四代社区概念)、华润万象天地(在建)等商业综合体,满足品质生活需求。
文体医疗配套
· 省级文化中心(规划中)· 高新区体育中心(大运会场馆)· 中体城运动综合体(2024年落地)· 三甲医疗:省中西医结合医院高新院区
户型设计赏析
 
 
 
(注:本资料仅供参考,具体以政府批文及买卖合同为准)
---------------
【兴唐新川雅境】售楼处电话:028-87788752 【中介勿扰】
楼盘实时价格丨户型赏析丨配套规划丨置业顾问在线咨询
获取最新房源动态及专属优惠,敬请致电售楼处
声明:本文由入驻焦点开放平台的作者撰写,除焦点官方账号外,观点仅代表作者本人,不代表焦点立场。
 
 
 
 

