保利云上值得买吗?_保利云上项目评测:位置交通、环境配套、楼层户型全解析

搜狐焦点兰州站 2025-10-09 10:03:00
用手机看
扫描到手机,新闻随时看

扫一扫,用手机看文章
更加方便分享给朋友

保利云上东安湖畔准现房公寓,双央企打造,临湖低密,价格实惠,配套齐全,兼具文化与商业优势,26万起看湖商办。

【保利云上】售楼部电话:028-87788752(中介勿扰)

楼盘最新价格,户型图,地址,电话,样板房,周边配套,一对一置业顾问在线咨询

温馨提示:绝不收取任何费用,请提前1小时预约看房,以免带来不好的看房体验

———

东安湖:双央企打造375亩临湖大城 | 五朵金花:低密现房洋房 临湖临公园 | 家楼下就是一场三馆:步行可看演唱会

【保利云上】东安湖畔准现房公寓(23年10月交房),位于东安湖南岸中央活力商务区中心单价7字头。总价26万起看湖商办。

【世界东安湖 成都发展极】

2022世界大运主办地,一湖三岸国际规划,全球赛事驱动,成都跃升世界舞台汲取“TOD+CAZ(CBD2.0)+COD+IOD”四大全球模式,打造成都未来封面 、公园城市先行区、城市基建新能级。

水陆空超级枢纽

150公里蜀都大道,20分钟直达攀成钢;

三大轨交:2号线、11号线、20号线;;

三大TOD+成都首条湖底隧道。

全球文化地标带

云集东安书院、大剧院、文化艺术中心三大城市级文化地标;

毗邻全国首座铜阁“东安阁”,比肩滕王阁、黄鹤楼文化价值的国家级文化地标;

对望大运一场三馆的世界级文化地标。

一湖三公园环伺:超低密公园环境,悠享自然诗意。

直面约5500亩的世界东安湖;

紧临约1910亩的驿马河公园;

中央景观生态绿廊

国际化潮流商圈:24H国际繁华主场

社区自建滨水活力商业文化街,

紧临龙湖第十座天街、吾悦广场、万达广场、万象系商业综合体

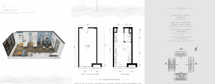
2号地块--临湖地块,地上26F,其中17-26F为3米层高的soho产品,2-16F为4.2米的loft产品

户型图

38.2㎡全景幻变空间,更有十余种户型可供选择

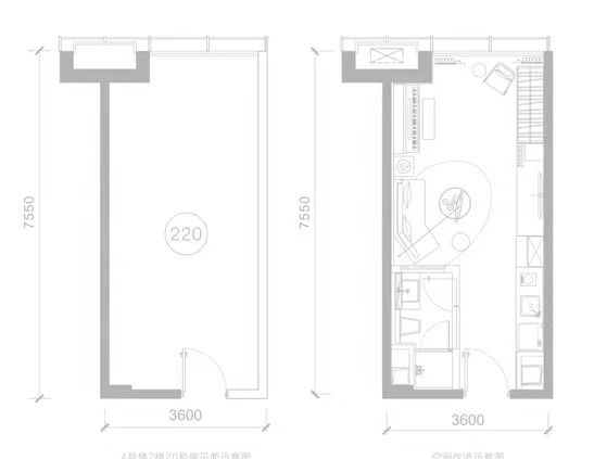
平面图(3#、4#)

——

【保利云上】售楼部电话:028-87788752(中介勿扰)

楼盘最新价格,户型图,地址,电话,样板房,周边配套,一对一置业顾问在线咨询

温馨提示:绝不收取任何费用,请提前1小时预约看房,以免带来不好的看房体验

声明:本文由入驻焦点开放平台的作者撰写,除焦点官方账号外,观点仅代表作者本人,不代表焦点立场。