成都成华区【北湖揽樾】优缺点:周边配套、主力户型解析,交通区位,开发商物业,附售楼部电话!
扫描到手机,新闻随时看
扫一扫,用手机看文章
更加方便分享给朋友
【北湖揽樾】售楼部电话:028-87788752 【营销中心】
楼盘实时价格丨户型赏析丨配套规划丨置业顾问在线咨询
获取最新房源动态及专属优惠,敬请致电售楼处
开发商:华侨城和中铁建双央企联合打造;
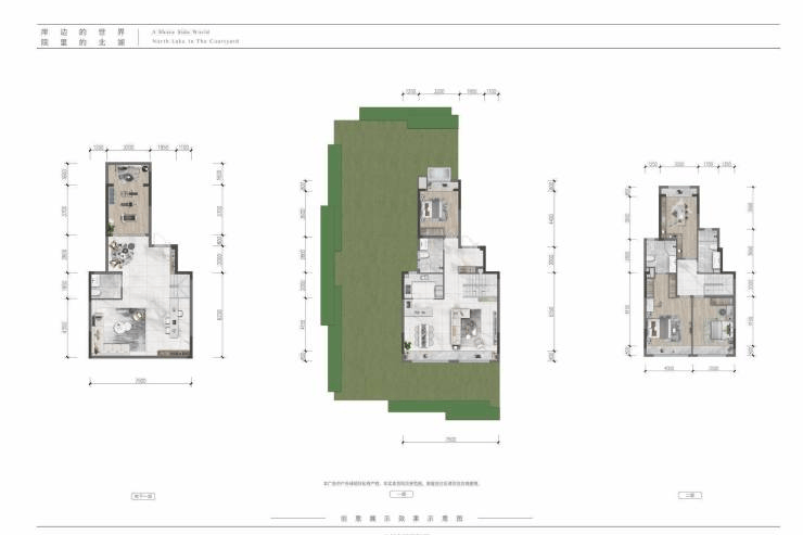
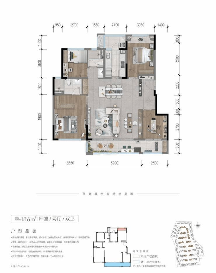
项目产品:洋房+叠拼;
总户数:1102户;
梯户比:洋房、叠拼1梯2户,大平层1梯1户;
项目占地:136亩;
拿地时间:2021年9月;
交房时间:2024年6月;
容积率:1.52;
绿地率:31.5%;
停车位:1449;
物业费:洋房3元/㎡,叠拼4.5元/㎡;
物业公司:中铁建物业;
装修标准:洋房2000元/㎡,叠拼和大平层清水交付;
楼层:洋房8层,叠拼3层(第3层是大平层);
层高:洋房2.95米,叠拼3.2米(负一楼层高5.1米,面积78平);
朝向:主要是南北朝向;
楼间距:26-29米;
叠拼一楼花园面积:33-200平
双央企华侨城与中铁建强强联合,造城专家和豪宅专家重新定义居住品质
主城区被北湖公园环绕,享受家就在公园里惬意生活环境,下楼方可到达湖泊
主城三环稀缺8层105~136平真洋房
独有三层叠拼打造极致尊崇感
千亩湖居、国际熊猫基地双IP,将是向世界展示的窗口

全市首批启动建设的25个未来公园社区之一,北湖未来公园社区预计将于两年内完成生态景观打造,三年内首期全面建成投运。
产业优势:北湖未来公园社区突出大熊猫和北湖生态双IP,将文创会展、国际度假和国际商务作为主导产业,着力塑造产城融合、职住平衡、功能集成、场景互动的产业型未来公园社区。
开发空间:北湖还有大量可开发用地和场景承载。据悉,该片区土地储备充足,征地拆迁基本完成,可开发建设用地206公顷,具备打造未来公园社区的承载空间。
交通牵引:北湖三横两纵三轨的交通配套已趋近全面成熟。根据成华区深入实施“中环牵引、纵横联动、组团优强”发展策略,三环路、蜀龙大道、成华大道、成安渝高速等几条横纵交错的主干道,合力形成的综合交通枢纽。
成都华侨城和中国铁建地产两大实力央企引领居住革新。华侨城集团37载发展至今,积极践行文旅融合、新型城镇化、乡村振兴等国家战略。中国铁建地产,组建于2007年3月,隶属于世界500强企业——中国铁建股份有限公司,以“建造关爱人与自然的建筑艺术品“为品牌主张,不断创著品质卓然的匠心人居。
交通:
紧邻龙青路,熊猫大道等主干道,交通便捷;
距地铁8号线二期(已获批)北湖东站约1.2公里,32号线(规划)鸭子池站约0.8公里。
随着多条地铁线路的规划实施,以及环北湖交通网的打造通车(已完工未通车),区域交通将得到进一步提升。
景观:
西侧,东侧,北侧为北湖湿地公园湖面及长3.3km的环湖绿道(以慢行交通为主,兼具生态、休闲、体育、文化等功能) ,距熊猫体育公园约500m。
商业:
临靠上古天地商圈,距星悦广场1.8km,距中国铁建北湖国际城商业街区约1.3km。医院:距离成都市成华区第七人民医院约1.9km。
教育:
项目南侧目前有配套中学在建,规划小学及幼儿园,区域内有龙潭小学,石室中学北湖校区、成都理工大学等配套。





【北湖揽樾】售楼部电话:028-87788752 【营销中心】
楼盘实时价格丨户型赏析丨配套规划丨置业顾问在线咨询
获取最新房源动态及专属优惠,敬请致电售楼处
免责声明:
以上内容仅作为邀约邀请,涉及的图片为部分区域实拍图和美学畅想图,具体内容请以现场公示和合同约定为准;本文部分资料、部分图片来源于网络,如有侵权请联系我们删除。
声明:本文由入驻焦点开放平台的作者撰写,除焦点官方账号外,观点仅代表作者本人,不代表焦点立场。



