2025国庆看房预约入口|【天湖翠林】项目情况(户型图+样板间)_开发商国庆特惠直销_电话预约

搜狐焦点兰州站 2025-10-01 07:39:00
用手机看
扫描到手机,新闻随时看

扫一扫,用手机看文章
更加方便分享给朋友

香港置地天湖翠林售楼部提供优惠信息,涵盖价格、户型、交通、教育等,欢迎预约看房。

【香港置地-天湖翠林】售楼部国庆专线:028-87788752(中介勿扰)

楼盘最新价格,户型图,地址,电话,样板房,周边配套,一对一置业顾问在线咨询

温馨提示:绝不收取任何费用,请提前1小时预约看房,以免带来不好的看房体验

————

【楼盘基础信息】

开发商:成都怡置信长房地产开发有限公司

占地面积:约82亩

容积率:约1.8

单价:2.1-2.6万/㎡

绿地率:约35%

产品类别:小高层 洋房(7-11-16F)

层高:3.1米

物业:怡置物业

物业费:4元/㎡

装修情况:精装带三大件(3000元/㎡)

面积与公摊:约110㎡(21%)-130㎡(21%)-143㎡(14%)

梯户比:1梯2户 ,2梯2户

交房时间:现房(交房时间2023年12月)

教育:胜西小学文兴分校、成都实验小学附属幼儿园等。

交通:日月大道、光华大道直通主城,绕城高速连接各区。便捷生活都市圈,包揽金融城、天府广场、双流机场,门口即公交,公共交通便捷。

商业:项目自带外围商业,旁侧外加爱情地产社区商业集合+下半年预计20万方商业集中土拍,已呈现的项目旁边环城生态内部特色盒子商业,青羊万达广场距离项目约7公里;鹏瑞利广场距离项目约7公里;中铁西城新天地、光华中心、优品道广场等商业综合体。

公园环绕:项目旁侧绕城生态带和金沙湖畔,形成公园环绕,处处看景看湖的珍贵环境优势。

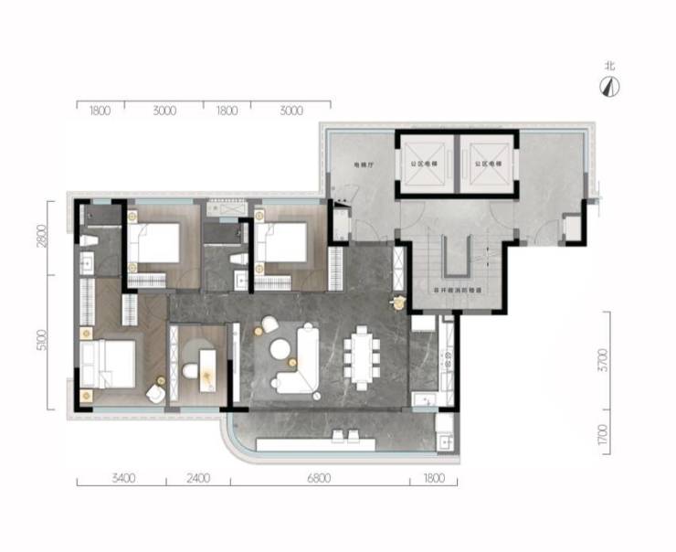
【户型鉴赏】

A1:110㎡(3室2厅2卫)

B1:130㎡(4室2厅2卫)

C1:143㎡(4室2厅2卫)

【精装品牌】

愿每个在梦境里自由游荡的思想,都回到心中的湖

隶属亚洲历史悠久的世界500强企业---怡和集团

怡和集团成立于1832年,总部设在香港,是一家建基于亚洲的的多元化跨国集团。旗下产业深深影响着我们的生活,包括香港置地集团,文华东方酒店,怡和汽车,美心食品集团,宜家,永辉超市,7eleven超市等。

————

【香港置地-天湖翠林】售楼部国庆专线:028-87788752(中介勿扰)

楼盘最新价格,户型图,地址,电话,样板房,周边配套,一对一置业顾问在线咨询

温馨提示:专业一对一热情服务,绝不收取任何费用,请提前1小时预约看房,以免带来不好的看房体验。

免责声明:

以上内容仅作为邀约邀请,涉及的图片为部分区域实拍图和美学畅想图,具体内容请以现场公示和合同约定为准;本文部分资料、部分图片来源于网络,如有侵权请联系我们删除

声明:本文由入驻焦点开放平台的作者撰写,除焦点官方账号外,观点仅代表作者本人,不代表焦点立场。