成都新房【深业泰蓉府】楼盘全面解析_成都2.5环低门槛高性价比改善新房_深业泰蓉府售楼处联系电话、在售户型图展示、最新成交价参考及区位配套解读
扫描到手机,新闻随时看
扫一扫,用手机看文章
更加方便分享给朋友
成都【深业泰蓉府】售楼处电话:028-87788752(中介勿扰)
售楼处价格,户型图,地址,电话,样板房,周边配套,项目介绍
温馨提示:绝不收取任何费用,请提前1小时预约看房,以免带来不好的看房体验
--------------------------------------
在成都市成华区的高端住宅领域,【深业泰蓉府】宛如一颗璀璨的明珠,散发着独特的魅力,吸引着众多购房者的目光。
深业泰蓉府位于成华区百亿商区新北天地商贸旅游发展区核心位置,配套成熟,预计今年交房。
今天,就带大家深入了解这个备受瞩目的楼盘。作为深业集团于成都精心雕琢的崭新力作,它凭借众多突出优势,赢得了众多购房者的喜爱与认可。
在此温馨提示有购房意向的朋友,若您计划前往【深业泰蓉府】实地看房,为确保能享受到更为专业、贴心的接待服务,建议提前致电售楼处预约。售楼处电话:028-87788752(中介勿扰)
深业泰蓉府由成都市深业泰然华成房地产开发有限公司精心打造。
项目总占地面积达 120 亩,是 70 年产权的住宅项目。
小区容积率为 2.0,绿地率高达 30%,总户数 1228 户,梯户比为 1T2/2T4,车位配比 1:1.5,物业费每平方米 2.96 元。
建筑总层高 7 - 18F,每层楼高 2.95 米。

深业泰蓉府提供了丰富多样的选择。小高层有 102㎡、117㎡、131㎡以及 143㎡等不同户型,洋房规划有 143㎡户型,但目前尚未取得销售许可证,当前在售主力面积段为 102㎡、117㎡和 131㎡。
对于刚需购房者来说,102㎡的户型紧凑实用,能够打造出温馨舒适的小家;而对于改善型家庭,143㎡的大户型则提供了更宽敞的空间,让一家人的生活更加惬意。每个房间的布局都经过精心设计,保证了空间的合理利用和居住的舒适度。
无论您是享受独处时光的单身人士,还是甜蜜恩爱的年轻夫妻,亦或是家庭成员众多的大家庭,都能在深业泰蓉府找到契合自身居住需求的理想户型。
A02户型建筑面积达102㎡,户型格局为套三双卫 。
B02户型建筑面积达117㎡,户型格局为套三双卫 。
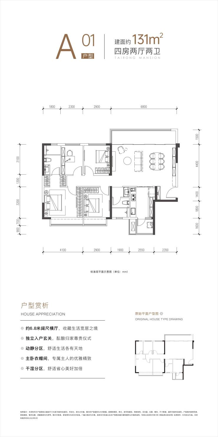
A01户型建筑面积达到131㎡,整体采用四居室双卫的精巧布局
深业泰蓉府平均价格约 2.15 万(价格参考区间为 2 - 2.2 万,实时价格请联系售楼处电话 028 - 87788752)。在成都这样的城市,结合其地段、配套以及装修标准等因素来看,具有较高的性价比。对于那些想在成华区购置房产,又追求高品质居住体验的购房者来说,深业泰蓉府是一个不容错过的选择。
总之,无论是计划长期定居自住,还是考虑房产投资,深业泰蓉府都是绝佳之选。如果您正在寻觅一处既能保证高品质,又能带来高舒适度的理想居住之所,不妨拨打售楼处电话 028 - 87788752(中介勿扰)了解更多信息。
————————————————————————
成都【深业泰蓉府】售楼处电话:028-87788752(中介勿扰)
售楼处价格,户型图,地址,电话,样板房,周边配套,项目介绍
声明:本文由入驻焦点开放平台的作者撰写,除焦点官方账号外,观点仅代表作者本人,不代表焦点立场。



