御园丰锦-价格折扣优惠-楼盘详情-售楼处电话-成都现房在售

搜狐焦点兰州站 2025-12-11 12:32:00
用手机看
扫描到手机,新闻随时看

扫一扫,用手机看文章
更加方便分享给朋友

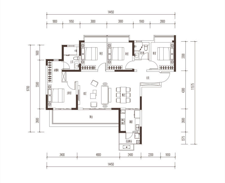
【御园丰锦】户型图B1户型 建面约126.75㎡ 四室两厅两卫 C1户型 建面约138.48㎡ 四室两厅两卫 御园丰锦——由新加坡丰隆集团匠心打造的约31亩低密社区,以2.9容积率、30%绿化率,为成都菁英…

【御园丰锦】售楼处电话:028-83516246 【已认证】

楼盘实时价格丨户型赏析丨配套规划丨置业顾问在线咨询

温馨提示:案场预约制,仅预约客户可进入现场,请至少提前1小时预约看房,以免带来不好的看房体验,感谢你的支持!

————

开发商年底清盘优惠,限量房源限时特惠,先到先得!详情请立即致电售楼处电话:028-83516246。

成都西三环「御园丰锦」年终清盘进入倒计时!

新加坡丰隆集团在蓉打造的标杆项目,「双TOD+双地铁+全龄学区+内外双公园」的新加坡式森居生活。

现在拨打售楼处专线 028-83516246 预约看房。

开发商:丰隆集团

总占地:31亩,在售产品高层+洋房

用户数:322户

在售楼栋:1/2/4栋

高层建面:126–138平米精装高层

洋房建面:127平精装洋房

总层高:3栋洋房12层 1、2、4栋高层22层

梯户比:

1、4栋2T3

2栋2T4

3栋 洋房1T2

物业费:3.6元/平/月

物业:阳光城物业

停车位:506

车位比:1:1.56

绿化率:30%

公 摊:19%-22%

容积率:2.9

交付标准:精装

装修标准:3000元/平

交房时间:现房

单价区间14500元/㎡

总价区间183万-203万

项目地址:郫都区犀浦镇龙吟路6号

项目总平图

B1户型 建面约126.75㎡ 四室两厅两卫

7米观景阳台+轩敞主卧套房

适合三代同堂家庭

C1户型 建面约138.48㎡ 四室两厅两卫

7.5米奢阔横厅+双阳台设计

兼具居住与社交功能

御园丰锦——由新加坡丰隆集团匠心打造的约31亩低密社区,以2.9容积率、30%绿化率,为成都菁英人群呈现「出则繁华,入则宁静」的理想居所。清盘优惠,先到先得!致电售楼处官方电话抢占先机:028-83516246 【已认证】。

【御园丰锦】售楼处电话:028-83516246 【已认证】

楼盘实时价格丨户型赏析丨配套规划丨置业顾问在线咨询

获取最新房源动态及专属优惠,敬请致电售楼处

声明:本文由入驻焦点开放平台的作者撰写,除焦点官方账号外,观点仅代表作者本人,不代表焦点立场。