【华兴锦樾河畔】楼盘最新解析_成都华兴锦樾河畔12月价格走势_户型图_区位配套_开发商_售楼部电话
扫描到手机,新闻随时看
扫一扫,用手机看文章
更加方便分享给朋友
【华兴锦樾河畔】售楼部电话:028-64512850(中介勿扰)
楼盘最新价格,户型图,地址,电话,样板房,周边配套,置业顾问在线咨询
温馨提示:绝不收取任何费用,请提前1小时预约看房,以免带来不好的看房体验
--------
大源西|一线滨河|低密湾岸墅作
开 发 商:华兴房产
梯 户 比:高层2T4/2T3;洋房1T2
总 高 层:高层22-26F;洋房7-8F
装修情况:洋房清水;高层1/2/4/5号楼精装,3栋清水;双拼清水
产权年限:70年
总 户 数:523户
楼栋总数:高层5栋;洋房3栋;双拼36栋;商业1栋
占地面积:约74亩
容 积 率:1.5
绿 地 率:30.04%
停 车 位:1:1.6
物业公司:成都兴华晟物业有限公司
物 业 费:高层3.6元/㎡ 洋房3.8元/㎡
交房时间:2027年12月27日


交通
主干道——项目北侧天府一到五街,元秀路以及项目南侧的华府大道以及警校路,东侧的剑南大道、益州大道和天府大道都是直连绕城直达三环,通达全城。
地铁线路:地铁5号线和规划中的15号以及22号线,按照目前规划设置最近的站点就在我们项目的西南角,并且是两条线路的换乘站,暂定名为草碾子站。
商业
自身打造的下沉式活力商业区;
周边15分钟车程的商业综合体世豪广场、鹭洲里、伊藤、银泰城购物中心以及港汇天地、铁像寺水街等。
教育
直线距离900米的双流区怡心第一实验学校、成都教科院附属学校、成都七中高新校区、成都美视国际学校、成都外国语学校等知名学府分布项目周边。
医疗
预计2026年投入使用四川大学华西医院高新院区
计划2027年投入使用第三人民医院高新院区(约1公里)
两大顶尖三甲医院为业主的健康提供坚实保障。
生态
一河三公园。
一河:门口的江安河,
三公园:500亩三江公园(在建)、192亩骑龙中水湿地公园以及项目旁的江安河滨河公园。
三个公园建设完毕后将串联组成一个巨大的城市绿肺。
-建面约99平套三-

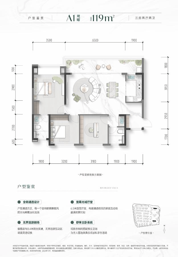
-建面约119平套三-

-建面约160平套四-

【华兴锦樾河畔】售楼部电话:028-64512850(中介勿扰)
楼盘最新价格,户型图,地址,电话,样板房,周边配套,置业顾问在线咨询
温馨提示:绝不收取任何费用,请提前1小时预约看房,以免带来不好的看房体验
声明:本文由入驻焦点开放平台的作者撰写,除焦点官方账号外,观点仅代表作者本人,不代表焦点立场。



