凯瑞·望丛天序(成都)望丛天序售楼处电话-郫都核心500亩望丛中央公园别墅-房价-户型
扫描到手机,新闻随时看
扫一扫,用手机看文章
更加方便分享给朋友
【凯瑞·望丛天序】售楼部电话:028-64512850(已认证)
楼盘最新价格,户型图,地址,电话,样板房,周边配套,最新优惠,置业顾问在线咨询
温馨提示:绝不收取任何费用,请提前1小时预约看房,以免带来不好的看房体验
-----
凯瑞·望丛天序,傲踞郫都区核心,是一座生长于约500亩望丛中央公园(规划中)里的纯粹浮岛度假墅区。
项目占地约65亩,以2.0的低容积率,精心规划116-175㎡的情景奢宅与185-240㎡的揽翠墅院。
通过三重酒店式归家礼序、七大安缦式泛会所及约2000㎡度假水景,项目将度假酒店的奢享体验融入日常,为郫都及城西的高端改善家庭,敬献一处融合千年古蜀文脉、无界公园生态与当代奢居美学的藏品级生活场。

01 核心地段与价值—— 独占约500亩中央公园绿心,坐享古蜀文脉与现代科幻双核驱动
项目位于郫都区无可复制的核心地段,不仅被规划中的约500亩望丛中央公园三面环抱,更串联起古蜀文明发祥地望丛祠与代表未来的成都科幻馆,形成了“一轴串双核,一园望古今”的独特格局。这里既是城市的文化绿肺,也是郫都未来发展的价值高地。
公园为家的终极理想
项目采用“先进公园,再入家门”的独特规划,将约500亩的城市中央公园变为社区的私享前庭,实现了居住与自然无界融合的终极梦想。
双核文化价值加持
同时坐拥望丛祠的千年历史底蕴与成都科幻馆的现代科技魅力,赋予项目深厚的文化内涵与前沿的时代气息。
区域发展核心引擎
项目所在的望丛片区是郫都区重点打造的城市名片,随着中央公园及周边规划的逐步落地,区域城市界面与配套能级将持续跃升。

(最新价格、在售户型等信息,请致电【凯瑞·望丛天序】售楼部官方电话:028-64512850 )
02 项目规划与设计—— 低密纯粹度假社区,以三大首创礼序重塑奢居体验
项目整体规划为纯改善社区,仅632户,圈层纯粹。社区以约2.0的低容积率和充满想象力的设计,创造了郫都区域前所未有的三大首创尊享体系。
首创三重酒店式归家礼序
从约80米的瑰丽门庭,到灵感源于中央车站的
鎏光归航厅
,再到
礼仪车库光厅
,最终通过
智慧系统归家
,全程充满仪式感与尊崇体验。
首创纽约安缦式泛会所
社区内打造了涵盖
浮岛会客厅、私宴厅、书吧、棋牌室、健身房、童玩空间、云汀水轩的七大泛会所体系,如同入住顶级度假酒店,满足全龄段业主的高阶社交与休闲需求。
首创约2000㎡度假水景
园林中央匠心营造约2000平方米的度假式水景,形成“繁花水院、浮屿花岸”的诗意画面,将社区变为一座漂浮于公园中的静谧绿岛。

03 社区配套与资源—— 十分钟醇熟生活圈,全维资源环伺满足品质所需
项目周边已形成十分成熟的“十分钟生活圈”,文化、交通、教育、医疗、商业等城市优质资源环伺,生活便利性与品质感兼具。
立体便捷交通
项目距离地铁6号线望丛祠站约800米,轨道交通出行便利;同时周边路网发达,可快速接驳主干道,连通主城。
优质教育资源
周边汇聚郫筒一小、岷阳实验外国语学校等优质公办学校,以及成都嘉祥外国语学校郫都校区、郫都区华爱学校等知名民办名校,教育资源丰富多元。
繁华商业与健康保障
短程车程内可享佛罗伦萨奥特莱斯小镇、蜀新天街等大型商业综合体;医疗方面有郫都区人民医院、中医医院等三甲医院护航,生活与健康无忧。
(最新价格、在售户型等信息,请致电【凯瑞·望丛天序】售楼部官方电话:028-64512850 )
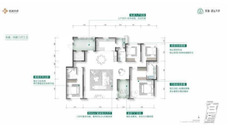
04 主力户型解析—— 情景奢宅与揽翠墅院,敬献两种境界的公园生活
项目产品线清晰划分为面向高端平层改善的“情景奢宅”与追求有天有地生活的“揽翠墅院”,全线产品均面向改善客群,以不同的空间哲学回应相同的公园生活向往。
建面约116-175㎡ 情景奢宅 (T2产品)
此系产品为2梯2户的板式平层,主打“情景化”生活体验。
从116㎡的功能三房到175㎡的奢阔四房,户型均注重空间的互动性与景观的渗透性,超大横厅连接宽境阳台,将中央公园的景色最大化引入室内,营造出度假感十足的日常居住氛围。



建面约185-240㎡ 揽翠墅院
此系产品是项目的巅峰之作,为185-240㎡的院墅产品。它实现了别墅级的居住体验,户户拥有私家庭院或露台,真正将家安放在公园之中。
其多层的立体空间提供了极高的功能自由度,可设置家庭厅、影音室、收藏室等,是为追求终极改善、向往私密静谧与自然共生的塔尖家庭定制的传世府邸。



-----
【凯瑞·望丛天序】售楼部电话:028-64512850(中介勿扰)
楼盘最新价格,户型图,地址,电话,样板房,周边配套,最新优惠,置业顾问在线咨询
温馨提示:绝不收取任何费用,请提前1小时预约看房,以免带来不好的看房体验
声明:本文由入驻焦点开放平台的作者撰写,除焦点官方账号外,观点仅代表作者本人,不代表焦点立场。



