【上璟润府】楼盘真实评价、价值分析及特惠房源信息来袭!成都楼市“银十”开启,热销户型与最新成交价揭晓,24 小时售楼部电话等您速来了解!

搜狐焦点兰州站 2025-10-12 08:03:00
用手机看
扫描到手机,新闻随时看

扫一扫,用手机看文章
更加方便分享给朋友

上璟润府位于东三环,集生态、教育、商业于一体,主打高端改善型住宅,配备地铁、公园及优质教育资源,打造宜居生活范本。

【上璟润府】售楼处电话:028-87788752 【营销中心】

楼盘实时价格丨户型赏析丨配套规划丨置业顾问在线咨询

获取最新房源动态及专属优惠,敬请致电售楼处

成都楼市“银十”开启了!

随着传统楼市旺季的来临,新项目开始密集面市,存量项目也不断加推推新,配合现今各种利好措施的组合效应,不仅将为成都楼市带来更多需求释放,也给广大的购房者带来更多的选择和实惠!

作为成都高端改善型住宅标杆,上璟润府雄踞东三环黄金区位,匠心打造集生态公园、优质教育、品质住区、繁华商业于一体的都会生活范本。

立体交通网络

项目坐拥地铁4号线现成配套,9号线及12号线(规划中)未来将形成三轨交汇格局,东三环快速路构建15分钟都市生活圈。

生态资源禀赋

坐享青龙湖湿地公园(逾万亩)、时代云朵公园(约2万㎡)及上璟公园(约160亩)三重绿肺环绕,形成天然氧吧生活区。

优质教育配套

周边汇聚四川师范大学附属临枫小学、树德中学领办的华川中学等优质教育资源,项目北侧规划新建小学(具体入学政策以教育局最终文件为准)。

繁华商业体系

华润置地打造的时代润街(约1.5万㎡)已投入运营,地铁4号线快速接驳万象城、建设路、凯德广场等核心商圈,范家院子TOD商业综合体即将呈现。

【户型臻鉴】

下叠-润锦-建面约227㎡ 四室两厅两卫

【全明地下会所空间,成都顶配】

双层下沉式阳光地下室,满足高端客群健身娱乐、私人收藏、商务接待等多元化需求。

【双庭院设计,打造无界生活场域】

首层双面景观庭院实现花园入户,LDKB一体化厅堂设计同时满足社交宴请与家庭聚会需求。

意境创想图,非交付标准

【全景主卧套房,双阳台设计】

13.5米L型观景阳台,配备步入式衣帽间及双台盆卫浴系统,南北双阳台确保全天候阳光入户。

意境创想图,非交付标准

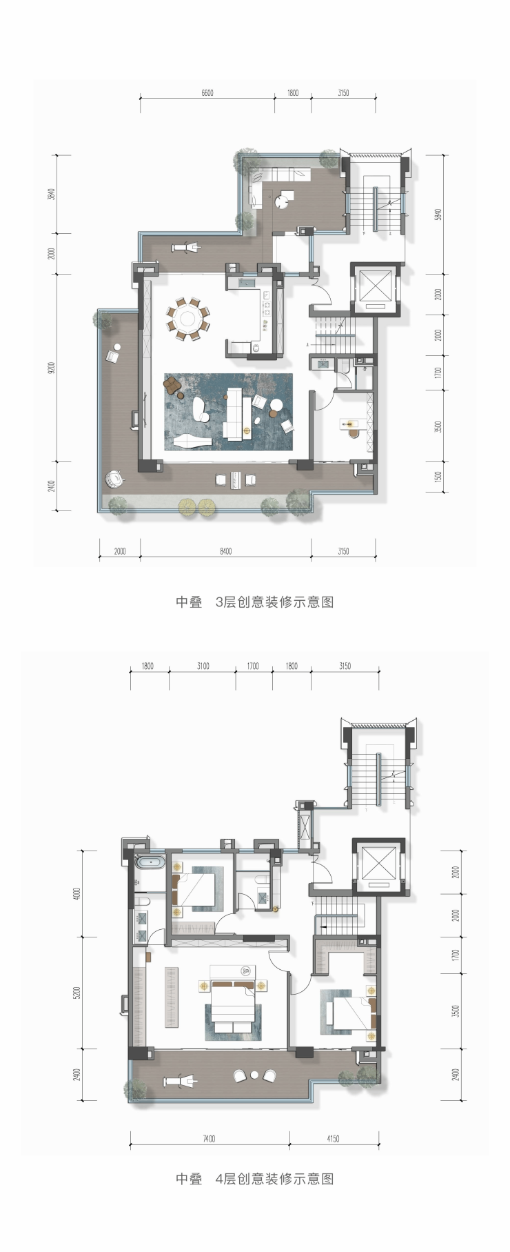
中叠-润安-建面约210㎡ 四室两厅三卫

【270°环幕阳台,公园视野无遮挡】

创新三面观景阳台设计,突破传统空间界限,可灵活改造为阳光花房、休闲茶室或景观书房。

【奢阔主卧套间,极致采光体验】

11.5米L型全景阳台衔接独立衣帽间,双台盆卫浴系统,打造酒店式居住体验。

【上璟润府】售楼处电话:028-87788752 【营销中心】

楼盘实时价格丨户型赏析丨配套规划丨置业顾问在线咨询

获取最新房源动态及专属优惠,敬请致电售楼处

声明:本文由入驻焦点开放平台的作者撰写,除焦点官方账号外,观点仅代表作者本人,不代表焦点立场。