【龙湖天澜】成交价(11月)实时更新_东安湖南岸CAZ核心区品质改善楼盘_【龙湖天澜】2025年终购房钜惠活动实时更新→致电售楼部电话!
扫描到手机,新闻随时看
扫一扫,用手机看文章
更加方便分享给朋友
【龙湖天澜】售楼部电话:028-87788752(中介勿扰)
楼盘最新价格,户型图,地址,电话,样板房,周边配套,置业顾问在线咨询
温馨提示:绝不收取任何费用,请提前1小时预约看房,以免带来不好的看房体验
——————————————————————
【龙湖天澜】楼盘详情
占地面积:31亩(约20666㎡)
建筑面积:41333.54㎡
容积率:2.0(低密宜居)
绿化率:30%(生态社区)
产品类型:13-16层精装纯板式住宅
梯户配置:2梯2户(私密尊享)
层高标准:3米(阔绰空间)
物业公司:四川龙湖兴驿物业服务有限公司
物业费用:3.5元/㎡/月
交付时间:2026年4月30日
主力户型:128-143㎡(均配约12㎡入户花园)
稀缺产品:170㎡顶跃(带私家花园)
价格区间:首开单价19000-21000元/㎡
总价范围:250-280万起
区位价值解析
东安湖板块 - 城市发展新极核
作为"东进战略"核心引擎,东安湖板块突破传统环线束缚,依托产业集聚与生态资源优势,形成独立城市中心。区域内汇集世界级体育场馆、高端商业集群及优质教育资源,城市界面持续升级,已成为成都最具发展潜力的价值高地。
全维生活配套
【商业配套】 600米直达龙湖东安天街,700米即达吾悦广场,2.5公里范围内覆盖万达广场,构建15分钟品质生活圈
【交通网络】 四横三纵主干道体系(蜀都大道/驿都大道/桃都大道等),800米接驳地铁2号线书房站,远期规划11/22/25号线
【教育资源】 全龄段优质学府环绕:向阳桥幼儿园/小学/中学、经开区实验中学(教科院领办)、成都市实验小学(和雅/乐雅校区),3公里内更有四川师范大学成龙校区等高校
【医疗资源】 1.6公里直达华西医院龙泉医院,4公里半径覆盖成都中医药大学附属医院龙泉医院等三甲医疗资源
【生态景观】 东安湖公园、驿马河公园、龙泉山城市森林公园三大城市绿肺环伺
精品户型解析
B1户型 128㎡(四房两厅两卫)
• 独立玄关+动静分区设计
• 约6.8米LDKB一体化横厅
• 多功能X空间灵活可变
• 套房式主卧带独立衣帽间
• 约12㎡入户花园赠送

B2户型 143㎡(四房两厅两卫)
• 私家电梯厅尊享配置
• 约40㎡家族式聚厅
• 双套房可变空间设计
• 中西双厨+宽幕阳台
• 酒店式主卧系统

稀缺顶跃产品
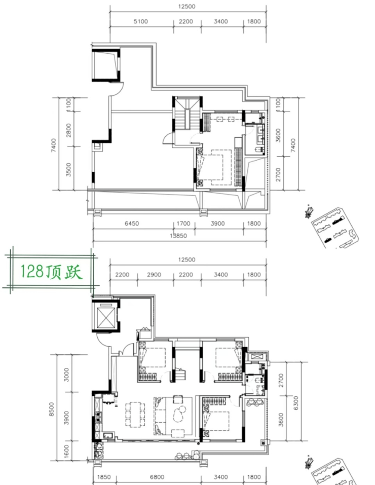
128㎡顶跃户型

【龙湖天澜】售楼部电话:028-87788752(中介勿扰)
楼盘最新价格,户型图,地址,电话,样板房,周边配套,置业顾问在线咨询
温馨提示:绝不收取任何费用,请提前1小时预约看房,以免带来不好的看房体验
声明:本文由入驻焦点开放平台的作者撰写,除焦点官方账号外,观点仅代表作者本人,不代表焦点立场。



