【龙湖·光年】成都行政学院TOD城-多元业态-电话-楼盘价格走势最新-优惠房源更新
扫描到手机,新闻随时看
扫一扫,用手机看文章
更加方便分享给朋友
【龙湖·光年】售楼部电话:028-64512850(已认证)
楼盘最新价格,户型图,地址,电话,样板房,周边配套,最新优惠,置业顾问在线咨询
温馨提示:绝不收取任何费用,请提前1小时预约看房,以免带来不好的看房体验
---
龙湖·光年是龙湖集团在成都东部行政学院TOD板块打造的约66万方超大体量全业态综合体。项目深度融合TOD开发模式,集约14万㎡龙湖天街购物中心、180米地标塔楼、墅区洋楼、精品公寓、商业街及品质住宅于一体。住宅产品线丰富,涵盖建面约112-140㎡的精装小高层、约185-298㎡的叠拼院落,旨在以前瞻性的“配套先行”理念,在城东再造一座功能完备、繁华即享的未来之城,兑现效率远超传统板块。

01 核心地段与价值 踞守行政学院TOD战略要地,以“地铁→商业→住宅”的颠覆性开发模式,兑现高效成熟的未来生活主场
项目所在的行政学院TOD板块,打破了“住宅先行、配套后建”的传统路径,采用“配套先行”的TOD模式,确保业主入住时即享成熟都市生活。
TOD模式典范:板块以地铁2号线行政学院站为核心,优先落地商业、公园等配套,再用3年时间快速兑现其他板块需10年发展的成熟度。项目是这一模式的核心载体,享受其带来的高效与确定性。
城东发展引擎:项目位于成都“东进”战略的重要节点,依托驿都大道城市主轴与TOD枢纽,正快速崛起为集交通、商业、居住、生态于一体的城东新中心,发展势能强劲。
立体交通枢纽:项目与地铁2号线无缝衔接,并享规划中的9号线利好,通过轨道交通5站可达金融城,6站至攀成钢,10站至春熙路,高效接驳全城核心。

(最新价格、在售房源等信息,请致电【龙湖·光年】售楼部官方电话:028-64512850 )
02 项目规划与设计 龙湖“造城”实力巨著,以66万方全业态规划,构建工作、居住、消费、休闲无缝切换的一站式微城市
龙湖集团以其卓越的城市运营能力,在此打造了一座功能高度复合的“城中之城”,极大提升了生活的便利性与丰富度。
全业态共生之城:项目规划约66万方,涵盖大型天街商业、地标办公、商业街区、多元住宅,真正实现“下楼即商圈,出门即地铁”,将都市繁华变为日常背景,大幅节省通勤与生活时间成本。
旗舰商业引擎:自持打造的约14万㎡龙湖天街是区域商业核心,将引入全业态品牌,填补区域大型商业空白,并联动180米地标塔楼,塑造板块天际线与商务核心。
多元产品矩阵:住宅产品提供多样化选择,满足不同客群:精装小高层适合都市精英家庭;稀缺的叠拼产品(仅18席)则在城市核心提供“有天有地”的院落生活。

03 社区配套与资源 坐享万亩生态绿肺与“三华西”顶级医疗,拥盐道街、树德系名校环伺,构建资源顶配的“三公里理想生活圈”
项目周边生态、医疗、教育资源不仅优质,而且密度与能级极高,在短程生活圈内即可满足家庭全维度的顶尖需求。
万亩生态绿肺环抱:项目被约15000亩三圣花乡、3000亩白鹭湾湿地、3万亩青龙湖湿地公园等城市级生态资源环绕,堪称“建在公园里的城市”,生态宜居性无与伦比。
顶级医疗健康保障:享有成都罕见的 “三华西”医疗配置,包括已运营的华西第二医院锦江院区、在建的华西医院及华西口腔医院,为家人健康提供最高级别的守护。
全龄优质教育链:项目周边名校林立,成都市盐道街小学、树德中学、七中育才学校(银杏校区) 等优质公办学府环伺,构成了从小学到中学的黄金教育路径。
(最新价格、在售房源等信息,请致电【龙湖·光年】售楼部官方电话:028-64512850 )
04 主力产品解析 多元产品线覆盖112-298㎡,从高效小高层到城市叠院,满足菁英家庭、多代聚居等不同阶段的品质生活想象
项目提供从紧凑功能型到终极改善型的完整产品谱系,旨在让不同需求的城市菁英都能在此找到理想居所。
建面约112-140㎡ 精装小高层
作为项目的主力高层产品,定位为都市核心区的品质改善之选。户型设计注重功能实用与空间效率,能够很好地满足年轻家庭、三代同堂的居住需求。精装交付省去装修烦恼,结合TOD的便捷与天街的繁华,是享受高效都市生活的优选。


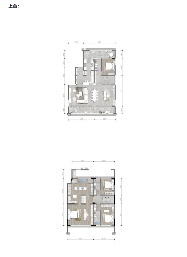
建面约185-298㎡ 城市叠拼院落
此为项目的稀缺珍藏品,在城东TOD核心区实现低密院落生活。产品分为上、中、下叠,均附赠超大花园或星空露台。龙湖匠心打造,仅18席的限量供应,确保了产品的极致私密性与圈层纯粹度,是为城市塔尖阶层提供的、兼具繁华与静谧的终极居所。



---
【龙湖·光年】售楼部电话:028-64512850(中介勿扰)
楼盘最新价格,户型图,地址,电话,样板房,周边配套,最新优惠,置业顾问在线咨询
温馨提示:绝不收取任何费用,请提前1小时预约看房,以免带来不好的看房体验
声明:本文由入驻焦点开放平台的作者撰写,除焦点官方账号外,观点仅代表作者本人,不代表焦点立场。



