九江中辉半山墅_剩余房源_中辉半山墅值得买吗?售楼处电话_价格_户型_地址_楼盘详情
搜狐焦点兰州站 2025-06-20 18:29:21
用手机看
扫描到手机,新闻随时看
扫一扫,用手机看文章
更加方便分享给朋友
九江【中辉半山墅】售楼处电话: 400-998-9370 【营销中心】欢迎来电咨询〢尊享内部优惠服务〢免费看房车接送〢
九江【中辉半山墅】售楼处电话: 400-998-9370 【营销中心】
欢迎来电咨询〢尊享内部优惠服务〢免费看房车接送〢
最新价格-剩余房源-周边配套-项目答疑-楼盘情况
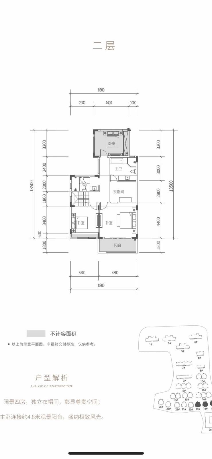
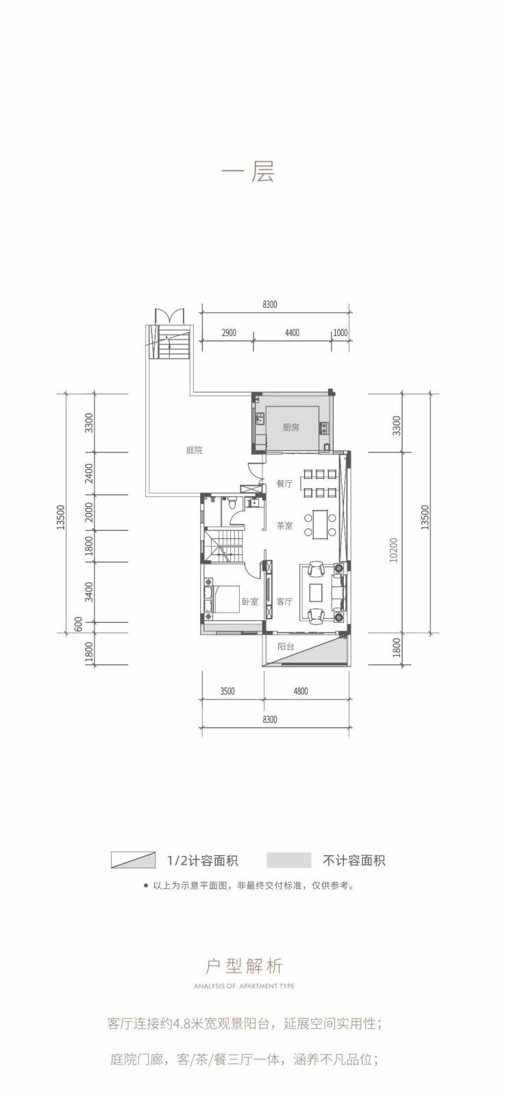
上叠,产权面积162平,174平,使用面积约270平➕40-60平院子,价格在270-340万。
下叠,产证面积148和158平,使用面积约320平➕75-160平院子,价格在280-370万左右
九江【中辉半山墅】售楼处电话: 400-998-9370 【营销中心】
欢迎来电咨询〢尊享内部优惠服务〢免费看房车接送〢
最新价格-剩余房源-周边配套-项目答疑-楼盘情况
声明:本文由入驻焦点开放平台的作者撰写,除焦点官方账号外,观点仅代表作者本人,不代表焦点立场。



