成都【中海天府合印】值得买吗?_【天投中海天府合印】最新成交价更新|户型图|容积率|位置交通|周边学校|售楼处电话

搜狐焦点兰州站 2025-10-11 07:29:00
用手机看
扫描到手机,新闻随时看

扫一扫,用手机看文章
更加方便分享给朋友

成都天投中海·天府合印由国企强强联合打造,位于天府新区核心,主打高端居住,融合生态、交通与品质生活,提供多样户型及专属优惠。

【天投中海天府合印】售楼处电话:028-87788752 【营销中心】

楼盘实时价格丨户型赏析丨配套规划丨置业顾问在线咨询

获取最新房源动态及专属优惠,敬请致电售楼处

品牌背书

成都天投集团×中海企业集团

国企央企强强联合,构筑品质双重保障

两大实力企业携手,共筑天府青年理想住区

区位优势

天投中海·天府合印坐落于天府新区核心天府前湾板块,毗邻成熟的天府商务区,北接麓山、西临麓湖等高端住区,占据城市发展黄金区位。作为天府新区核心区收官力作,项目汲取上海前滩、杭州前湾规划精髓,打造"天府森林新绿窗"、"政法服务新高地"、"公园生活新社区"三大功能板块。

区域内规划五大主题公园群落、生态景观廊道及双TOD交通枢纽,以公园城市理念为内核,与CBD商业配套相得益彰,彰显高端居住价值。

设计亮点

国际大师联袂打造,LWK建筑事务所×伯利森景观设计

天府新区稀缺70亩低密社区,营造多元生活场景

约170米景观主轴,勾勒层次丰富的园林空间

独创"甲板式观景平台",实现270°环幕视野

创新风帆式建筑立面,优化采光与观景视野

品质细节

融合国际前沿理念,打造现代都市活力社区

营造星级酒店式归家礼序

约40米星空入户长廊

约6米挑高精装大堂

为城市菁英缔造尊贵生活体验

主力户型

精选三至四房臻品户型

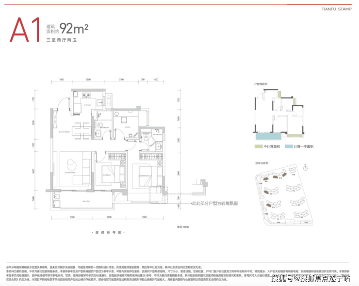
92㎡三房:三面朝阳,南向面宽达9.8米

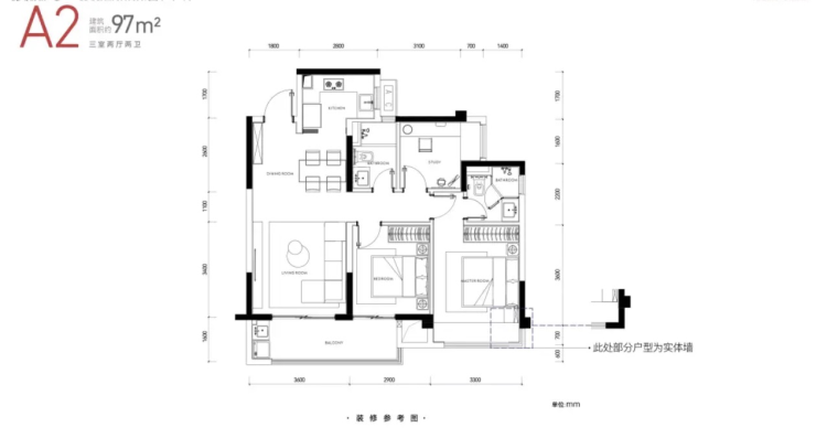
A2户型:97㎡三房两厅双卫

作为项目唯一采用南向阳台封窗设计的户型,在保持公建化外立面统一性的同时,首批次推出专属价格优惠,主力总价约200-210万。

户型设计亮点突出:97㎡实现三房两厅双卫全能布局;9.8米南向面宽,三面采光确保通透性;3.6米客厅与3.3米主卧尺度考究;主卧及书房配备0.7米进深飘窗,拓展实用空间。

D户型:113㎡三房两厅双卫

项目北向主力户型,12.1米超宽面宽实现双面采光。巧妙将次卫及书房置于次要位置,重点打造朝北一体化餐客厅与厨房,通过空间重组营造出130-140㎡的阔绰尺度感。

E户型:133㎡四房两厅双卫

【天投中海天府合印】售楼处电话:028-87788752 【营销中心】

楼盘实时价格丨户型赏析丨配套规划丨置业顾问在线咨询

获取最新房源动态及专属优惠,敬请致电售楼处

声明:本文由入驻焦点开放平台的作者撰写,除焦点官方账号外,观点仅代表作者本人,不代表焦点立场。