成都【中粮武侯瑞府】值得买吗?_【中粮武侯瑞府】楼盘评测(最新):位置交通、环境配套、楼层户型一文全解析

搜狐焦点兰州站 2025-10-09 19:27:00
用手机看
扫描到手机,新闻随时看

扫一扫,用手机看文章
更加方便分享给朋友

中粮武侯瑞府售楼部电话028-87788752,主打低密别墅,位于武侯新城核心,主打高端住宅,性价比高,环境优美,交通便利。

【中粮武侯瑞府】售楼部电话:028-87788752(中介勿扰)

楼盘最新价格,户型图,地址,电话,样板房,周边配套,置业顾问在线咨询

温馨提示:绝不收取任何费用,请提前1小时预约看房,以免带来不好的看房体验

——————————————————

【中粮武侯瑞府】楼盘详情

本次重点推售1号地块:玺院

物业类型:清水交付叠拼别墅、合院

开发商资质:成都中金澍茂置业有限公司

产权年限:70年大产权

总规划:260户精品住宅,19栋低密建筑

交付时间:2024年第一季度末

——————————————————————

产品参数

梯户配置:1T1独立入户/1T2共享电梯(6叠产品)

空间尺度:

• 合院:220-250㎡(1200-2000万),附赠40-260㎡庭院,260㎡样板间总价1518万

• 下叠:207-260㎡(670-1000万),配置30-160㎡私家庭院

层高设计:首层3.5米,标准层3.3米,地下室5.7米挑高

————————————————————————

社区规划

区位优势:三环至绕城黄金地段

占地面积:约63亩低密住区

容积率:1.09超低密度

绿化体系:30%生态覆盖率

停车配置:1:2.4充足车位比

物业服务:中粮地产集团深圳物业成都分公司

物业费用:5.2元/㎡/月

——————————————————

【主城稀贵 天赋地段】

项目雄踞武侯新城核心区,坐享双凤TOD城市综合体辐射(3公里范围内7条轨交线路、11个站点),三线地铁环绕,双生态公园环抱。既享都市繁华,又拥自然静谧,成就大隐于市的理想居所。

【纯正墅居 典藏之作】

【六大价值 值得珍藏】

【传世合院 稀世典藏】

[独栋庭院体系]私属院落空间,营造天人合一的居住意境

[专属电梯系统]独立电梯贯通多维空间,实现生活场景自由切换

[总统级主卧套间]超大尺度主卧空间,270°观景阳台尽揽风光

[多功能地下空间]5.7米层高地下室,可打造私人影院、健身会所等多元功能空间

[星空屋顶会所]空中花园会客厅,实现自然与社交的完美融合

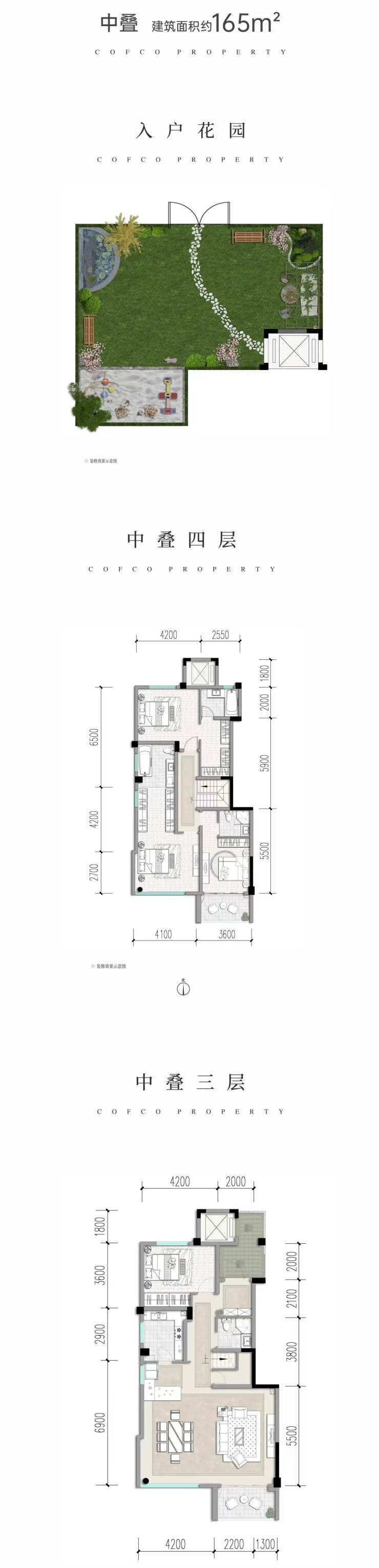
【户型臻品鉴赏】

【空中墅居 层境美学】

[花园式入户体验]创新设计中叠庭院,重塑高端居住标准

[尊崇电梯系统]私密直达的归家动线,彰显身份礼遇

[7.7米超大横厅]全景落地窗设计,引景入室,光影流转

[全套房配置]每个卧室均配备独立卫浴,保障家人生活隐私

【户型臻品鉴赏】

【府院人生 境界之选】

[专属电梯前厅]私属归家礼仪,匹配精英阶层生活需求

[54㎡LDK一体化厅]开放式社交空间,满足高端聚会需求

[42㎡豪华主卧套]双衣帽间设计衔接观景阳台,演绎品质生活

[星空露台系统]360度景观视野,营造诗意栖居体验

【户型臻品鉴赏】

下叠产品亮点

【中粮武侯瑞府】售楼部电话:028-87788752(中介勿扰)

楼盘最新价格,户型图,地址,电话,样板房,周边配套,置业顾问在线咨询

温馨提示:绝不收取任何费用,请提前1小时预约看房,以免带来不好的看房体验

声明:本文由入驻焦点开放平台的作者撰写,除焦点官方账号外,观点仅代表作者本人,不代表焦点立场。