成都【蔚蓝卡地亚花园城CEO公馆】值得买吗?_【蔚蓝卡地亚花园城】10月最新房价披露|项目优缺点|周边配套规划速览|售楼部电话

搜狐焦点兰州站 2025-10-10 17:31:00
用手机看
扫描到手机,新闻随时看

扫一扫,用手机看文章
更加方便分享给朋友

【蔚蓝卡地亚花园城CEO公馆】位于天府新区,占地1200亩,集商务、酒店、商业、教育、医疗等于一体,总建筑面积210万方,精装标准高,价格4-8万/㎡,2024年交付,交通便利,环境优越。

【蔚蓝卡地亚花园城CEO公馆】售楼处电话:028-87788752

楼盘实时价格丨户型赏析丨配套规划丨置业顾问在线咨询

获取最新房源动态及专属优惠,敬请致电售楼处

作为天府新区门户地标,【蔚蓝卡地亚花园城CEO公馆】坐拥得天独厚的地理优势。项目北依4200亩天府森林公园,南瞰3400亩中央湿地公园,其战略地位堪比上海浦东新区。这座总建筑面积达210万方的城市综合体,规划包含国际商务双塔、奢华度假酒店集群、三大主题商业街区、国际化幼教中心及八大生态住宅区。

项目概况:

· 占地面积:约1200亩

· 开发单位:成都花园城蔚蓝卡地亚置业有限公司

· 物业服务:成都蔚蓝卡地亚物业管理有限公司

· 产权性质:商业40年

· 能源配置:商用标准水电(不通燃气)

· 建筑参数:67层超高层/3.4米层高

· 户型区间:144-188-330-650-1300㎡

· 价格体系:4-8万/㎡(一房一价)

· 主力总价:490-800万

· 可选楼层:43-48F/54-59F

· 梯户配置:6梯8户

· 公摊比例:25%-27%

· 精装标准:8000元/㎡

· 交付时间:2024年

· 物业服务费:前三年8元/㎡·月,后期10元/㎡·月

立体交通网络:

项目坐拥双地铁优势:1号线武汉路站B5出口直达,19号线红莲村站(建设中)近在咫尺。毗邻城市候机楼TOD枢纽,可快速通达天府国际机场(2021年启用)和双流国际机场,提供值机、行李托运等便捷服务。

全龄教育配套:

社区内设金苹果IB国际幼儿园,步行可达天府七小(公立)及天府七中(私立K12),实现0-18岁一站式精英教育。

高端医疗资源:

项目周边汇聚华西天府医院及美国匹兹堡私立医院(外籍医师占比20%)。

奢享生活配套:

由全球顶级景观设计公司AECOM打造的100亩人工湖区,配套包含蔚蓝俱乐部、蓝榭餐厅、艺术中心、儿童乐园、便利店及在建商业综合体(含精品超市)。凯悦集团旗下两家超五星酒店即将落成。

尊贵服务体系:

1. 8.8米挑空酒店式大堂,配备方所定制图书馆、健身中心、私人影院、普拉提室及咖啡廊

2. 2000㎡恒温泳池及24小时管家服务

3. 专业资产托管服务,含五星级酒店送餐、私宴定制及衣物洗护

4. 国际一线品牌精装交付

5. 全球顶尖建筑设计团队操刀

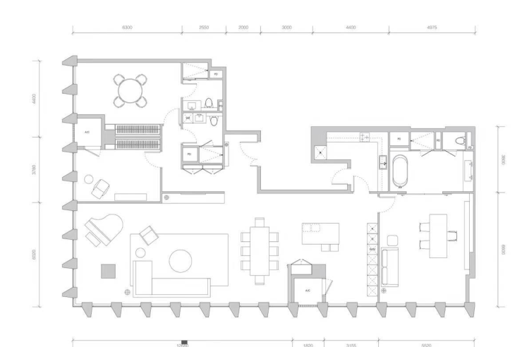
精品户型展示:

144㎡两居室

188㎡两居室

330㎡三居室

650㎡半层尊邸

1300㎡整层大宅

【蔚蓝卡地亚花园城CEO公馆】售楼处电话:028-87788752

楼盘实时价格丨户型赏析丨配套规划丨置业顾问在线咨询

获取最新房源动态及专属优惠,敬请致电售楼处

声明:本文由入驻焦点开放平台的作者撰写,除焦点官方账号外,观点仅代表作者本人,不代表焦点立场。