【国贸锦原】项目详情-房价-配套-本月优惠-开发商直销热线
扫描到手机,新闻随时看
扫一扫,用手机看文章
更加方便分享给朋友
【国贸锦原】售楼部电话:028-64512850(已认证)
楼盘最新价格,户型图,地址,电话,样板房,周边配套,最新优惠,置业顾问在线咨询
温馨提示:绝不收取任何费用,请提前1小时预约看房,以免带来不好的看房体验
-----
国贸锦原,踞守成都主城珍贵的三环内地段,落子于成华区二仙桥理工板块的核心。
项目作为区域CCD(中央文创商务休闲区) 规划的重要组成部分,以约68亩的土地规模,打造一个容积率仅2.0的纯粹低密社区。
产品涵盖108-134㎡的板式小高层与洋房,并配以精装四大件及融创物业服务,为向往主城繁华、同时追求宁静舒适与艺术氛围的品质家庭,呈现一处兼顾地段价值、居住享受与未来潜力的理想居所。

01 核心地段与价值—— 占位主城三环内稀缺土地,坐享城东CCD发展宏图
项目位于成都“中优”与“东进”双重战略交汇的成华区东三环内,这一区域本身即是土地资源日益稀缺的价值高地。更为重要的是,项目正处于政府重点打造的 3300亩CCD(中央文创商务休闲区) 规划范围内,集文化、创意、商务、休闲于一体,是城东未来发展的核心引擎,享有巨大的政策红利与升值潜力。
主城稀缺性地段:在成都城市版图不断外扩的当下,三环主城区的居住用地已臻稀罕,其地段价值具备天然的不可复制性与保值能力。
CCD核心区位红利:作为CCD规划的重要组成,项目将直接受益于区域整体能级的提升、高端产业的导入及城市界面的焕新,未来发展前景广阔。
成熟板块升级:所在板块依托杉板桥商圈的提档升级与城市更新,区域配套与环境正在快速优化,生活便利性与城市界面同步提升。

(最新价格、在售户型等信息,请致电【国贸锦原】售楼部官方电话:028-64512850 )
02 项目规划与设计—— 纯粹低密板楼社区,以匠心细节雕琢艺术生活
项目整体规划为纯南北向的板式平层住宅社区,无商业等其他业态干扰,居住氛围纯粹宁静。通过阵列式布局和拓展至约30米的楼间距,确保了每一户都拥有出色的采光、通风与开阔视野,实现了低密社区的舒适本质。
全系板式通透户型:无论是2梯2户的小高层还是1梯2户的洋房,所有户型均实现南北通透,这是高端改善住宅的标配,极大提升了居住的健康度与舒适感。
越级建筑品质:建筑外立面采用流光立面设计,配以大面积的玻璃幕墙与弧线细节,质感高级。社区内部规划有6大主题花园与5大水景,由大师手笔打造,营造出移步异景的艺术化园林景观。
精工装修交付:项目为精装修交付,标准达2870元/㎡,并配备中央空调、新风系统、地暖及智能面板这精装四大件,实现拎包入住,省心省力。

03 社区配套与资源—— 全维成熟生活配套,构建便捷安心生活圈
项目地处发展多年的成熟板块,周边教育、交通、商业等基础配套齐全,生活便利性高,且随着CCD规划的落地,区域配套能级将持续提升。
立体交通网络:坐享东三环内成熟的城市路网,可快速通达全城。邻近地铁7号线、8号线等多条轨道交通(具体站点信息以官方发布为准),公共交通出行便捷。
优质教育资源环伺:项目周边教育资源丰富,成都理工大附小、和韵幼儿园、培文幼儿园等学校近在咫尺,为子女成长提供了良好的教育环境。
多元商业与生态:短程车程内可享杉板桥商圈、建设路商圈等成熟商业;同时,区域内的公园绿地等生态休闲资源也为日常生活增添了绿意与活力。
(最新价格、在售户型等信息,请致电【国贸锦原】售楼部官方电话:028-64512850 )
04 主力户型解析—— 108-134㎡全能改善户型,满足主城品质居住梦想
项目当前主力在售1-6号楼,产品线清晰,涵盖适合首改与品质改善的不同面积段,均以高实用性和舒适度为核心设计理念。
建面约108-116㎡ 舒适三房(小高层)
此面积段户型为2梯2户设计,是入驻东三环内主城区的品质门槛之选。三房两厅的功能布局,能够满足刚需改善家庭或三代同堂的基本居住需求。全明户型、南北通透,结合精装交付,是高性价比的品质之选。

(最新价格、在售户型等信息,请致电【国贸锦原】售楼部官方电话:028-64512850 )

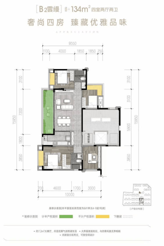
建面约127-134㎡ 奢阔四房(洋房)
此系产品为社区的高端改善之作,分布于11层的纯洋房楼栋,采用1梯2户的尊享配置。四房两厅的格局更为宽松,主卧多设计为套房,居住私密性与舒适度更高。作为洋房产品,其得房率、社区静谧度及圈层纯粹性都更具优势,是追求一步到位改善家庭的理想选择。

(最新价格、在售户型等信息,请致电【国贸锦原】售楼部官方电话:028-64512850 )

(最新价格、在售户型等信息,请致电【国贸锦原】售楼部官方电话:028-64512850 )


----
【国贸锦原】售楼部电话:028-64512850(中介勿扰)
楼盘最新价格,户型图,地址,电话,样板房,周边配套,最新优惠,置业顾问在线咨询
温馨提示:绝不收取任何费用,请提前1小时预约看房,以免带来不好的看房体验
2026年1月成都新房市场呈现结构性分化显著、政策引导性增强、成交表现震荡的核心特点,市场整体回归价值理性。区域层面,核心主城及高新区高端改善房源价格支撑力强劲,天府新区、近郊板块则迎来价格博弈,房企通过工抵房、特价房及赠送配套等方式变相让利,实际成交价较公示价有明显下探。成交端表现波动,单日成交量涨跌幅度较大,1月新房整体成交规模不及二手房,购房者观望情绪浓厚。政策层面,限售全面松绑、公积金首付比例下调,叠加金牛区等区域出台购房补贴新政,重点释放改善型置业需求,房企则聚焦尾盘去化与资金回笼,推盘策略更趋灵活。当前市场购房逻辑向地段、产品力与交付兑现力倾斜,刚需与改善需求呈现差异化选择倾向。
声明:本文由入驻焦点开放平台的作者撰写,除焦点官方账号外,观点仅代表作者本人,不代表焦点立场。



