成都【中铁博雅艺术城】售楼部发布_成都一环核心精装4房_485万-680万_样板间开放_售楼部预约电话
扫描到手机,新闻随时看
扫一扫,用手机看文章
更加方便分享给朋友
成都【中铁博雅艺术城】售楼部电话:028-87788752(中介勿扰)
售楼处价格,户型图,地址,电话,样板房,周边配套,项目介绍
温馨提示:绝不收取任何费用,请提前1小时预约看房,以免带来不好的看房体验
————
一环核心区域-成都买房,这里是必选区域之一
七中万达侧|双地铁交汇|
建面约170-230㎡ 全系四房 静域珍藏
70-230㎡纯粹豪宅尺度!总价485万-680万
中庭超140年银杏秘境
5000㎡超高奢华装标
华为鸿蒙全屋智能系统
绝版地段+顶配品质,错过再无!

【物业类别】住宅
【占地】约24亩
【楼栋数】3栋
【梯户比】2号楼为2梯2户/1、3号楼为3梯3户
【楼层情况】25层
【层高】:3.1米
【产品】约170/171/188/210/230㎡ 精装四房
【精装】全维定制精装体系,国内外一线品牌

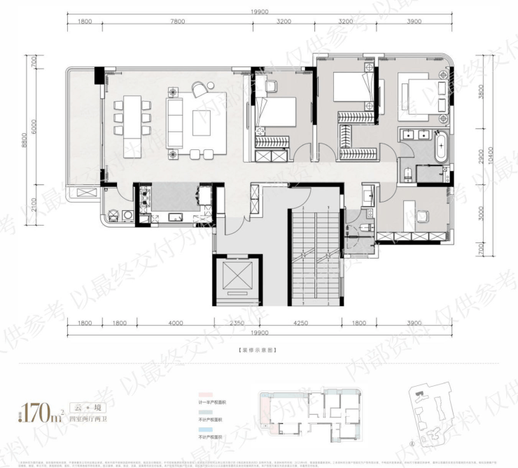
170㎡四室两厅两卫
核心亮点:约20m整屋面宽,约55㎡LDKB一体化端厅,全家欢聚空间

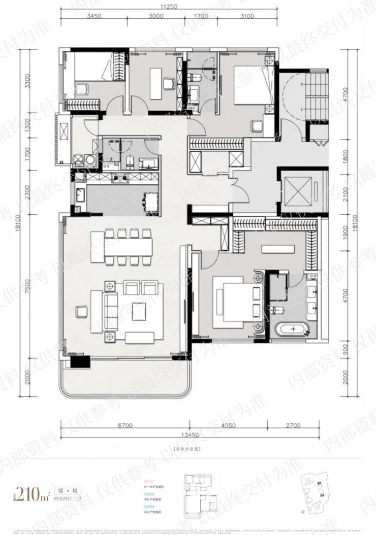
171㎡四室两厅三卫
核心亮点:双套房设计,约50㎡LDKB一体化方厅,极致个性化空间

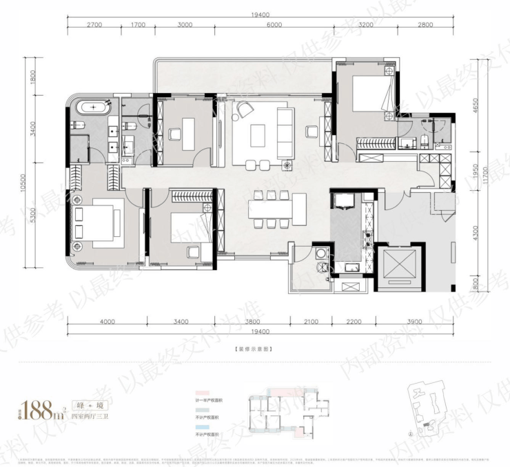
188㎡四室两厅三卫
核心亮点:大面宽横屏视野,三卧室朝南,阳光充盈生活


188㎡四室两厅三卫
核心亮点:约9m景观阳台,直面中庭极致风景


188㎡四室两厅三卫
核心亮点:双主卧套房分区设计,总统级主卧套房配备男女主专属衣帽间,270°环幕视野

188㎡四室两厅三卫
核心亮点:约65㎡LDKB酒店级会客厅,极致化定制空间

样板间照片
示范区样板间已开放,欢迎致电售楼部电话预约:028-87788752。
成都【中铁博雅艺术城】销售部电话:028-87788752(中介勿扰)
售楼处价格,户型图,地址,电话,样板房,周边配套,项目介绍
温馨提示:绝不收取任何费用,请提前1小时预约看房,以免带来不好的看房体验
声明:本文由入驻焦点开放平台的作者撰写,除焦点官方账号外,观点仅代表作者本人,不代表焦点立场。



