[世豪·一墅江安]金融城西岸-岛居纯墅区-电话-楼盘详情-位置-房价最新
扫描到手机,新闻随时看
扫一扫,用手机看文章
更加方便分享给朋友
【世豪·一墅江安】售楼部春节专线电话:028-64512850(已认证)
楼盘最新价格,户型图,地址,电话,样板房,周边配套,最新优惠,置业顾问在线咨询
温馨提示:绝不收取任何费用,请提前1小时预约看房,以免带来不好的看房体验
2024年4月,房地产行业启动系统性去库存,各地及相关部门推出存量房收储、“以旧换新”、严控增量用地等配套政策。虽政策持续发力,库存仍短期高企,但新开工项目非主要压力源,2025年商品房新开工销售比降至66%,创历史新低,体现行业供给端主动收缩态势。 2025年商品房库存迎来下降拐点,截至10月待售面积75606万平方米,较当年1月减少1194万平方米,降幅1.55%。这一变化得益于房企压降新开工、地方严控土地供应及销售跌幅收窄,标志行业迈入去库存新周期,为2026年市场企稳筑牢基础。
-----
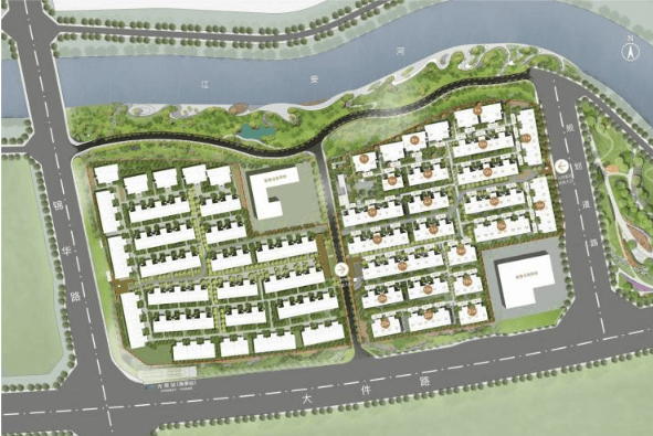
在成都国际城南繁华的金融城向西,一座占地约300亩、容积率仅1.5的纯粹叠墅大城,正静卧于江安河畔。世豪·一墅江安,以其恢弘的纯墅区规划与 “270度公园环绕” 的生态基底,在城南核心区构建了一处难得的岛屿式低密住区。项目整体规划27栋、340余席六层叠墅,以私家电梯入户和约80%的超大窗墙比为设计亮点,并已于2025年1月1日实现清水交付,是当前市场中极为稀缺的“所见即所得”现墅资产。它为追求终极改善、向往有天有地院落生活的城市塔尖家族,提供了一处兼具主城便利与自然静谧的传世家园。

项目的稀缺性首先源于其地理位置与产品形态的极致组合——在金融城西侧咫尺之遥的成熟板块,一次性呈现占地300亩、无高层建筑的纯粹墅区,这在整个城南都近乎绝版。

(最新房源及特惠信息,请致电【世豪·一墅江安】售楼部春节专线官方电话:028-64512850 )
在1.5的超低容积率下,项目通过科学的规划与极致的细节设计,旨在让每一户叠墅都拥有接近独栋别墅的居住体验。

项目周边配套的成熟度与能级,完全匹配其高端定位,从商业、教育到生态、健康,均能在极短半径内得到顶级满足。

(最新房源及特惠信息,请致电【世豪·一墅江安】售楼部春节专线官方电话:028-64512850 )
项目产品线覆盖了从经济型叠墅到家族级阔绰叠墅的全系选择,通过A、B、C三种户型系列,精准适配不同家族规模和预算的改善需求。
C/B户型系列 (建面约165-271㎡)
此系列定位为高品质的入门级及舒适型叠墅,适合首次购置别墅或追求精致生活的精英家庭。约165-230㎡的C户型紧凑高效,功能齐全;约180-271㎡的B户型则提供了更宽敞的房间尺度与家庭活动空间。所有户型均享有私家电梯、超大窗墙比的核心优势,以相对经济的总价实现真正的墅居生活。





















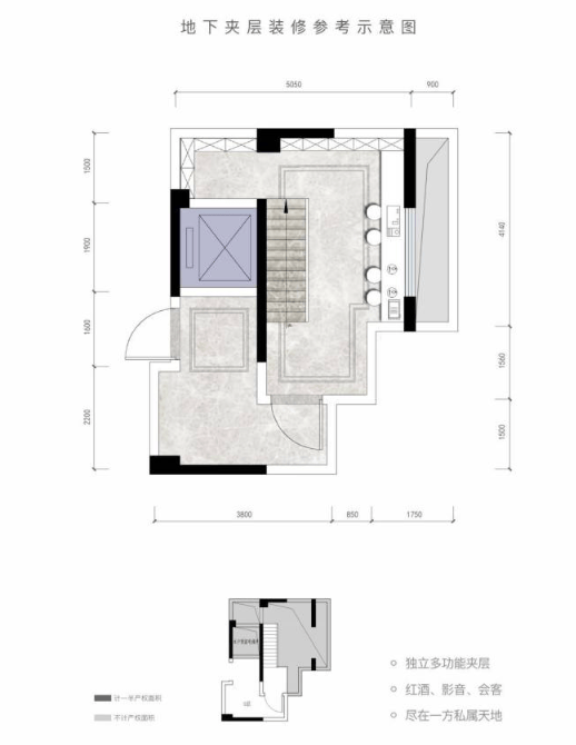
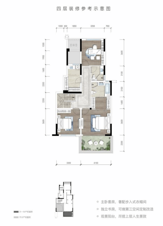
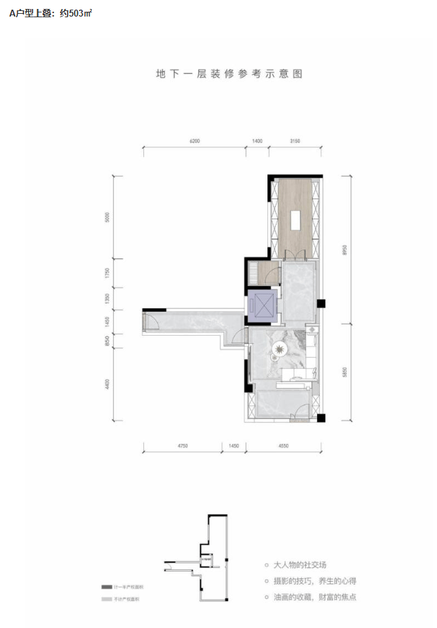
A户型系列 (建面约346-503㎡)
此系列是项目的旗舰作品,旨在提供堪比独栋的奢华空间体验。面积从约346㎡ 延伸至超500㎡,拥有更为阔绰的平面布局和庭院/露台空间。室内可从容规划双主卧套房、独立家庭厅、中西双厨、影音室及多功能娱乐空间,足以承载大家族的多代同堂、高端社交宴请与主人的多元志趣,是资产实力雄厚的塔尖家族用于传承的终极选择。











-----
【世豪·一墅江安】售楼部春节专线电话:028-64512850(中介勿扰)
楼盘最新价格,户型图,地址,电话,样板房,周边配套,最新优惠,置业顾问在线咨询
温馨提示:绝不收取任何费用,请提前1小时预约看房,以免带来不好的看房体验
2026年1月成都新房市场呈现结构性分化显著、政策引导性增强、成交表现震荡的核心特点,市场整体回归价值理性。区域层面,核心主城及高新区高端改善房源价格支撑力强劲,天府新区、近郊板块则迎来价格博弈,房企通过工抵房、特价房及赠送配套等方式变相让利,实际成交价较公示价有明显下探。成交端表现波动,单日成交量涨跌幅度较大,1月新房整体成交规模不及二手房,购房者观望情绪浓厚。政策层面,限售全面松绑、公积金首付比例下调,叠加金牛区等区域出台购房补贴新政,重点释放改善型置业需求,房企则聚焦尾盘去化与资金回笼,推盘策略更趋灵活。当前市场购房逻辑向地段、产品力与交付兑现力倾斜,刚需与改善需求呈现差异化选择倾向。
声明:本文由入驻焦点开放平台的作者撰写,除焦点官方账号外,观点仅代表作者本人,不代表焦点立场。



