成都高新区【高投新川一号】优缺点:高新南57㎡-197㎡ 精装现房_新川一号交通区位|周边配套|主力户型解析|开发商物业|售楼部电话
扫描到手机,新闻随时看
扫一扫,用手机看文章
更加方便分享给朋友
成都【高投新川一号】销售中心电话:028-87788752(中介勿扰)
售楼处价格,户型图,地址,电话,样板房,周边配套,项目介绍
温馨提示:绝不收取任何费用,请提前1小时预约看房,以免带来不好的看房体验
------------------------
高投新川一号【 锦悦府】【和悦府】【汇悦府】【印悦府】高新南·新川南·新程大道57㎡-109㎡/114㎡-197㎡ 精装修· 现房

上个十年看金融城,下个十年看新川接棒金融城,背负产业升级的使命,由四川省政府和新加坡政府联合开发,参照德国汉堡哈芬城、瑞典KIST城,融入新加坡“园中之城”理念,缔造“创新、生态、人文”产城一体的世界交融之城。
产业高能级,立定城南高端牌面新川创新科技园于2012年5月8日开工建设,规划面积10平方公里,预计总投资1000亿元。
领衔新风口,大城再度进阶2020年,新川全力打造5G智慧城市战略落定,「以新川创新科技园为核心,全力打造5G智慧城,以点带面引领成都5G产业创新发展」。
产业入驻如火如荼,助力区域价值再攀升目前,新川已经落地重大产业项目34个,OPPO、浪潮、方正、拓尔思信息科技、超图软件,等领先型创新企业、研发中心、西南总部先后入驻。5G互联科创园预计2024年建成投运,中国移动产业研究院、网易成都研究院、微芯生物等均已入驻。
教育:新川科技园小学、高新实验小学(新川分校)、成都师范银都紫藤小学(南北校区)等,(具体可就读学校,以实时政府规划要求为准)

医疗:三级甲等——四川省中西医结合医院高新分院
地铁:五根松(1号线)蒲草塘(6号线)
商圈:3大TOD在旁, 五根松TOD(占地330亩,规划商业体量22万方)、新川科技园南站TOD(规划中)、万安TOD(规划中)、AI创新中心一二期共计超5万方临街开放式商业街区、天府软件园二期约8万方商业(规划中)、和悦广场、山姆会员店、6号邻里中心
高投锦悦府占地面积:约55亩(璟园+瑜园)
容积率:2.0
绿地率:35%地块
总楼栋数:9栋
在售面积:57-61-109-143-197平
总户数:572
户梯户比:2T2、2T3 、2T4
总层高:15-23层
装修标准:2800元/㎡(不带地暖)
精装均价:约2.7-2.85万元/㎡
物业费:2.6元/㎡/月(城资物业)
交房时间:已交房(现房)




占地面积:约66亩
容积率:2.5
绿地率:30%
地块总楼栋数:18栋
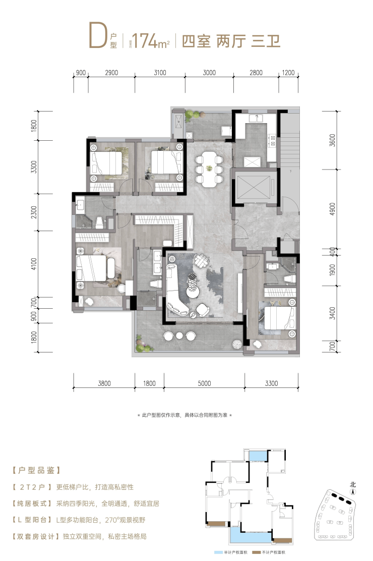
在售面积:174-176平
总层高:14-17层
总户数:665
户梯户比:2T2
总层高:17层
装修标准:2950/平米
精装均价:28500元/平米
物业费:3.1元/㎡/月(建发物业)
交房时间:已交房(现房)



占地面积:约38亩(瑧园+润园)
容积率:2.5
绿地率:30%
地块总楼栋数:9栋
在售面积:98-143-197平(98还有两套)
总户数:455户
梯户比:2T2、2T4
总层高:15-25层
装修标准:2950/平米
精装均价:28500元/平米
物业费:3.1元/㎡/月(建发物业)
交房时间:已交房(现房)



翠园占地面积:约20亩 容积率:2.5
绿地率:5% 梯户比:2T2,2T3
楼栋总数:5栋,本批次推售(3#、4#)
总户数:321(本次推售:105户)
在售面积:97-129-143㎡
交房时间:预计2024年12月
装修标准:2950元/㎡
房源均价:约2.4-2.6万元/㎡
物业:上海锐翔上房物业(2.98元/㎡)
成都【高投新川一号】销售中心电话:028-87788752(中介勿扰)
售楼处价格,户型图,地址,电话,样板房,周边配套,项目介绍
温馨提示:绝不收取任何费用,请提前1小时预约看房,以免带来不好的看房体验
声明:本文由入驻焦点开放平台的作者撰写,除焦点官方账号外,观点仅代表作者本人,不代表焦点立场。



