【上璟润府云溪院】规划怎么样?户型怎么样?售楼处电话多少?
扫描到手机,新闻随时看
扫一扫,用手机看文章
更加方便分享给朋友
成都【上璟润府·云溪院】销售中心电话:028-64512850(中介勿扰)
售楼处价格,户型图,地址,电话,样板房,周边配套,项目介绍
温馨提示:绝不收取任何费用,请提前1小时预约看房,以免带来不好的看房体验。
【有免费看房车接送服务,如需预约,请致电售楼处】
———
【上璟润府·云溪院】东三环惟此 | 超越新规改善墅作|华润置地主城改善公园大盘

【上璟润府·云溪院】是华润置地在成都打造的改善型住宅项目,位于龙泉驿区十陵镇大运村路,主打“四类生活+六大价值维度”的社区系统,融合住宅、公园、商业等多元功能。
【上璟润府·云溪院】作为上璟润府2期的全新新规产品,以“超新规”产品理念,重新定义主城改善生活。地块容积率1.88,主要业态为叠拼+小高层,正南面对约5.7万㎡上璟公园及溪谷河道。
编辑

东三环作为城市发展的重要区域,拥有丰富的城市资源和便捷的交通网络。
项目周边,东三环主干道贯穿而过,地铁 4 号线近在咫尺,还有规划中的 9 号、12 号线,形成了立体的交通格局。无论是自驾出行还是乘坐地铁,都能快速到达城市的各个核心区域,让您轻松畅享都市繁华。
随着城市的不断发展,该区域的交通优势将进一步放大,区域价值也会水涨船高,选择这里,就是选择了具有无限潜力的未来。

生态环境是上璟润府・云溪院的一大亮点。
项目整体规划约 400 亩,其中包含约 128 亩绿地公园和约 35 亩滨河景观带,还有城东稀缺的 10 万㎡儿童主题上璟公园。清晨,您可以在公园中漫步,呼吸着清新的空气,聆听鸟儿的歌声;傍晚,您可以带着家人在滨河景观带散步,欣赏夕阳的余晖。这里为居民提供了一个亲近自然、放松身心的理想场所,让您在繁忙的都市生活中也能享受到宁静与惬意。

首次获证的 1 栋、2 栋、6 栋为小高层,户型建面约 112 - 140㎡。这样的户型面积段能够提供宽敞舒适的居住空间,满足家庭不同成员的生活需求。合理的空间布局和功能分区,让每一寸空间都得到了充分的利用,为您打造一个温馨、舒适的家。而建面约198-205㎡的公园院墅,则兼顾大家庭共居与圈层社交需求,为终极改善客群量身定制。
建面约114㎡ 新规四房|实际使用空间约128㎡
•超越预期的实际空间尺度,主打“双园景视野”,引公园入室,模糊自然与生活的边界;
•四房布局兼顾成长与实用性,适合首改及青年家庭,涵盖主卧套房、儿童房、多功能房及灵活空间;
•颜值与功能并重的精装体系,强调收纳与人性细节,实现小而精、精而美的生活体验。

建面约135/139㎡ 新规可变五房|实际使用空间约155/165㎡
•成都主城惟此140㎡以下五房格局,直面多代家庭全生命周期需求;
•三面采光、双套房设计,保障私密与舒适,灵活空间可随家庭阶段自由变换;
•既满足二人世界的超级主卧套、也满足三口之家的亲子成长、还能满足多孩家庭的双儿童房需求、以及多代同住的双套房场景。


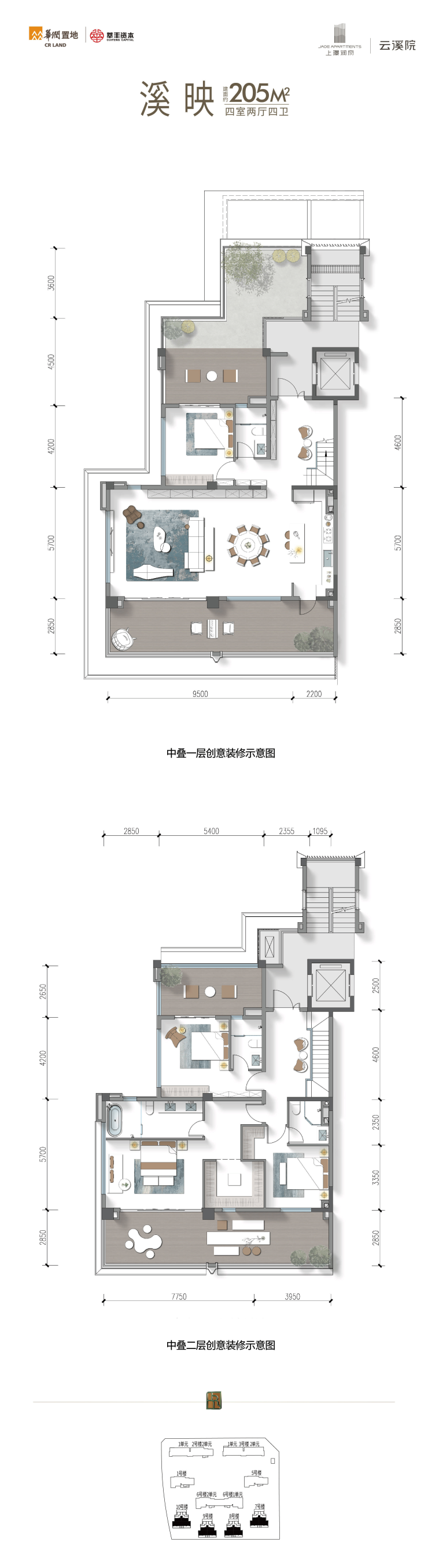
建面约198-205㎡ 公园院墅|第四代院子墅
•融合叠拼大平层化与第四代建筑理念,明星爆款下叠实际使用空间约660㎡(含院子);
•下叠享全采光地下室与临溪庭院,中叠拥南北双露台及多个花园,上叠设星空屋顶;
•真正实现“公园0距离”,推窗即景、出门即园,重塑主城低密生活范式;
•空间层次丰富,功能极致划分,兼顾大家庭共居与圈层社交需求,为终极改善客群量身定制。

【中叠】创意户型平面鉴赏:

【上叠】创意户型平面鉴赏:

上璟润府打造八大“润式”生活空间——无人花店/无人咖啡店/无人超市/书吧/健身会所/儿童空间/休闲会客/社区共享,为业主的生活提供多样美好场景,“把人的需求,装在家楼下”——不用跑远路,不用等时间,下楼就能享受到带娃、健身、社交、休闲的便利。住上璟润府,不只是买一套房子,更是买一种“省心、舒心、有格调”的日常。
如果您正在寻找一处既能享受便捷交通,又能拥有优质生态环境的改善型住宅,那么上璟润府・云溪院绝对值得您实地考察一番。在这里,您将开启一段全新的高品质生活之旅。
自然奢境示范区即将开放,欢迎莅临品鉴,预约请致电销售中心电话:028-64512850(中介勿扰)
成都【上璟润府·云溪院】销售中心电话:028-64512850(中介勿扰)
售楼处价格,户型图,地址,电话,样板房,周边配套,项目介绍
温馨提示:绝不收取任何费用,请提前1小时预约看房,以免带来不好的看房体验。
【有免费看房车接送服务,如需预约,请致电售楼处】
声明:本文由入驻焦点开放平台的作者撰写,除焦点官方账号外,观点仅代表作者本人,不代表焦点立场。



