天府新区9月热卖楼盘_【中海湖光玖里】优缺点_档次_中海湖光玖户型图大全_拨打售楼部电话→获取一房一价表
扫描到手机,新闻随时看
扫一扫,用手机看文章
更加方便分享给朋友
【中海湖光玖里】售楼部电话:028-87788752(中介勿扰)
楼盘最新价格,户型图,地址,电话,样板房,周边配套,置业顾问在线咨询
温馨提示:绝不收取任何费用,请提前1小时预约看房,以免带来不好的看房体验
——————
中海湖光玖里【楼盘详情】
占地面积:约3.3万平方米
规划户数:530席
楼栋总数:16幢
产品形态:花园洋房、品质小高层
主力户型:129-143㎡臻品空间
129㎡户型:15-17层 双电梯双户 独立玄关 多功能四房
143㎡户型:15-17层 双电梯双户 尊享入户 舒适四房
参考单价:2.3-2.5万元/㎡
总价区间:二期129/143㎡(300-360万元)
建筑高度:16-17层小高层
容积率:2.0
绿地率:35%
车位配置:1:1.5
电梯配置:单梯双户/双梯双户
物业管理费:3.5元/㎡/月
物业服务:中海物业
装修标准:2998元/㎡
交付时间:2024年12月至2025年5月
【区位配套】
交通路网:三纵(天府大道、梓州大道、益州大道)三横(沈阳路、武汉路、麓山大道)立体交通体系;三大TOD环绕:麓湖东TOD(规划)、昌公堰TOD(在建)、青岛路TOD(在建)
商业集群:麓湖水镇商业街、伊藤洋华堂天府旗舰店(在建)、天府和悦广场、山姆会员商店、麓山国际社区商业
教育资源:天府第七中学、四川天府新区第七小学、元音中小学、麓湖幼儿园、麓湖小学等优质学府环伺
项目亮点
三区交汇核心 坐享城市顶级资源
项目雄踞天府新区麓湖生态城、中央法务区、中央商务区黄金三角地带,既享有麓湖板块珍稀的生态资源,又坐拥中央商务区完善的产业配套与高端商业设施,同时毗邻中央法务区专业法务产业集群,实现城市顶级资源的完美聚合。
纯粹低密住区 定义高端生活标准
作为成都房价标杆区域,麓湖板块长期占据豪宅市场制高点:二手房单价3.9万元/㎡起,新房总价700万起的高门槛令众多置业者却步。板块四年仅出让三宗土地,花园洋房产品长期断供。中海湖光玖里距麓湖生态公园仅200米,以100-143㎡的适中面积段和亲民总价,为向往麓湖生活的购房者提供了难得的置业机遇。
三公里生活圈 奢享高端配套
生态资源:毗邻红石公园,坐拥麓湖生态区、天府森林公园、天府中央公园等万亩城市绿肺;人文配套:麓湖艺展中心(4A级)、雪莲堂美术馆、四川省博物馆(规划)、天府大剧院(规划)等文化地标环绕。
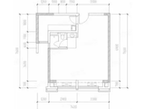
【主力户型展示】
129㎡四房两厅两卫
143㎡四房两厅两卫
【中海湖光玖里】售楼部电话:028-87788752(中介勿扰)
楼盘最新价格,户型图,地址,电话,样板房,周边配套,置业顾问在线咨询
温馨提示:绝不收取任何费用,请提前1小时预约看房,以免带来不好的看房体验
声明:本文由入驻焦点开放平台的作者撰写,除焦点官方账号外,观点仅代表作者本人,不代表焦点立场。



