人居九林语鎏云阁值得买吗?_人居九林语鎏云阁项目评测(最新):位置交通、环境配套、楼层户型全解析

搜狐焦点兰州站 2025-10-09 15:35:00
用手机看
扫描到手机,新闻随时看

扫一扫,用手机看文章
更加方便分享给朋友

九林语鎏云阁是成都领航级国企开发的高端改善楼盘,占地63亩,容积率2.5,配备双环线、地铁、公园等配套,主打海派复古风格,价格亲民,环境优美。

【人居九林语鎏云阁】售楼部电话:028-87788752(中介勿扰)

楼盘最新价格,户型图,地址,电话,样板房,周边配套,置业顾问在线咨询

温馨提示:绝不收取任何费用,请提前1小时预约看房,以免带来不好的看房体验

——————————————————————————————————

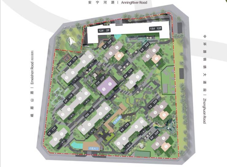
【项目概况】

项目占地:约63亩

产品面积:建面约118-187㎡臻装大平层

容 积 率:2.5

房源套数:687套

楼层情况:17F、22F、26F

物业服务:(待定)

【品牌篇】成都领航级国企 布局4城20区

成都兴城人居,市属国有城市开发企业首位,深耕成都20载,深度参与城市更新,致敬时代发展,已累计开发商品房项目70余个,布局成都20个区(市)县,自2017年以来,综合实力屹立成都第一梯队。

【区域篇】承袭壕奢基因 新启攀成钢2.0时代

东大街,成就了攀成钢,攀成钢,也成就了东大街。东大街,一条主轴贯穿向东,起于春熙、太古里,汇聚高能产业,高奢商业,同时汇聚D10、伊泰天骄、仁恒滨河湾等众多壕宅,板块价值再度跃迁!

【配套篇】

交通:双环线:2.5环及三环双环线;双主轴:安宁河路和东大街;双地铁:7号线大观站/2号线东客站;双TOD:大观TOD(规划中)/东客站TOD(2号线)

商业:项目自带约3000㎡花园悦街,聚集ICC、万象城、光环中心、华宇广场等主城级大型商圈。

教育:成都英华中、小学、蓉城小学(芙蓉校区)、锦绣青城幼儿园(斑竹分园)、成都大学附属中学等 (均在1.5公里范围内)

生态:项目紧邻约410亩的塔子山公园、约125亩东站绿轴公园

项目篇海派大宅,悦己主义高光新著

九林语鎏云阁,以约2.5精致容积、近1000㎡无界主题架空层、全维改善臻装空间,高定一座雅奢与美感并存的纯粹之境。

【项目亮点规划】

九林语鎏云阁:迭新城东改善新作;大面LOW-E玻璃+真石漆+铝板;成都首席海派复古圆林;全景入户光厅,270°环幕景观舱。

【精质立面】光幕美学新颜 刷新区域天际峯面。

九林语“林光生活美学”的全新演绎,特选真石漆搭配金属铝板,演绎近代摩登风范,争耀时代的双层LOW-E沐光玻璃,尽展天际线律之美。

【户型鉴赏】极致户型设计 迭新空间场景想象

花兮间-建面约118㎡

约7M超面宽阳台;近36㎡双面采光横厅;酒店级精质主套

风澜舍-建面约129㎡

约8.9M超阔景观阳台;超40m²LDKB一体化空间;全采光奢适四房

山禾悦-建面约143㎡(方厅)

约10㎡前厅空间;超45㎡中央社交场;270°超广角视野

璞隐归-建面约187㎡

尊配独立电梯厅;超60㎡宽幕光厅;270°环幕景观舱;双景观主卧套房

【人居九林语鎏云阁】售楼部电话:028-87788752(中介勿扰)

楼盘最新价格,户型图,地址,电话,样板房,周边配套,置业顾问在线咨询

温馨提示:绝不收取任何费用,请提前1小时预约看房,以免带来不好的看房体验

声明:本文由入驻焦点开放平台的作者撰写,除焦点官方账号外,观点仅代表作者本人,不代表焦点立场。