【金周路TOD国宾九玺】值得买吗?_【国宾九玺】楼盘评测(最新):位置交通、环境配套、楼层户型一文全解析
扫描到手机,新闻随时看
扫一扫,用手机看文章
更加方便分享给朋友
【金周路TOD国宾九玺】项目热线:028-87788752(中介勿扰)
楼盘最新价格,户型图,地址,电话,样板房,周边配套,置业顾问在线咨询
温馨提示:绝不收取任何费用,请提前1小时预约看房,以免带来不好的看房体验
——
【项目简评】
国宾九玺,双轨地铁上盖(2 号线已通);2.05 容积率; 127 - 141㎡纯四房。海派森居园林串联公园,邻茶店子小学,TOD 商业 + 全龄配套定义城西改善范本。
项目作为主城首个双轨TOD项目(地铁2号线与9号线二期规划),融合居住、商业、生态于一体,打造“站城人”深度协同的微型城市,目标群体为追求高端生活品质的改善型家庭。
【项目基础信息】
开发商:成都轨道城市集团
项目占地:49.5亩
面 积:127m² 141m² 套四
单 价:待定
总 价:待定
得 房 率:98-100%左右
容 积 率:2.05
车 位 比:1:1.37
绿地率:35%
总户数:464户
车位数:646个
产品规划:9栋 住宅 1栋商业
楼 层:16-17层
梯 户 比:2T2 带入户光厅
交付标准:精装
装 标:待定
物业公司:自持物业
物 业 费:待定
交房时间:2027年10月30日
【户型臻选】
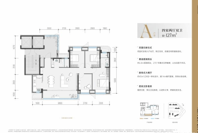
玺樾 |建面约127㎡ 四室两厅双卫

玺曜 |建面约141㎡ |四室两厅双卫

【品牌开发商】
成都轨道城市投资集团成立于2018年,是成都轨道交通集团下属从事轨道交通场站综合开发的专业化全资子公司,体量居全国TOD行业前列。集团聚焦TOD综合开发全生命周期,致力于融合“三大生命空间”,以“八大策略"为核心的TOD模式,全域统筹推进全市在2035年线网规划695个轨道站点、90个车辆基地的综合开发。
【区位价值】
千年金牛,交子故里
从古至今,城西都是达官贵胄,文人雅士的荟萃之地,金牛区是整个成都的核心文脉承载之地,整个城西占据了成都近三分之二的文博旅游资源,更是蜀绣的起源之地,世界上第一张纸币“交子”就是诞生于成都金牛区通锦路3号。
千年国宾脉,城市再焕新
国宾板块,坐拥金牛三千年文明积淀,以“天府文化源点”之姿,将古蜀商贸基因、五代皇家气象、非遗匠心传承,淬炼为当代TOD国际住区的精神图腾。
主城热土,价值高地
当城市向西的浪潮撞上主城回归的政策,国宾板块每一次土拍都牵动成都——保利、万科、龙湖等十余家头部房企推滩进驻。2024年成都板块成交面积排行榜中,国宾以42.18万㎡的销售面积位居榜首。

【醇熟配套】
「交通枢纽·高效通勤」
双轨交汇·无界出行:地铁2号线(已运营)、9号线二期(规划)金周路站无缝换乘;
立体路网·畅达全城:天河路、三环、西芯大道、金牛大道等路网交错,便捷通达主城核心;
TOD绿色出行体系:地铁-公交-步行一体化设计,以“TOD步行圈”辐射多元生活场。
「菁英教育·全龄优享」
幼儿园:成都四幼文创园;
小学:茶店子小学金樽分校;
中学:树德领办互助中学(建设中)、成都市金牛中学。
( *本项目周边的学校资源均属政府教育配套或第三方合作机构,其办学资质、招生政策及教学质量由对应教育主管部门及校方负责。开发商仅作信息告知;树德领办互助中学信息来源于成都商报教育发布公众号。)
「便捷医疗·健康无忧」
三级医院:三六三医院犀浦院区(三甲)、省人民医院金牛医院(三乙)。
「繁华商业·消费升级」
自带约5000㎡TOD公园式商业,塑造“商业+自然”沉浸式消费,融合零售/餐饮/文化等多元产业;
约4公里范围内享龙湖西宸天街/中海国际购物公园/山姆会员店等商业中心环绕。
「人文荟萃·钟灵毓秀」
约3.5公里范围内有金牛宾馆、天府艺术公园、易园园林艺术博物馆等多个文化地标。
项目占地约49.5亩国宾热土,容积率约2.05,汲取国际都会质感与成都生活哲学,旨在打造一座高品质、优展示、强产品的TOD城市战略级旗舰。
【金周路TOD国宾九玺】项目热线:028-87788752(中介勿扰)
楼盘最新价格,户型图,地址,电话,样板房,周边配套,置业顾问在线咨询
温馨提示:绝不收取任何费用,请提前1小时预约看房,以免带来不好的看房体验
声明:本文由入驻焦点开放平台的作者撰写,除焦点官方账号外,观点仅代表作者本人,不代表焦点立场。



