【高投合悦锦萃】成都|最新消息实时更新_高投合悦锦萃售楼处地址-售楼处电话-楼盘详情-单价-户型-配套-环境
扫描到手机,新闻随时看
扫一扫,用手机看文章
更加方便分享给朋友
【高投合悦锦萃】售楼部电话:028-64512850(已认证)
楼盘最新价格,户型图,地址,电话,样板房,周边配套,置业顾问在线咨询
温馨提示:绝不收取任何费用,请提前1小时预约看房,以免带来不好的看房体验
————

去年11月,位于高新西的【合悦锦萃】首次开盘,105套房源一个半月即售罄,成交套数、成交金额均高居区域TOP1!
为啥卖的那么好呢?
合悦锦萃不仅有“低总价+高品质”的基本盘,还可享受临地铁12号线(已启动招标)、家门口K12电子科大全龄教育等全系资源。
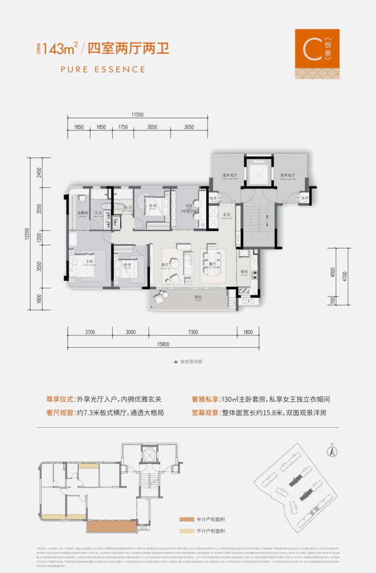
项目本批次,包含建面约86-143㎡洋房以及少量建面约167㎡&180㎡顶跃产品,仅125套房源!
当前状态:在售
参考均价:精装14500元/mr
建筑类型 :小高层
面积区间:建面86-179m2
开发品牌:成都高投品牌解读
开发商:成都高新西区发展建设有限公司

总户数:共292户
梯户比:1T2
物业类型:住宅
楼层状况:11层和11+1层
装修情况 :精装
总楼栋数:8栋
产权年限:70年
交房时间 :预计2025年12月
高投·合悦锦萃占地25亩,由国企高投开发。
项目容积率2.0,共8栋住宅,均为1T2的11F住宅产品。
项目3KM校际生活圈,拥有电子科大从幼儿园到大学全链教育体系,享清水河生态走廊、绿芯公园、菁蓉湖数字体育公园、高新区西园街道体育公园等丰富自然配套。
同时,高投·合悦锦萃作为高新西首个锦萃系作品,特为菁英客户定制了原创都荟花园住区,一轴四景十园的园林社交场域。
在产品上,着重打造光厅入户、极致大面宽的越级空间,重新定义高新西封面人居。
( 更多信息请拨打售楼处官方电话:028-64512850)
教育
成都高新区天映幼儿园、成都高新区合源幼儿园、电子科技大学实验中学(清水河校区)、成都高新区天骄西路幼儿园、电子科技大学实验中学(天骄校区)、电子科技大学实验中学附属小学、电子科技大学附属幼儿园(梧桐园)、成都高新区金象阳光幼儿园、学府蒙特梭利幼儿园(科大校区)、悦睿上锦幼儿园。
交通
天盛路(规划)、西园(规划)、中兴寺(规划)、电子科大(规划)、尚锦路(6号线)、檬梓(6号线)、普安(规划)
商业
沃尔玛、惠民购物中心(天骄路店)、龙湖成都时代天街、永辉超市(龙湖时代天街店)、龙湖时代天街栋、凯信广场
医院
上锦南府医院、温江区人民医院永宁分院、成都郫都港区医院、四川大学华西医院(温江院区)、成都郫都西汇三九八医院
公园
清水河公园(1期)、高新西区体育公园、成都高新区-西园街道体育公园、菁蓉湖数字体育公园、清水河公园、生境园、成都合院·国学公园





预约看房须知:专属顾问接待,高效看房不跑空
为给您提供更优质的看房体验,项目售楼处实行 “预约制” 服务:
预约方式:拨打售楼处认证电话028-64512850,告知 “意向户型 + 看房时间”,即可预约专属置业顾问;
看房福利:预约客户可享受 “一对一户型解析 + 社区实景讲解 。
———
【高投合悦锦萃】售楼部电话:028-64512850(已认证)
楼盘最新价格,户型图,地址,电话,样板房,周边配套,置业顾问在线咨询
温馨提示:绝不收取任何费用,请提前1小时预约看房,以免带来不好的看房体验
声明:本文由入驻焦点开放平台的作者撰写,除焦点官方账号外,观点仅代表作者本人,不代表焦点立场。



