【天樾境C区】售楼处官方发布_天樾境C区楼盘详情(2025房价+户型图)_售楼处电话_国庆中秋特惠房源限时抢购!
扫描到手机,新闻随时看
扫一扫,用手机看文章
更加方便分享给朋友
【招商时代公园】【招商锦城序】售楼部电话:028-87788752(中介勿扰)
楼盘最新价格,户型图,地址,电话,样板房,周边配套,置业顾问在线咨询
温馨提示:绝不收取任何费用,请提前1小时预约看房,以免带来不好的看房体验
成都9月新房房贷利率最新情况:
一、LPR基准利率根据中国人民银行9月22日公布的数据,5年期以上LPR为3.5%,与8月持平。该利率将维持至下一次LPR调整前有效。
二、商业贷款利率
首套房:最低可至LPR减60个基点(3.0%),部分银行需主动申请才能享受优惠利率。
二套房:最低利率为LPR减30个基点(3.2%),部分银行执行3.1%。
首付比例:首套和二套房均最低15%,但热门楼盘可能要求更高。
三、公积金贷款利率
首套房:5年以上利率2.6%;
二套房:5年以上利率3.075%;
首付比例:首套20%,二套30%。
————
【项目基础信息】
占地面积:34572㎡
总净用地面积:51.8亩
总计容建筑面积: 107100㎡
容积率:3.1
绿地率:35%
套数::618套
梯户比:2T2/2T3
装修标准:精装交付 现房
机动车位:1293个
非机动车位:1074个
在售户型
D户型/建面约226㎡四室两厅三卫

C户型/建面约193㎡四室两厅三卫

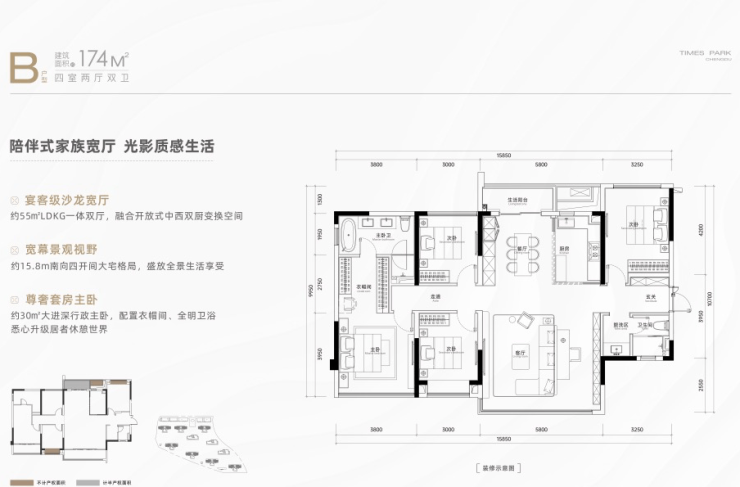
B户型/建面约174㎡四室两厅双卫

A户型/建面约143㎡四室两厅双卫

————
更多信息请致电【盈嘉赢家】售楼部电话:028-87788752 【中介勿扰】
温馨提示:绝不收取任何费用,请提前1小时预约看房,以免带来不好的看房体验
————
一、品牌篇
双世界500强 万亿央企
1.招商局创立于1872年,是中国民族工商业的先驱者。
2.招商局是一家业务多元的综合企业,业务主要集中于综合交通、特色金融、城市与园区综合开发运营三大核心产业。
3.总部设于香港,是在香港成立运营最早的中资企业之一招商局于1873年在香港开设经营机构,是香港历史最悠久的中资企业。
4.招商蛇口是招商局集团旗下城市综合开发运营板块的旗舰企业,截止2024年,全业务覆盖全球超156个城市和地区,开发精品项目超620个,服务千万客户。
二、区域/规划篇
天府新区,未来城市新中心
天府新区是由国务院正式授牌的国家级新区,承担着国家重大发展和改革开放战略任务。秉承成都“一城双核”的发展战略,天府新区直管区重点打造三大产业功能区,着力构建“成都未来城市新中心、成渝地区双城经济圈创新极核和开放门户、国家级新区高质量发展样板和中国式现代化公园城市先行区”。
天府总部商务区
天府总部商务区以公园城市为设计理念,总体设计28.6平方公里,中央核心区范围8.5平方公里。区域突出总部经济聚能和高端服务赋能,构建以总部经济为核心引领,形成多元产业体系,打造面向世界的中央商务区、成都未来城市新中心。招商时代公园,位于天府总部商务区中心区域。
成都科学城
突出科技创新策源和创新成果转化,坚持数字经济突破发展为带动,打造数字经济产业高地,大力发展高技术服务业,做大做强研发产业、科技产业集群,前瞻布局未来先导产业,抢占未来产业发展制高点。
天府数字文创城
聚焦网络视听、创意设计、文博旅游产业细分领域,实施高能级项目引育、产业生态构建、世界级IP孵化、文化品牌塑造总体战略,以网络视听为核心、创意设计和文博旅游为特色的“1+2”主导产业体系。(信息源自《四川天府新区直管区国土空间总体规划(2021-203)》)
优享全龄教育 葆育孩子菁英未来
周边名校云集,天府七中,天府七小,天府八小、天府九小、元音中小学、乐盟外籍人员子女学校等名校,为孩子预定高起点人生。(本资料仅为对项目周边教育资源进行介绍,不代表项目业主或子女能够入读相应学校,学校具体入读政策以届时政府发布政策为准。
【招商时代公园】【招商锦城序】售楼部电话:028-87788752(中介勿扰)
楼盘最新价格,户型图,地址,电话,样板房,周边配套,置业顾问在线咨询
温馨提示:绝不收取任何费用,请提前1小时预约看房,以免带来不好的看房体验
声明:本文由入驻焦点开放平台的作者撰写,除焦点官方账号外,观点仅代表作者本人,不代表焦点立场。



