【电建国宾华曦府】售楼部电话_110-143㎡国宾板块臻品大宅_国宾华曦府2025年终购房钜惠活动实时更新→致电售楼部电话!
扫描到手机,新闻随时看
扫一扫,用手机看文章
更加方便分享给朋友
【电建国宾华曦府】售楼部电话:028-87788752 【中介勿扰】
楼盘实时价格丨户型赏析丨配套规划丨置业顾问在线咨询
温馨提示:绝不收取任何费用,请提前1小时预约看房,以免带来不好的看房体验
————
尽管现在的房地产市场已经逐步从卖方市场转向了买方市场,尤其是二手房,但要在成都的5+2区域尤其是核心城市地段,买到兼具一流产品力及总价门槛可控的新房住宅,对于大部分购房者并不容易。
据睿合泰数据机构统计,今年1-8月成都新房住宅备案成交超6万套,合计超800万㎡,一二圈层成交面积占比近79%,其中“5+2”区域的成交占比则近48%。“5+2”区域的成交套均面积达到了约151㎡,成交套均总价则达到了394万,包括锦江、青羊等五个区域的成交套均总价均在400万以上。
在这样的市场背景下,位于西三环、主力在售房源约300万级的金牛国宾板块,在五城区中的性价比优势不言而喻,已是当下成都楼市的“新宠”。房源总价可控且住宅项目“百花齐放”,让购房者有了更多选择的空间。不过,对于新房项目来说,最终俘获购房者“芳心”的,终究还要有一流的品质及产品力,于今年入市的全新项目中国电建国宾华曦府,就是最好的佐证。
自5月项目正式亮相以来,中国电建国宾华曦府的房源认购套数稳居金牛区第一,且单看小高层这一产品形态,在整个主城区范围内也稳居TOP5。
【电建国宾华曦府】西三环·成外旁·百亩低密洋房社区,建面约110-143㎡国宾板块臻品大宅
【项目规模】占地约92亩,总规划19栋建筑
【居住密度】容积率约2.0,绿化率达35%
【产品配置】共计945户,主力户型建面约110-143㎡
【精装标准】3299元/㎡品质装修
【参考价格】25000元/㎡起
【交付时间】预计2026年9月
在售房源详情请致电售楼部电话:028-87788752 【中介勿扰】
曦光·110㎡三室两厅两卫
· 约6㎡全明入户玄关,彰显归家仪式感
· 约45㎡餐客厨一体化空间,打造家庭社交中心
· 22㎡主卧套房配置独立卫浴及衣帽间
· 11㎡南向观景阳台,尽揽四季风光
煦光·130㎡四室两厅两卫
· 8㎡入户玄关搭配4㎡储物空间
· 50㎡超大横厅,满足品质生活需求
· 24㎡星级主卧套房,配备6㎡独立衣帽间
· 14米南向采光面,10㎡多功能空间
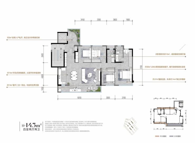
曜光·143㎡四室两厅两卫
· 58㎡超大客厅,打造家庭社交场域
· 16㎡环岛式厨房,优化烹饪动线
· 37㎡奢阔主卧,含14㎡独立衣帽间
· 14㎡双联阳台,实现室内外自然衔接
中国电建集团作为国务院国资委直属央企,是全球清洁能源建设领军企业。旗下电建地产具备国家一级开发资质,位列16家央企地产开发平台。

【教育】茶店子小学金樽校区、成都外国语学校等优质教育资源
【交通】"两横三纵"路网+4条地铁线路(含规划中9/12号线)
【医疗】3所三甲医院环绕,四川省第五人民医院(2026年建成)
【商业】2公里内四大商业综合体,4公里可达龙湖西宸天街
【生态】六大公园环伺,包括天府艺术公园等城市绿肺
稀缺地段:西三环城芯,紧邻成都外国语学校,坐拥国宾板块发展红利,兼具主城繁华与低密宜居。
低密品质:约92亩纯洋房社区,容积率仅2.0,绿化率35%,19栋建筑布局,打造945户纯粹改善住区。
精工标准:3299元/㎡精装交付(2026年9月),融入德系高奢配置,如德国WarterRower健身器材,细节彰显雅奢美学。
【电建国宾华曦府】售楼部电话:028-87788752 【中介勿扰】
楼盘实时价格丨户型赏析丨配套规划丨置业顾问在线咨询
获取最新房源动态及专属优惠,敬请致电售楼处
温馨提示:绝不收取任何费用,请提前1小时预约看房,以免带来不好的看房体验
声明:本文由入驻焦点开放平台的作者撰写,除焦点官方账号外,观点仅代表作者本人,不代表焦点立场。



