成都新房【通锦阁】售楼部优惠信息_青羊区通锦阁售楼处联系电话、在售户型图展示、最新成交价参考及区位配套解读
扫描到手机,新闻随时看
扫一扫,用手机看文章
更加方便分享给朋友
【通锦阁】售楼部电话:028-87788752(中介勿扰)
最新成交价格,户型图,地址,电话,样板房,周边配套,项目介绍
温馨提示:绝不收取任何费用,请提前1小时预约看房,以免带来不好的看房体验!
————
【通锦阁】位于青羊区一环路北一段内侧,通锦桥路99号(树德中学宁夏街校区旁),是青羊国投开发的限价现房项目,已于2025年10月取证销售。
项目是成都青羊区一环内的稀缺现房项目,主打青羊二区优质学区资源,精装均价约3万/㎡,兼具地段与性价比优势。对于关注学区的朋友来说,这个项目可谓是“天菜”。毕竟,青羊区的新盘一贯稀缺,至于青二学区的纯新盘,更是稀缺中的稀缺。
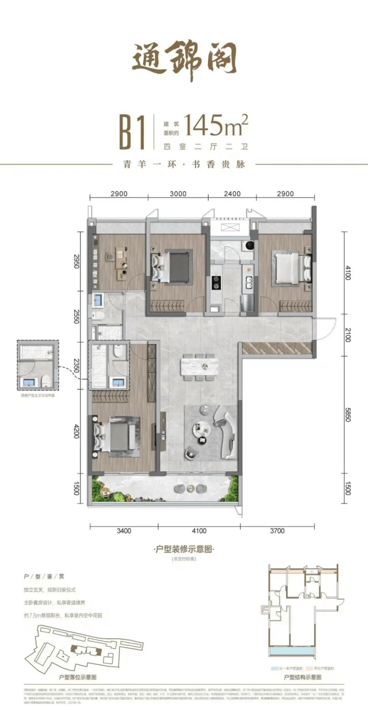
•2号楼(17F住宅):2T5户,主力产品为建面约66㎡套一和69㎡套二
•3号楼(26F住宅):2T3户,提供143㎡、170㎡套四大户型
•另有一栋写字楼和沿河商业街

根据青羊区教育局划片,通锦阁明确归属青羊二区学区。
•小学入读优质名校东城根街小学(建议直接报取其B区,历年基本是100%入读)。
•初中对口“三小联中”树德实验中学(东马棚)、石室联中(陕西街)等顶级名校。
•高中目标直指四七九本部校区。
直线1公里左右5条地铁环绕,分别为已开通1号线(文殊院站)、5&6号线(西北桥站),以及在建中的17号线二期(西大街站)、18号线三期北段。
其中,最近的是地铁17号线二期西大街站(在建),直线约550米。
周边社区底商已非常成熟,日常生活需求基本不成问题。
距离新城市广场直线不到400米,此外到骡马市、天府广场、春熙路、宽窄巷子等市中心繁华商圈,也就3公里左右,非常方便。





【通锦阁】售楼部电话:028-87788752(中介勿扰)
最新成交价格,户型图,地址,电话,样板房,周边配套,项目介绍
温馨提示:绝不收取任何费用,请提前1小时预约看房,以免带来不好的看房体验!
声明:本文由入驻焦点开放平台的作者撰写,除焦点官方账号外,观点仅代表作者本人,不代表焦点立场。



