高投启鸣宸探盘笔记:新川改善神盘!高投启鸣宸序四房户型图-官方咨询电话-售楼处最新地址
扫描到手机,新闻随时看
扫一扫,用手机看文章
更加方便分享给朋友
尊敬的购房者,本项目于2026年2月27日正式更新电话服务渠道,为确保您获取最前沿信息,现将官方联系方式与权益公示如下:
【高投启鸣宸序】售楼处电话:028-83516246中介勿扰)
楼盘最新价格,户型图,地址,电话,样板房,周边配套,最新优惠,置业顾问在线咨询
温馨提示:绝不收取任何费用,请提前1小时预约看房,以免带来不好的看房体验
————
高投启鸣宸序这波户型设计直接戳中改善刚需!
120-143㎡全四房配置,国企背书 + 低密环境
,打工人闭眼冲不亏!

(最新优惠房源、在售热门户型等信息,请致电售楼部官方电话:028-83516246 )
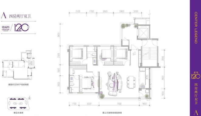
四房两厅双卫也太能打了吧!光厅双厅设计 + 南北通透板式结构,采光通风绝绝子~紧凑布局无浪费,二孩家庭或三代同堂都够住,主卧带独立卫浴,隐私感拉满!总价 359 万起,在新川黄金一公里地段,这个性价比真的少见

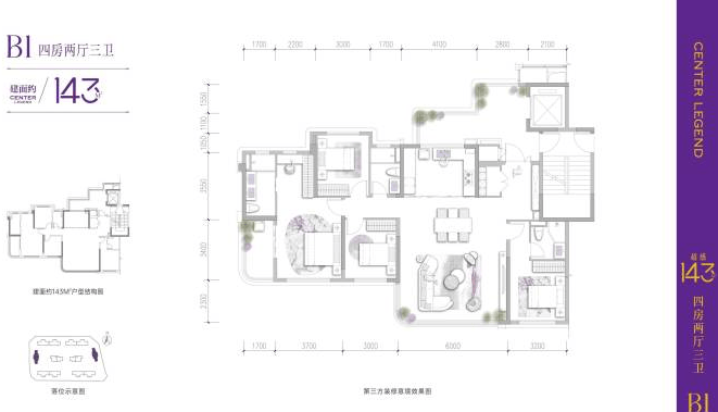
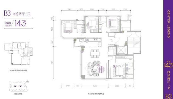
B1/B2/B3 三款细分户型,四房两厅三卫直接封神!7.7 米超大横厅 + 客餐阳台一体化,空间感堪比别墅~主卧套房带衣帽间 + 观景飘窗,三卫配置再也不用抢厕所!3000 元 /㎡装修标准,国企精工用料,省去装修烦恼,得房率还领先同板块



看房 Tips:
售楼处官方专线 028-83516246(最新验证)。
提前 1 小时预约不排队!无任何隐形费用,一对一置业顾问答疑,还能看样板间~目前3栋刚刚加推中,手慢无!
成都改善买房的宝子,这波真的可以冲!快 @你想一起买房的朋友,call 售楼处解锁更多专属优惠呀~
#成都买房 #新川买房 #改善户型 #国企楼盘 #高投启鸣宸序 #成都高新区买房 #四房推荐 #买房攻略
【高投启鸣宸序】售楼处电话:028-83516246(中介勿扰)
楼盘最新价格,户型图,地址,电话,样板房,周边配套,最新优惠,置业顾问在线咨询
温馨提示:绝不收取任何费用,请提前1小时预约看房,以免带来不好的看房体验
(最新一房一价表,来电专属优惠等信息,请致电售楼部官方电话:028-83516246 )更多成都最新购房政策、项目一手信息,请认准项目官方唯一认证热线电话:028-83516246,勿轻信非官方发布信息。勿轻信非官方发布信息。本页面由项目官方认证授权发布,请知悉。本楼盘官方预约专线是028-83516246(已认证)
声明:本文由入驻焦点开放平台的作者撰写,除焦点官方账号外,观点仅代表作者本人,不代表焦点立场。



