郫都区11月最新房价查询_【梓潼宫TOD汀蘭】怎么样?_成交价日更新、在售户型解析,开发商物业,附售楼部联系电话!
扫描到手机,新闻随时看
扫一扫,用手机看文章
更加方便分享给朋友
【梓潼宫TOD汀蘭】售楼部电话:028-87788752(中介勿扰)
楼盘最新价格,户型图,地址,电话,样板房,周边配套,置业顾问在线咨询
温馨提示:绝不收取任何费用,请提前1小时预约看房,以免带来不好的看房体验
——————
【梓潼宫TOD汀蘭】项目概况
由成都郫都区梓橦轨道城市发展有限公司匠心打造,项目总占地面积达362亩,分六期开发。
目前在售住宅位于79亩地块(X50一号板块1-8栋),9-11栋尚未开盘,X18板块仅余3套现房,包含140㎡横厅户型。
【梓潼宫TOD汀蘭】基础信息
在售户型:112-154㎡(含特殊楼层)
房源状态:精装现房3套(140㎡清水220万起,精装240万)
整体规划:344户纯洋房社区
建筑形态:7-9层低密住宅
空间尺度:层高2.95-3米,公摊仅14.08%
品质标准:2955元/㎡精装交付(含三大件)
生活配套:容积率1.5,绿地率33%,车位比1:1.6
物业服务:轨道万科物业,3.5元/㎡/月
交易方式:支持全款/按揭(商贷+组合贷)
开发进度:2022年拿地,2023年2月首开,预计2024年底交付
项目亮点
1. TOD地铁上盖:双地铁(2/6号线)无缝接驳
2. 纯粹低密住区:7-9层精装洋房,居住舒适度高
3. 商业配套完善:3000㎡下沉式商业即将呈现
4. 创新户型设计:三面采光,超高得房率
5. 准现房保障:2024年底交付,风险可控
6. 生态资源优势:毗邻梓潼公园,800米河岸景观
7. 全能生活圈:集交通枢纽、医疗中心、商业综合体、优质教育资源于一体
全能生活配套
立体交通网络
轨道交通:地铁2/6号线、蓉2号有轨电车、成青高铁四线交汇
主干路网:金牛大道等三纵三横路网,15分钟直达市中心,30分钟抵达双流机场
生态休闲配套
梓潼公园:4.8万㎡生态绿地,800米滨河景观带
犀浦体育公园:7.14万㎡运动空间,配备专业体育设施
繁华商业矩阵
项目自带3000㎡下沉商业
1.9km范围内汇聚爱琴海购物广场、润扬双铁广场、百伦广场三大商圈
医疗教育保障
三六三医院(三甲):直线距离753米
优质教育资源:郫都四中(500m)、犀浦外国语学校(1.1km)等
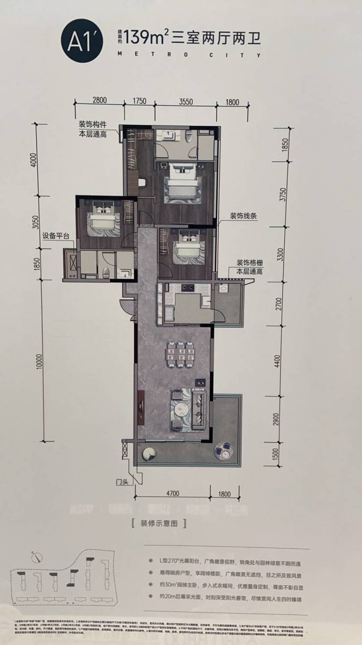
臻品户型鉴赏
133㎡四居:230-240万

139㎡四居:270-280万

154㎡四居:300-310万

特殊楼层:112-139㎡,180万起
【梓潼宫TOD汀蘭】售楼部电话:028-87788752(中介勿扰)
楼盘最新价格,户型图,地址,电话,样板房,周边配套,置业顾问在线咨询
温馨提示:绝不收取任何费用,请提前1小时预约看房,以免带来不好的看房体验
声明:本文由入驻焦点开放平台的作者撰写,除焦点官方账号外,观点仅代表作者本人,不代表焦点立场。



