成都【誉都】值得买吗?_【誉都】新房评测(最新):位置交通、环境配套、楼层户型一文全解析
扫描到手机,新闻随时看
扫一扫,用手机看文章
更加方便分享给朋友
【誉都】营销中心热线:028-87788752 【销售中心】
项目概况丨实时价格丨户型解析丨区位配套丨在线预约
获取最新房源动态及专属优惠,请致电售楼处!
核心参数
区位优势:锦江沿岸,468核心商圈,东城重点发展区域
物业类型:70年产权的品质高层
开发企业:成都御品誉鉴商贸有限公司
建筑规模:3栋高层建筑
占地面积:约18亩
规划户数:386户
电梯配置:2梯4户与2梯5户
停车规划:535个车位(1:1.4高配比)
容积率:3.81
绿地覆盖率:30%
物业服务:四川加亦物业管理有限公司
物业费用:2.87元/㎡/月
建筑高度:26层/30层/32层
交付标准:毛坯交付

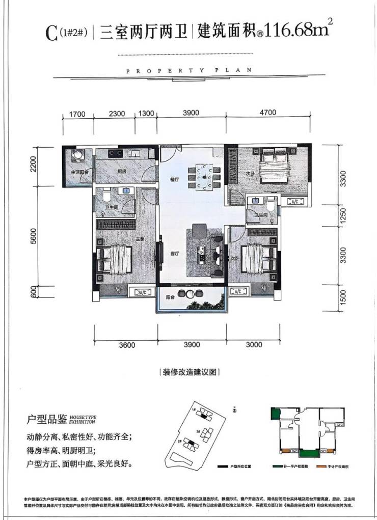
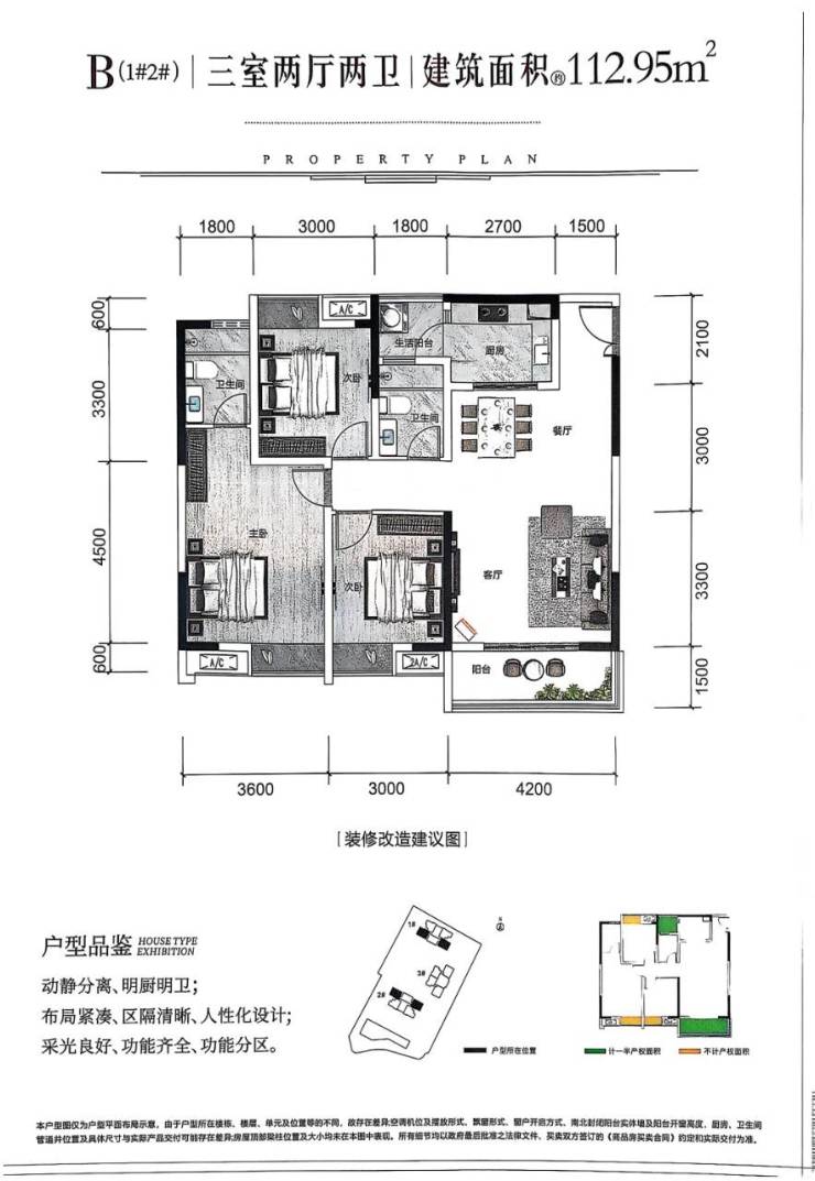
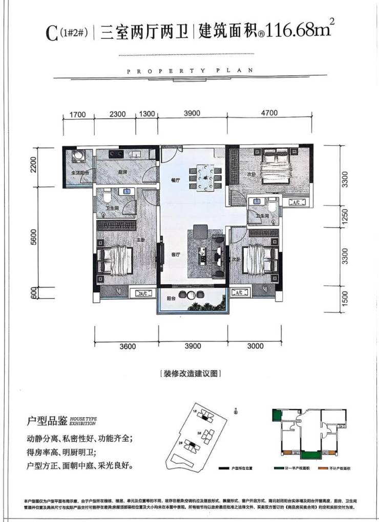
主力户型
【战略区位】
坐落锦江之畔,占据468商圈核心位置,东城中心规划涵盖城市更新、教育配套升级、路网优化及文创商业集群建设。未来五年将新增120万方住宅体量,配建111亩商业综合体,打造15个社区生活圈及系列口袋公园,串联9大特色下沉广场,规划18.7万方文创主题商业空间,涵盖国潮剧场、数字艺术中心等创新业态。
全能配套
立体交通:三纵(驿都大道/成龙大道/机场高速)三横(绕城/锦江大道/三环)路网骨架,2分钟速达三环,经跨线桥5分钟直达2.5环核心区。
轨道交通:4条地铁线(2/9/13/30号线)+双TOD规划(洪河+惠王陵),距2号线洪河站仅600米。
高铁枢纽:3公里直达成都东站,规划胶囊巴士接驳系统。
商业矩阵:1.2万方社区商业,毗邻蜀峰468(在建)、大融城、华熙LIVE(18万方文博区)、卓锦曼购等旗舰商业。
医疗资源:华西医院锦江院区、华西妇儿专科医院及口腔专科集群。
生态体系:千亩市政公园+三圣花乡(4A景区)+白鹭湾/青龙湖/天鹅湖三大湿地公园环伺。
【誉都】营销中心热线:028-87788752 【销售中心】
项目概况丨实时价格丨户型解析丨区位配套丨在线预约
获取最新房源动态及专属优惠,请致电售楼处!
声明:本文由入驻焦点开放平台的作者撰写,除焦点官方账号外,观点仅代表作者本人,不代表焦点立场。



