2025中秋成都热搜楼盘列表|【高投启鸣观樾】项目情况(户型图+位置配套)_开发商国庆中秋推广直销_售楼部热线电话

搜狐焦点兰州站 2025-10-05 16:14:00
用手机看
扫描到手机,新闻随时看

扫一扫,用手机看文章
更加方便分享给朋友

高投启鸣宸序与观樾位于新川核心区,主打国企品质,配套齐全,优惠多多,国庆看房专线开放。

高投 启鸣宸序&启鸣观樾】售楼部国庆专线:028-87788752(中介勿扰)

楼盘最新价格,户型图,地址,电话,样板房,周边配套,一对一置业顾问在线咨询

温馨提示:绝不收取任何费用,请提前1小时预约看房,以免带来不好的看房体验

国庆中秋双节将至,8天长假不仅是出游探亲的好时机,也是成都市民看房选房的“黄金窗口”。“金九银十”一直以来都是房地产销售旺季,不少项目竞相推出各种优惠让利购房者,双节买房正当时!

————

高投·启鸣双子以“核心地段+国企品质+大师设计+极致户型”四重优势,填补新川核心区高性价比改善空白,成为人才留驻高新区的理想人居范本。

——2025年高新必看项目,新川新作

——新川核心区国企迭新之作,重塑改善人居标杆

一、区位配套分析

交通便捷性

——地铁:距离6号线蒲草塘站约500米,1号线四河站约1.2公里。

——道路网:紧邻新川主干道新程大道,快速连接天府大道、梓州大道等城市动脉。

全维配套

——教育:启鸣宸序与上海师范大学成都海川学校(九年一贯制)仅一街之隔,周边另有金苹果锦城一中附属小学等优质资源。

——商业/生活:步行范围内涵盖新川邻里中心(含社区商业、农贸市场)、AI创新中心商业体。

——生态/产业:毗邻新川湿地公园、新川之心公园;周边聚集AI创新中心、5G智慧产业园等高新产业。

二、项目信息概览

【启鸣观樾】

占地面积:17亩

绿地率:35%

总户数:221户

建筑类型:小高层

梯户比:2T2

装修情况:臻装大平层

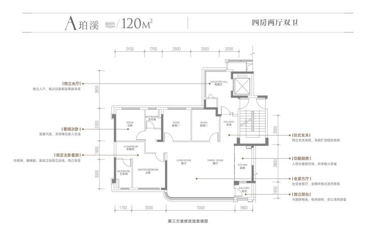
建面约120㎡ | 超配四房•光厅双厅双卫

建面约143㎡ | 高奢四房•光厅双厅三卫

三、户型鉴赏

————

高投 启鸣宸序&启鸣观樾】售楼部国庆专线:028-87788752(中介勿扰)

楼盘最新价格,户型图,地址,电话,样板房,周边配套,一对一置业顾问在线咨询

温馨提示:绝不收取任何费用,请提前1小时预约看房,以免带来不好的看房体验

声明:本文由入驻焦点开放平台的作者撰写,除焦点官方账号外,观点仅代表作者本人,不代表焦点立场。