【幸福桥TOD幸福拾光】踞守城北发展轴心,双地铁低密生活选项-售楼处电话-房价-户型
扫描到手机,新闻随时看
扫一扫,用手机看文章
更加方便分享给朋友
成都【幸福桥TOD幸福拾光】售楼部电话:028-64512850(已认证)
楼盘最新价格,户型图,地址,电话,样板房,周边配套,最新优惠,置业顾问在线咨询
温馨提示:绝不收取任何费用,请提前1小时预约看房,以免带来不好的看房体验
-------------------
于成都“北改”发展的核心区域——金牛区北部新城板块,一座与轨道交通深度交融的公园住区已然成熟呈现。
作为成都轨道交通集团主导开发的TOD范本,幸福桥TOD幸福拾光踞守地铁5号线幸福桥站旁,以举步即达的双地铁优势、环绕项目的全维生活配套及低密毛坯洋房产品,在城北中轴之上,为注重出行效率与生活品质的家庭,打造了一处连接城市繁华与生态静谧的便捷宜居之所。

01 核心地段与价值:地铁上盖TOD范本,占位城北发展新高地
项目是成都践行TOD(公共交通导向开发) 模式的典型作品,由成都轨道交通集团直接开发,位于地铁5号线幸福桥站之侧。这一独特属性不仅意味着无可比拟的交通便利,更代表着城市优势资源在站点周边的聚合,占据着城北发展的关键位置。
立体交通枢纽:项目与地铁5号线幸福桥站紧密相邻,真正实现“地铁口”零距离生活。同时,在建的地铁27号线也在短程步行范围内,未来将形成双地铁环绕的立体交通网络,出行效率极高。
城北发展引擎:地处金牛区北部新城板块,是城市向北拓展、功能升级的重要区域,享受城市规划与建设带来的持续发展红利,区域面貌与价值不断提升。
国企实力保障:由城市轨交建设运营主体成都轨道交通集团开发,并引入成都轨道万科物业提供服务,为项目的品质、交付及后期服务提供了坚实的双重保障。

(最新价格、在售户型等信息,请致电【幸福桥TOD幸福拾光】售楼部官方电话:028-64512850 )
02 项目规划与设计:低密公园社区,构筑高得房率舒居空间
项目整体规划约700亩,分期开发,当前二期、三期在售。
规划以约2.0的低容积率为核心,结合高绿化率,旨在打造一个建筑密度低、生态环境优的公园式住区。
低密生态住区:项目整体容积率约2.0,其中二期绿化率高达约52%,三期也达到约35%,社区内外部生态环境优越,居住氛围静谧舒朗。
产品形态多样:建筑包含9-17层的住宅,产品形态丰富。二期为2梯2户,三期包含1梯2户及2梯3户,梯户比较为舒适。所有产品均为毛坯交付,给予业主充分的个性化装修空间。
实用空间出色:项目得房率表现突出,二期约83-80%,三期约84-81%,实际可使用面积高于市场平均水平,空间实用性高。

(最新价格、在售户型等信息,请致电【幸福桥TOD幸福拾光】售楼部官方电话:028-64512850 )
03 社区配套与资源:全维醇熟配套环伺,举步兑现便捷生活
项目最大的优势在于其周边已高度成熟的全维度生活配套,从交通、商业、教育到生态、医疗,均已实景呈现,生活便利性极高,无需等待。
立体交通网络:核心优势为双地铁(5号线及在建27号线)环绕,并畅享北部新城路网,可快速通达全城。
优教资源集聚:周边汇聚机关第三幼儿园、人民北路小学天北校区、成都市实验小学等全龄段优质公办教育资源,为子女成长提供坚实保障。
繁华商业环伺:短程生活圈内,龙湖锦宸天街、汇融广场、大都会购物中心等多个大型商业综合体林立,满足一站式购物、休闲、娱乐需求。
生态医疗兼得:邻近可容纳4万人的凤凰山音乐公园与专业级的凤凰山体育公园,休闲运动举步可达。同时,西部战区总医院(三甲) 等优质医疗资源为健康护航。

(最新价格、在售户型等信息,请致电【幸福桥TOD幸福拾光】售楼部官方电话:028-64512850 )
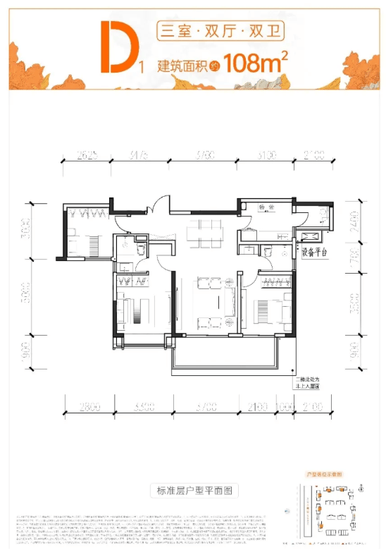
04 主力户型解析:全功能毛坯洋房,满足多元家庭结构
项目二期、三期提供多样化的户型选择,产品以毛坯洋房为主,覆盖不同的面积段与功能需求,凭借高得房率的优势,为家庭提供高实用性的居住空间。
二期主力户型
作为即买即住的成熟产品,二期采用2梯2户的舒适配置,得房率约80-83%。
户型设计注重空间的通透性与实用性,首层还规划有4.5米挑高架空层,拓展了社区公共活动空间,适合对居住私密性和社区品质有要求的改善家庭。

(最新价格、在售户型等信息,请致电【幸福桥TOD幸福拾光】售楼部官方电话:028-64512850 )

三期主力户型
三期产品线更为丰富,涵盖1梯2户及2梯3户,得房率略高约81-84%。
建筑层高在9-17层之间,视野开阔。毛坯交付提供了最大的装修自由度,适合追求个性化居住风格、对不同功能空间有明确规划的家庭。

(最新价格、在售户型等信息,请致电【幸福桥TOD幸福拾光】售楼部官方电话:028-64512850 )


------------------------
成都【幸福桥TOD幸福拾光】售楼部电话:028-64512850(中介勿扰)
楼盘最新价格,户型图,地址,电话,样板房,周边配套,最新优惠,置业顾问在线咨询
温馨提示:绝不收取任何费用,请提前1小时预约看房,以免带来不好的看房体验
声明:本文由入驻焦点开放平台的作者撰写,除焦点官方账号外,观点仅代表作者本人,不代表焦点立场。



