龙泉驿11月最新在售新房_【保利云上】怎么样?_成交价日更新、在售户型解析,开发商物业,附售楼部联系电话!
扫描到手机,新闻随时看
扫一扫,用手机看文章
更加方便分享给朋友
【保利云上】售楼部电话:028-87788752(中介勿扰)
楼盘最新价格,户型图,地址,电话,样板房,周边配套,一对一置业顾问在线咨询
温馨提示:绝不收取任何费用,请提前1小时预约看房,以免带来不好的看房体验
———
东安湖:双央企打造375亩临湖大城 | 五朵金花:低密现房洋房 临湖临公园 | 家楼下就是一场三馆:步行可看演唱会
 
【保利云上】东安湖畔准现房公寓(23年10月交房),位于东安湖南岸中央活力商务区中心单价7字头。总价26万起看湖商办。
 
【世界东安湖 成都发展极】
2022世界大运主办地,一湖三岸国际规划,全球赛事驱动,成都跃升世界舞台汲取“TOD+CAZ(CBD2.0)+COD+IOD”四大全球模式,打造成都未来封面 、公园城市先行区、城市基建新能级。
 
水陆空超级枢纽:
150公里蜀都大道,20分钟直达攀成钢;
三大轨交:2号线、11号线、20号线;;
三大TOD+成都首条湖底隧道。
全球文化地标带:
云集东安书院、大剧院、文化艺术中心三大城市级文化地标;
毗邻全国首座铜阁“东安阁”,比肩滕王阁、黄鹤楼文化价值的国家级文化地标;
对望大运一场三馆的世界级文化地标。
一湖三公园环伺:超低密公园环境,悠享自然诗意。
直面约5500亩的世界东安湖;
紧临约1910亩的驿马河公园;
中央景观生态绿廊
国际化潮流商圈:24H国际繁华主场
社区自建滨水活力商业文化街,
紧临龙湖第十座天街、吾悦广场、万达广场、万象系商业综合体
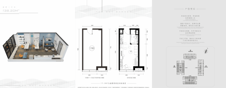
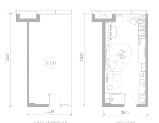
2号地块--临湖地块,地上26F,其中17-26F为3米层高的soho产品,2-16F为4.2米的loft产品
户型图
38.2㎡全景幻变空间,更有十余种户型可供选择
 
 
 
平面图(3#、4#)
 
 
 
——
【保利云上】售楼部电话:028-87788752(中介勿扰)
楼盘最新价格,户型图,地址,电话,样板房,周边配套,一对一置业顾问在线咨询
温馨提示:绝不收取任何费用,请提前1小时预约看房,以免带来不好的看房体验
声明:本文由入驻焦点开放平台的作者撰写,除焦点官方账号外,观点仅代表作者本人,不代表焦点立场。
 
 
 
 

