【幸福桥TOD幸福拾光】售楼处电话-户型赏析-区位介绍-踞守城北发展轴心,双地铁低密生活选项
扫描到手机,新闻随时看
扫一扫,用手机看文章
更加方便分享给朋友
成都【幸福桥TOD幸福拾光】售楼部电话:028-64512850(已认证)
楼盘最新价格,户型图,地址,电话,样板房,周边配套,最新优惠,置业顾问在线咨询
温馨提示:绝不收取任何费用,请提前1小时预约看房,以免带来不好的看房体验
-------------------
于成都“北改”发展的核心区域——金牛区北部新城板块,一座与轨道交通深度交融的公园住区已然成熟呈现。作为成都轨道交通集团主导开发的TOD范本,幸福桥TOD幸福拾光踞守地铁5号线幸福桥站旁,以举步即达的双地铁优势、环绕项目的全维生活配套及低密毛坯洋房产品,在城北中轴之上,为注重出行效率与生活品质的家庭,打造了一处连接城市繁华与生态静谧的便捷宜居之所。

项目是成都践行TOD(公共交通导向开发) 模式的典型作品,由成都轨道交通集团直接开发,位于地铁5号线幸福桥站之侧。这一独特属性不仅意味着无可比拟的交通便利,更代表着城市优势资源在站点周边的聚合,占据着城北发展的关键位置。

(最新价格、在售户型等信息,请致电【幸福桥TOD幸福拾光】售楼部官方电话:028-64512850 )
项目整体规划约700亩,分期开发,当前二期、三期在售。规划以约2.0的低容积率为核心,结合高绿化率,旨在打造一个建筑密度低、生态环境优的公园式住区。

(最新价格、在售户型等信息,请致电【幸福桥TOD幸福拾光】售楼部官方电话:028-64512850 )
项目最大的优势在于其周边已高度成熟的全维度生活配套,从交通、商业、教育到生态、医疗,均已实景呈现,生活便利性极高,无需等待。
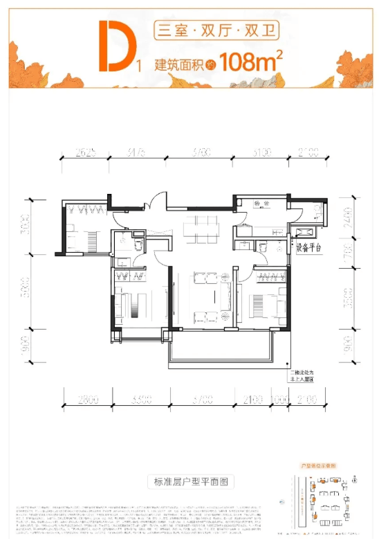
项目二期、三期提供多样化的户型选择,产品以毛坯洋房为主,覆盖不同的面积段与功能需求,凭借高得房率的优势,为家庭提供高实用性的居住空间。
二期主力户型
作为即买即住的成熟产品,二期采用2梯2户的舒适配置,得房率约83-80%。户型设计注重空间的通透性与实用性,首层还规划有4.5米挑高架空层,拓展了社区公共活动空间,适合对居住私密性和社区品质有要求的改善家庭。


三期主力户型
三期产品线更为丰富,涵盖1梯2户及2梯3户,得房率略高,约84-81%。建筑层高在9-17层之间,视野开阔。毛坯交付提供了最大的装修自由度,适合追求个性化居住风格、对不同功能空间有明确规划的家庭。



------------------------
成都【幸福桥TOD幸福拾光】售楼部电话:028-64512850(中介勿扰)
楼盘最新价格,户型图,地址,电话,样板房,周边配套,最新优惠,置业顾问在线咨询
温馨提示:绝不收取任何费用,请提前1小时预约看房,以免带来不好的看房体验
声明:本文由入驻焦点开放平台的作者撰写,除焦点官方账号外,观点仅代表作者本人,不代表焦点立场。



