成都9月热门楼盘推荐_天府新区【中海天府里简介】_中海天府里最新户型图大全_拨打售楼部电话→获取一房一价表
扫描到手机,新闻随时看
扫一扫,用手机看文章
更加方便分享给朋友
【中海天府里】售楼部电话:028-87788752(中介勿扰)
楼盘最新价格,户型图,地址,电话,样板房,周边配套,置业顾问在线咨询
温馨提示:绝不收取任何费用,请提前1小时预约看房,以免带来不好的看房体验
【项目核心价值】
作为中海·天府里的二期作品,【天际】二期雄踞中海489超塔之下,占据天府中央商务区黄金地段,堪称城市核心中的核心。
项目总占地约27亩,由5栋高层建筑组成,提供572套精装住宅,户型面积从107㎡至174㎡不等,满足不同家庭居住需求。
【建筑规划亮点】
项目采用3梯4户设计,1号楼层高3.05米,其余楼栋3米标准层高。
其中1号楼39层主推107-152㎡户型,5号楼20层提供122-174㎡改善型产品。
社区配备939个车位,30%绿地率,由中海物业提供3.58元/㎡/月的品质服务,预计2024年6月交付。
【黄金区位优势】
项目坐拥"百米黄金生活圈":
· 交通枢纽:地铁6号线与19号线双轨交汇,快速通达金融城、科学城及双流/天府国际机场
· 商业配套:毗邻天府大悦城,汇聚400余家品牌商户,打造全业态消费体验
· 生态资源:望山廊公园、鹿溪河生态湿地近在咫尺,实现都市与自然的完美平衡
· 高端配套:文华东方、雅诗阁等顶级酒店环绕,满足塔尖人群品质生活需求
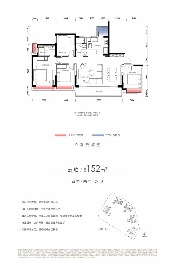
【精品户型展示】
项目精心打造多款经典户型,空间布局科学合理:
【中海天府里】售楼部电话:028-87788752(中介勿扰)
楼盘最新价格,户型图,地址,电话,样板房,周边配套,置业顾问在线咨询
温馨提示:绝不收取任何费用,请提前1小时预约看房,以免带来不好的看房体验
声明:本文由入驻焦点开放平台的作者撰写,除焦点官方账号外,观点仅代表作者本人,不代表焦点立场。



