成都龙泉驿【万科高线公园】优缺点:行政学院TOD品质改善项目_【万科高线公园】周边配套|主力户型解析|交通区位|开发商物业|售楼部电话
扫描到手机,新闻随时看
扫一扫,用手机看文章
更加方便分享给朋友
【万科高线公园】售楼处电话:028-87788752 【中介勿扰】
楼盘实时价格丨户型赏析丨配套规划丨置业顾问在线咨询
获取最新房源动态及专属优惠,敬请致电售楼处
温馨提示:绝不收取任何费用,请提前1小时预约看房,以免带来不好的看房体验
产品矩阵:
高层住宅、叠拼别墅、商业别墅及商铺
价格体系:
精装大平层:
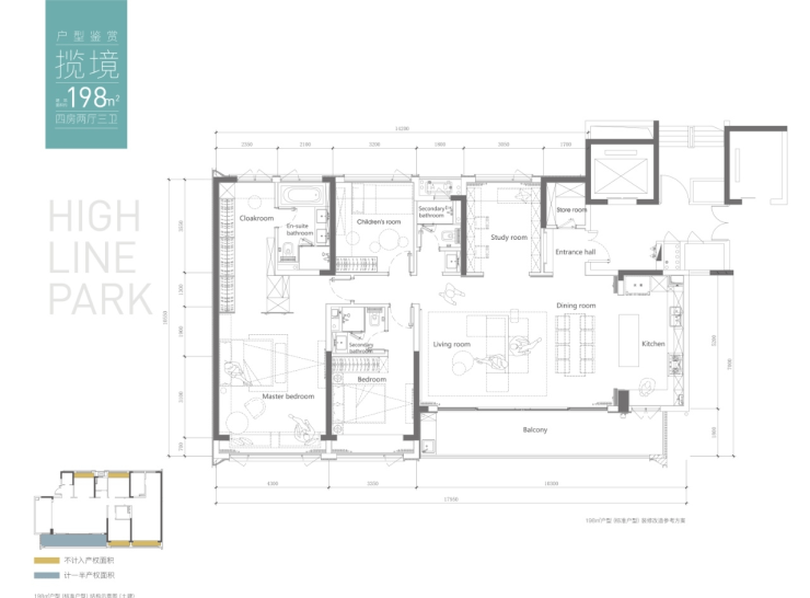
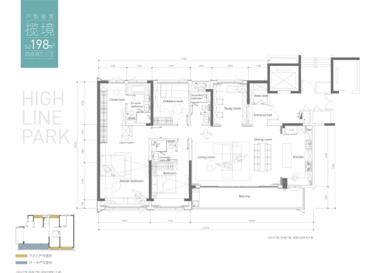
建面198㎡ 总价480-530万
——————————
商业叠拼(实得面积260-350㎡):
上叠163㎡ 530-560万
中叠181㎡ 390-440万
下叠161㎡ 470-530万
——————————
70年产叠墅:
下叠:296.85-312.89㎡,783-904万
中叠:184.62-184.90㎡,581-632万
上叠:175.61-175.89㎡,691-760万
基础参数:
梯户配置:2梯2户
装修标准:高层精装(2498元/㎡) 别墅及商业产品为毛坯交付
建筑高度:198㎡户型所在楼栋共25层
公摊比例:198㎡户型公摊20%
空间拓展:赠送面积约25㎡
容积指标:2.23
物业服务:万科物业
物业费用:高层4.2元/㎡/月,叠拼5.2元/㎡/月
项目规模:占地面积212亩
交付节点:198㎡户型2025年5月,别墅同期交付
土地获取:2020年7月31日
【区位价值】
万科高线公园雄踞行政学院TOD南区核心,北接TOD北区商业综合体与生态公园,南连三圣乡成熟住区,东临万科经典项目"金色城市",西靠成都市委党校。作为区域TOD开发标杆,由轨道城市、万科、美的三大品牌联袂打造,以国际化社区标准重塑城市界面。该项目不仅是万科成都TOD战略首作,更凝聚企业顶尖资源,致力打造新一代城市人居典范。
【叠墅产品力解析】
产权优势:70年住宅产权
产品构成:
下叠297㎡(前后双花园)
中叠184㎡
上叠175㎡(屋顶花园)
空间增值:
上叠140㎡,中叠40㎡,下叠160㎡
【樾墅·下叠】
四重园林景观+9.3米奢阔横厅+5.5米挑高地下室(配备超大采光井)+2.2米宽品质楼梯
室内拓展:约160㎡
私属庭院:80~160㎡
【樾墅·中叠】
9.3米全景横厅+六房全能布局+2.2米宽楼梯
空间零浪费设计
室内拓展:约40㎡
【樾墅·上叠】
室内拓展:约140㎡(含90㎡屋顶空间)
可变空间充足,可打造7-8个全尺寸卧室(单间≥10㎡)
上叠175㎡实景展示:

中叠184㎡空间示意:

下叠297㎡户型解析:

精装大平层198㎡样板间:

商业别墅(40年产权)效果图:


【万科高线公园】售楼处电话:028-87788752 【中介勿扰】
楼盘实时价格丨户型赏析丨配套规划丨置业顾问在线咨询
获取最新房源动态及专属优惠,敬请致电售楼处
温馨提示:绝不收取任何费用,请提前1小时预约看房,以免带来不好的看房体验
声明:本文由入驻焦点开放平台的作者撰写,除焦点官方账号外,观点仅代表作者本人,不代表焦点立场。



