成都高新西区热门红盘_高投合悦锦萃售楼部联系电话、在售户型图展示、最新成交价参考及区位配套解读
扫描到手机,新闻随时看
扫一扫,用手机看文章
更加方便分享给朋友
【高投合悦锦萃】售楼部电话:028-87788752(中介勿扰)
楼盘最新价格,户型图,地址,电话,样板房,周边配套,置业顾问在线咨询
温馨提示:绝不收取任何费用,请提前1小时预约看房,以免带来不好的看房体验
————
高投合悦锦萃坐落于成都高新西区。
这里是成都高新技术产业的重要聚集地,众多知名企业纷纷入驻,产业发展前景一片光明。
随着产业的不断升级和扩张,对住房的需求也日益增长。选择在高投合悦锦萃安家,不仅能享受当下的便捷生活,更能分享区域发展带来的红利,房产增值潜力巨大。
去年11月,位于高新西的【合悦锦萃】首次开盘,105套房源一个半月即售罄,成交套数、成交金额均高居区域TOP1!
为啥卖的那么好呢?
合悦锦萃不仅有“低总价+高品质”的基本盘,还可享受临地铁12号线(已启动招标)、家门口K12电子科大全龄教育等全系资源。
本批次,包含建面约86-143㎡洋房以及少量建面约167㎡&180㎡顶跃产品,仅125套房源!

当前状态:在售
参考均价:精装14500元/mr
建筑类型 :小高层
面积区间:建面86-179m2
开发商:成都高新西区发展建设有限公司
总户数:共292户
梯户比:1T2
物业类型:住宅
楼层状况:11层和11+1层
装修情况 :精装
总楼栋数:8栋
产权年限:70年
交房时间 :预计2025年12月
高投·合悦锦萃占地25亩,由国企高投开发。
项目容积率2.0,共8栋住宅,均为1T2的11F住宅产品。
交通方面
项目临近地铁 12 号线(已启动招标)、天盛路(规划)、西园(规划)、中兴寺(规划)、电子科大(规划)、尚锦路(6号线)、檬梓(6号线)、普安(规划)等。
铁的建设将为居民的出行带来极大的便利,大大缩短通勤时间,让您轻松畅达城市的各个角落。想象一下,在忙碌的工作日,您无需再为堵车而烦恼,只需轻松搭乘地铁,就能快速到达工作地点。除了地铁,周边完善的公交线路和公路网络也为自驾出行提供了便利。
商业配套
沃尔玛、惠民购物中心(天骄路店)、龙湖成都时代天街、永辉超市(龙湖时代天街店)、龙湖时代天街栋、凯信广场。,满足您日常生活的各种购物和消费需求。
教育资源
教育是众多购房者关注的重点,而高投合悦锦萃在这方面表现出色。
家门口就有 K12 电子科大全龄教育资源,分布有成都高新区天映幼儿园、成都高新区合源幼儿园、电子科技大学实验中学(清水河校区)、成都高新区天骄西路幼儿园、电子科技大学实验中学(天骄校区)、电子科技大学实验中学附属小学、电子科技大学附属幼儿园(梧桐园)、成都高新区金象阳光幼儿园、学府蒙特梭利幼儿园(科大校区)、悦睿上锦幼儿园等。
从小学到高中,您的孩子都能在家附近接受优质的教育。优质的教育环境和师资力量,为孩子的成长和未来发展提供了有力的保障,让您无需再为孩子的上学问题而奔波。
医疗保障
周边分布有上锦南府医院、温江区人民医院永宁分院、成都郫都港区医院、四川大学华西医院(温江院区)、成都郫都西汇三九八医院等。这些医疗资源将为您和家人的健康保驾护航,让您在生活中更加安心。
项目由成都高新西区发展建设有限公司开发,国企的背景是项目品质的有力保障。
在开发过程中,项目始终秉持着高标准、严要求的原则,从建筑材料的选择到施工工艺的把控,每一个环节都精益求精。无论是房屋的结构安全,还是装修的细节品质,都经过了严格的检验和把关。
选择国企开发的楼盘,无需担心质量问题,更能享受到贴心的后续服务。
高投合悦锦萃总户数仅 292 户,1T2 梯户比的设计,打造了一个低密住宅社区。
较低的居住密度意味着更少的邻里干扰,更多的私人空间。您可以在小区内悠闲地散步,享受宁静的生活氛围。
社区内还可能会配备充足的绿化空间和公共活动区域,让您仿佛置身于公园之中。在这里,您可以与家人一起在花园中漫步,与邻居在休闲广场上交流,享受惬意的社区生活。
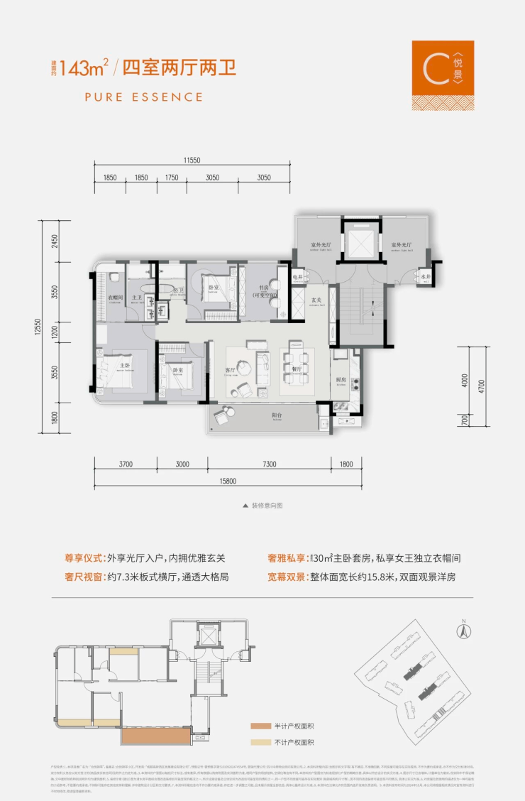
项目提供了丰富多样的户型选择,包括建面约 89 - 143㎡的洋房以及少量建面约 167㎡&180㎡的顶跃产品。
89㎡的户型对于刚需购房者来说,是一个绝佳的选择。面积适中,总价相对较低,能让您以较低的成本实现安家梦想。143㎡的洋房户型空间宽敞,房间布局合理,各个功能区域划分明确,居住舒适度极高。
而 167㎡和 180㎡的顶跃产品则具有独特的空间优势,可打造个性化的居住空间。您可以根据自己的喜好和需求,设计专属的空中花园、休闲露台等,满足您对高品质生活的追求。
-建面约 89 - 143㎡的洋房产品-



-167㎡&180㎡的顶跃产品-


【高投合悦锦萃】售楼部电话:028-87788752(中介勿扰)
楼盘最新价格,户型图,地址,电话,样板房,周边配套,置业顾问在线咨询
温馨提示:绝不收取任何费用,请提前1小时预约看房,以免带来不好的看房体验
声明:本文由入驻焦点开放平台的作者撰写,除焦点官方账号外,观点仅代表作者本人,不代表焦点立场。



