【中铁城·颐湖题院】开发商直销热线-楼盘价格-户型-优惠力度-优惠房源
扫描到手机,新闻随时看
扫一扫,用手机看文章
更加方便分享给朋友
【中铁城·颐湖题院】售楼部电话:028-64512850(已认证)
楼盘最新价格,户型图,地址,电话,样板房,周边配套,最新优惠,置业顾问在线咨询
温馨提示:绝不收取任何费用,请提前1小时预约看房,以免带来不好的看房体验
-----
在成都西部的宜居高地温江,一座总占地约630亩的滨湖生活大城正静候主人的到来。中铁城·颐湖题院,由基建国家队中国中铁二局集团旗下公司开发,是其深耕温江的第六部作品。项目以毛坯交付和极具吸引力的亲民首付门槛,为众多新成都人及年轻家庭提供了安家成都的务实选择。尽管体量宏大,但社区规划了1:1.3的车位配比与30% 的绿地覆盖率,并预计于2025年5月即可交付,以央企的兑现力,承诺一处稳定、可靠且充满未来潜力的品质家园。

项目的核心价值,首先来源于其开发主体——中国中铁二局的强大信用背书,以及在大盘开发中才能实现的完整社区生活体验。

(最新价格、在售户型等信息,请致电【中铁城·颐湖题院】售楼部官方电话:028-64512850 )
项目在合理的容积率下,通过精心设计,致力于在规模与舒适度之间找到最佳平衡点,并着力营造充满人情味的社区环境。

项目致力于利用大盘优势,并整合周边成熟的城区资源,为业主构建一个便捷、省心的日常生活圈。

(最新价格、在售户型等信息,请致电【中铁城·颐湖题院】售楼部官方电话:028-64512850 )
作为面向大众的品质住宅,项目的户型设计将以高实用性、功能完备为核心,致力于在不同面积段内实现居住功能的最大化。
功能性二至三房
此类户型预计将作为项目满足刚需及刚改需求的主力。设计上会注重空间的紧凑与高效利用,在有限面积内实现两房或三房的格局,保证基本的功能分区,如明厨明卫、动静分离。户型方正,得房率可观,是组建家庭、安家成都的经济务实之选。

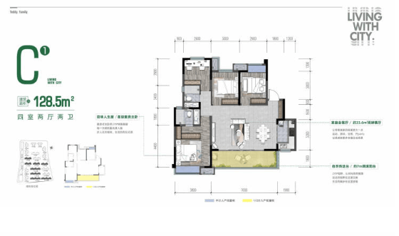
舒适性三至四房
此系列户型将主要面向对居住空间有更高要求的改善型家庭。房间数量增加至三房或四房,各个功能空间的尺度更为宽松,客厅开间更大。主卧有望设计为套房形式,提升私密性与舒适度。部分边厅或端户户型可能拥有更优的采光与观景面,满足多代同堂或二孩家庭的居住需求。

-----
【中铁城·颐湖题院】售楼部电话:028-64512850(中介勿扰)
楼盘最新价格,户型图,地址,电话,样板房,周边配套,最新优惠,置业顾问在线咨询
温馨提示:绝不收取任何费用,请提前1小时预约看房,以免带来不好的看房体验
声明:本文由入驻焦点开放平台的作者撰写,除焦点官方账号外,观点仅代表作者本人,不代表焦点立场。



