华尚万象新境的户型有哪些选择?哈尔滨华尚万象新境的交房时间 项目所在板块未来规划如何?
扫描到手机,新闻随时看
扫一扫,用手机看文章
更加方便分享给朋友
华尚万象新境
预约咨询热线:0451-5102-7015☎, 加微咨询:18045156067(加微,备注楼盘名字)
【项目区位图】
【项目楼栋图】
【项目基础信息】
【总建筑面积】64万㎡
【占地面积】21万㎡
【楼栋排布】A区由4栋高层、1栋洋房、5栋商服组成
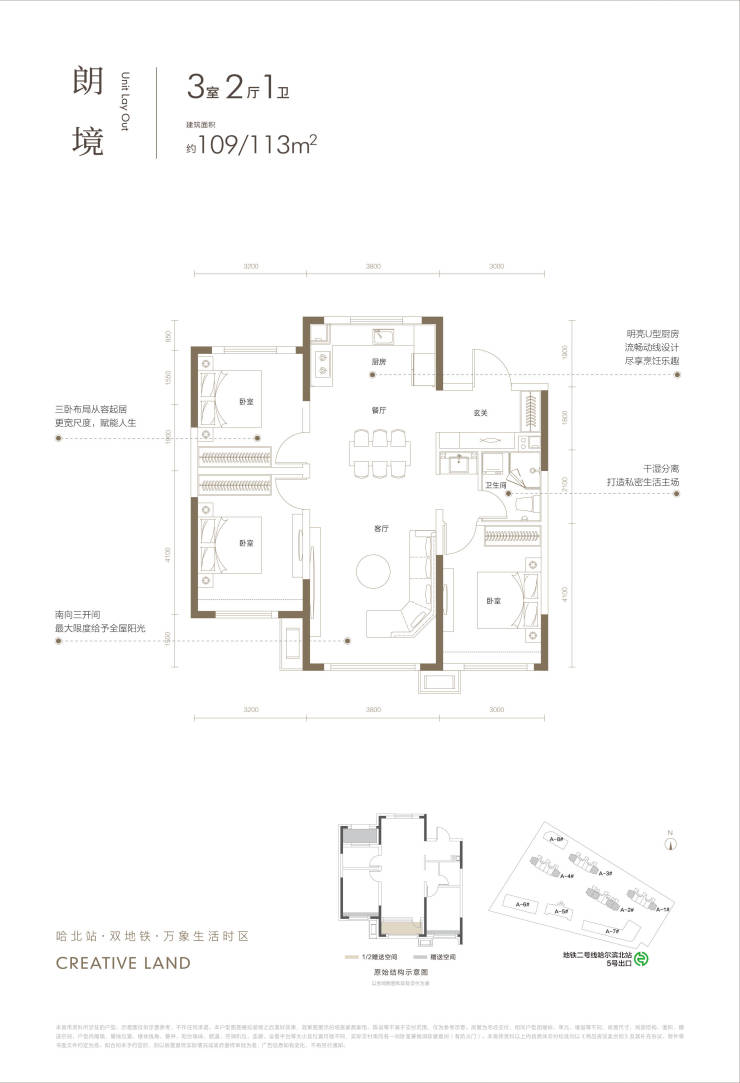
【户型面积】两室两厅一卫76/78/80平;三室两厅一卫109/113平
【产权性质】70年产权
【A区户数】768户
【预计交付时间】2025年底
【物业服务】万科物业,1.98元/平/月
【项目价格】:均价6800元(两室50-60万,三室70-80万)
【商业配套】
项目配备多元自建配套设施,对标麗枫、亚朵、全季,自持4000㎡的新锐高端品牌酒店——丽呈東谷、1000㎡的大型品牌生鲜超市、功能齐备的业主会所、业主食堂为您的生活增添便利。
新区中心,就是城市资源磁场——杉杉奥特莱斯、融创茂等大型商业综合体环绕周边,轻松满足您对高品质生活的所有向往。

【医疗配套】
医大四院(松北分院,自驾约13分钟)、省二院(地铁5站,约12分钟)、省医院(地铁13站,约35分钟),为华尚·万象新境的业主提供及时、全面的健康保障。

【教育配套】
幼儿园:鹰沙中加私立学校、美加外国语学校
周边小学:铁岭小学、顺迈小学、新区第三学校
周边初中:69中学、顺迈中学、万邦中学、新区第三学校、新区第六学校
周边高中:万邦中学、呼兰一中 、新区第六学校
周边高校:哈尔滨师范大学、黑龙江外国语学院、哈尔滨广厦学院等

【项目简介】
黑龙江省华尚房地产开发有限公司,是黑龙江本土实力房企,曾开发建设的华尚万象新天项目在2014年底竣工交付,以超过98%的入住率和业主的一致好评,赢得了社会各界的广泛赞誉。
13年区域深耕,共建美好新区。
华尚地产以敏锐的市场眼光,择址新区北站商贸中心,坐拥地铁2号线和规划中的5号线双轨交汇的黄金位置,将先进的TOD理念引入松北,建设满足工作、商业、居住、休闲,教育、文化等于一体的城市中心。与中国物业管理行业的领跑者——万科物业强强联合,将城市发展脉搏与现代生活方式完美融合,开启冰城人居万般美好,与城市共精彩。
华尚·万象新境,位于哈尔滨新区—北站商贸中心核心地段,是本土实力房企——华尚地产继华尚·万象新天后的又一力作。项目总建筑面积64万㎡,占地面积21万㎡,2025年首推A区,产品主要以4栋32层高层为主,建筑面积76-80㎡、109-113㎡,高赠送二居室、三居室
超高赠送率 更高性价比
项目以超高的赠送面积,让您的生活空间最大化。以最高可达约83%的得房率,为您延展出更宽敞的居住空间。76-80㎡的两室户型,赠送面积约为11㎡,让您的居住空间得到明显扩展;109-113㎡的三室户型赠送面积约为10㎡,无论您是刚需置业还是改善型需求,都能在此找到理想选择。
高赠送率=高性价比。举例来说,万象新境建筑面积约76㎡的两室户型,销售单价为7000元/㎡,再加上额外赠送的使用面积后,实际单价仅6200元/㎡,每平米单价直降800元/㎡以上,能够以更低的成本享受更多的居住空间。通过高赠送,您不仅可以拥有更大的生活空间,同时也让购房成本进一步降低,确保投资保值、升值以及后期二手房交易的流通潜力。
【在售户型图】
华尚万象新境
预约咨询热线:0451-5102-7015☎, 加微咨询:18045156067(加微,备注楼盘名字)
声明:本文由入驻焦点开放平台的作者撰写,除焦点官方账号外,观点仅代表作者本人,不代表焦点立场。



