【高投合悦锦萃】官网首页_户型图解析:86-143㎡洋房、167㎡&180㎡顶跃产品,获取户型全面解析请拨打售楼部电话!
扫描到手机,新闻随时看
扫一扫,用手机看文章
更加方便分享给朋友
【高投合悦锦萃】售楼部电话:028-87788752(中介勿扰)
楼盘最新价格,户型图,地址,电话,样板房,周边配套,置业顾问在线咨询
温馨提示:绝不收取任何费用,请提前1小时预约看房,以免带来不好的看房体验
免费看房车接送服务:请提起致电售楼处电话预约,就能享受这一贴心的服务。
————

去年11月,位于高新西的【合悦锦萃】首次开盘,105套房源一个半月即售罄,成交套数、成交金额均高居区域TOP1!
究其原因:合悦锦萃不仅有“低总价+高品质”的基本盘,还可享受临地铁12号线(已启动招标)、家门口K12电子科大全龄教育等全系资源。
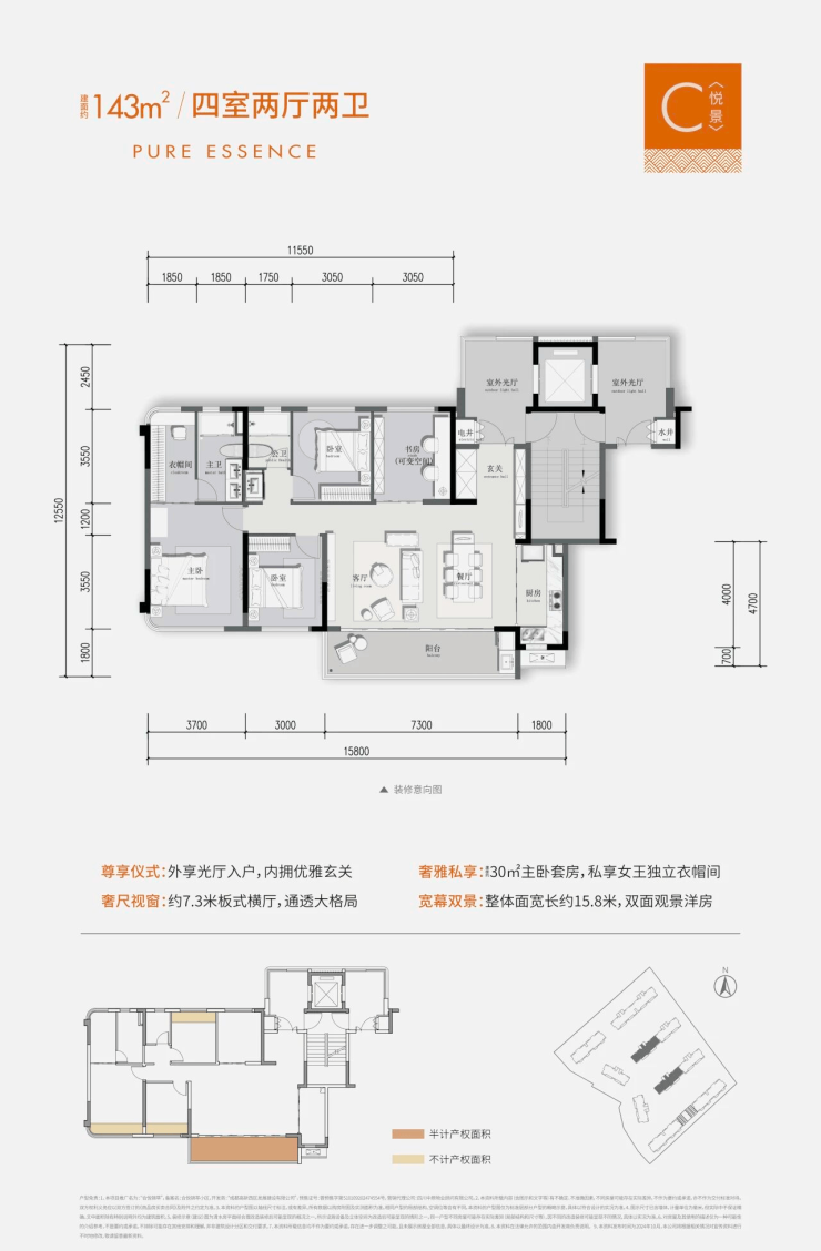
包含建面约86-143㎡洋房以及少量建面约167㎡&180㎡顶跃产品,仅125套房源!
当前状态:在售
参考均价:精装14500元/mr
建筑类型 :小高层
面积区间:建面86-179m2
开发商:成都高新西区发展建设有限公司
总户数:共292户
梯户比:1T2
物业类型:住宅
楼层状况:11层和11+1层
装修情况 :精装
总楼栋数:8栋
产权年限:70年
交房时间 :预计2025年12月
高投·合悦锦萃占地25亩,由国企高投开发。
项目容积率2.0,共8栋住宅,均为1T2的11F住宅产品。





【高投合悦锦萃】售楼部电话:028-87788752(中介勿扰)
楼盘最新价格,户型图,地址,电话,样板房,周边配套,置业顾问在线咨询
温馨提示:绝不收取任何费用,请提前1小时预约看房,以免带来不好的看房体验
声明:本文由入驻焦点开放平台的作者撰写,除焦点官方账号外,观点仅代表作者本人,不代表焦点立场。



